Конструктивные особенности и принципиальная схема работы печи бубафоня
Свое название печь бубафоня получила от своего создателя – умельца, который живет на Колыме, Афанасия Бубякина. Он в интернете регистрируется в разных сервисах и порталах под ником bubafonja. Нельзя сказать, что свое детище он изобрел сам. За основу печки была взята уже действующая конструкция, которая носит название Стропува. Это агрегаты, которые выпускает литовский производитель. Просто Бубякин доработал конструкцию, повысил ее КПД и добился максимального горения топлива.
Бубафоня в сборе
Что самое удивительное, чертежи умелец выставил в свободном доступе, которыми не замедлили воспользоваться все домашние мастера. При этом конструкция оказалась очень простой с минимальным количеством элементов. Изготовить ее можно за один день, если владеть навыками работы сварочным аппаратом. При этом высокой квалификации здесь не надо. Но самое удивительное то, что печка бубафоня может работать на любом твердом топливе: опилки, дрова, ветки, еловые или сосновые шишки, уголь (антрацит).
Во всем хороша печь Афанасия Бубякина, но есть у нее и один недостаток, который лишает возможности установить ее в систему водяного отопления. То есть, она для этих целей не предназначена. Как отдельный отопительный агрегат, она работает превосходно, даже можно соединить ее с ГВС. Но с отоплением не получается. Если подключить ее к отопительной системе дома, то котел бубафоня себя начинает проявлять, показывая все негативное. А именно:
- Увеличивается расход топлива, снижая КПД до 60%.
- На стенках топки и дымохода осаждается сажа, которая интенсивно растет.
- Одной загрузки хватает на 12 часов. Такой же котел от Стропува требует топлива через каждые 30 часов.
- В сильные морозы в дымоходе образуется конденсат, который тут же замерзает, сужая сечение дымоходной трубы.
- Редко, но случается, процесс обратного горения. Это когда воздух в топку подается не из поддувала, а из дымохода.
- Очень сложно регулировать температуру нагревания воды в системе отопления.
Котел работает скачкообразно, достигая максимальных температур до +97°, что чревато большими неприятностями.
Как сгорает топливо и остальные процессы внутри агрегата
Но необходимо отметить, что конструкция печки Стропува очень сложная. В ней большое количество разных элементов, которые влияют на качество работы прибора. Мастер с Колымы просто упростил ее, сделав эффективным сам процесс сгорания топлива. А этот процесс состоит из двух этапов: пиролиз, то есть, тление топлива при небольшом количестве кислорода, и дожигание газогорючей смеси, в которую входят кислород, пиролизные и дымовые газы.
Конструктивные особенности бубафони
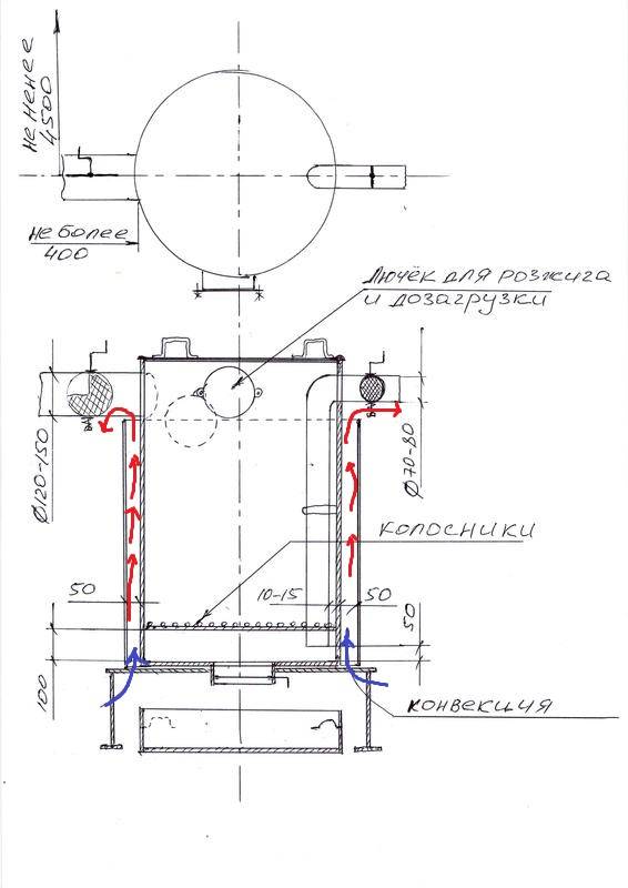
Итак, как уже говорилось выше, сделать бубафоню своими руками – не проблема. Главное – разобраться в ее конструкции и понять принцип работы печки. На фото ниже показана схема расположения основных элементов агрегата. То есть, это емкость, она же корпус печи, в которую закладывается топливо. Чтобы происходит пиролиз, необходимо создать условия, при которых в зону горения будет подаваться минимальное количество воздуха.
Схема конструкции печи бубафоня
Чтобы пространство тления топлива в процессе сгорания последнего не увеличивалось, что может привести к возгоранию тех же дров или опилок, а этого нельзя допустить, необходимо установить поверх топки какой-то груз, который будет опускаться по мере сгорания топлива и выдерживать необходимый зазор между грузом и зоной тления. В качестве такого груза используется металлический блин, к которому с нижней стороны приварены металлические профили. Последние будут утяжелять груз и создавать тот самый необходимый зазор за счет своих размеров.
Этот утяжеленный блин соединен сваркой с телескопической трубой, по которой должен воздух проникать в зону горения печки. И между ними есть отверстие, которое позволяет воздуху проникать внутрь. И последний элемент агрегата бубафоня на опилках или дровах – это дымоход.
Он обычно крепится к выходному патрубку, который устанавливается сбоку корпуса прибора.
Размеры корпуса и распределителя воздуха
Бубафоня – это печь длительного горения, поэтому в ней происходят сразу несколько сложных теплотехнических процесса. Но чтобы их добиться пришлось находить определенные чисто конструктивные решения. К примеру, процесс пиролиза происходит под грузов в виде блина. При этом пиролизные и дымовые газы проходят в камеру над грузом через зазор между блином и стенками корпуса печки бубафони. Зазор настолько мал, что дает возможность под гнетом происходить пиролизным процессам. То есть, сам пиролиз в плане эффективности возрастает, а соответственно растет и роль дожига над блином. Поэтому, если правильно собрать агрегат точно по чертежам Бубякина, то можно саму конструкцию уменьшить почти вдвое.
Правда, необходимо отдать должное, что температура тления и дожига требует особого отношения к материалам, из которых будет собираться печь бубафоня своими руками.
Это на самом деле важная составляющая, от которой зависит долгосрочная эксплуатации нагревательного прибора. Металл должен быть достаточно толстым, чтобы его не покоробило и не повело. Поэтому чаще всего мастера используют для этих целей газовые баллоны. Изготовить печь бубафоня из газового баллона своими руками просто. Сам процесс сборки упрощается еще и тем, что баллон уже является готовой конструкцией корпуса нагревательного агрегата с толщиною стенки 6-8 мм.
Вариант элементов
Расчеты конструктивных элементов печки
При кажущейся простоте печи бубафоня необходимо понимать, что ее размеры играют немаловажную роль. Особое внимание надо уделять соотношению ее диаметра к высоте. Данный показатель варьируется в пределах от 3:1 до 5:1. При этом строго подбирается именно диаметр конструкции, он варьируется в диапазоне 600-800 мм. Почему так строго?
- Если выбрать корпус меньшего диаметра, то внутри агрегата поступающий в зону тления воздух не успеет максимально нагреться и перемешаться с пиролизными газами.
Он просто вылетит в дымоход, унося за собой и позиции КПД. При этом в камере дожига не будет образовываться горючая смесь, которая должна сгореть. - При большом диаметре котла само топливо в основном будет гореть по центру, а края будут сгорать медленно. То есть, внутри зоны тления образуется яма. Получится так, что груз (блин) будет располагаться на краях топливной загрузки, а под ним образуется свободное пространство, которое будет заполняться поступающим воздухом. Топливо просто начнет гореть, и придется забыть о пиролизе, как таковом. Опять снижение КПД. Но, как показывает практика, в данной ситуации чаще всего печь просто затухает.
Так горит топливо в зоне тления под блином
Возвращаемся к толщине стенки. Если изготавливается бубафоня с водяной рубашкой, то данный показатель не должен быть меньше 4 мм. Все дело в том, что через тонкую металлическую стенку тепло тут же перейдет в воду, а вот отводящие газы тут же начнут остывать. При температуре ниже 400С процесс дожига просто невозможен.
То есть, газогорючая смесь не будет сгорать, на стенках образуется нагар, внутри дымохода конденсат. И это все является снижением не только КПД, но и срока эксплуатации печки бубафоня.
Внимание! Слишком толстый металл корпуса тоже не является эффективным решением. Потому что тепловая инерция (и временная тоже) создадут условия, при которых котел может закипеть. Поэтому оптимально считается, что толщина стенки прибора должна быть в пределах 6 мм. А если используется для сборки печки жаропрочная сталь, то толщину можно снизить до 4 мм.
Печь из бочки с тонкой стенкой
Котел из газового баллона
Бубафоня из газового баллона (чертеж приложен) – это наилучшее решение. По сути, это готовый корпус с днищем. Остается только отрезать скругленный верх, который прекрасно будет справляться с ролью крышки.
- Перед началом резки надо открыть вентиль баллона, чтобы спустить остатки газа. Специалисты вообще советуют перед любыми манипуляциями с баллоном промыть его теплой водой.
Для чего откручивается вентиль и в отверстие заливается вода. - Срезать крышку можно болгаркой из газовым резаком. Рез производится по началу скругления.
- После чего линию среза на корпусе и крышке надо доработать болгаркой, на которую насаживается шлифовальный камень. Чистота кромок – основное условие правильной сборки бубафони.
Бубафоня из газового баллона
Сборка распределителя воздуха
Основной элемент распределителя воздуха – блин, который вырезается из листового железа. Основной его параметр – диаметр. По сути, это внутренний диаметр газового баллона, из которого надо вычесть две ширины зазора между блином и стенками корпуса печки. Есть определенные строгие нормы зазора. Они соответствуют соотношению – 0,05D, где D – это внутренний диаметр баллона. К примеру, если D равно 300 мм, то зазор будет равен 15 мм. Теперь можно подсчитать и диаметр блина: 300-15×2=270 мм.
Теперь необходимо определиться с размерами ребер, которые будут утяжелять блин и создавать зазор между ним и топливом.
Что касается толщины листа, из которого будет вырезан блин, то здесь также есть свое соотношение относительно диаметра корпуса бубафони (с водяным контуром или без такового). И чем меньше диаметр печки, тем толще в ней должен использоваться блин. Данный размерный показатель является критичным, то есть, он должен быть точным. Проводимые расчеты очень сложны, поэтому мастера пользуются уже готовыми соотношениями.
| Диаметр печки, мм | Толщина блина, мм |
| 300 | 6-10 |
| 400 | 6-8 |
| 600 | 4-6 |
| 800 | 2,5-4 |
В качестве ребер для распределителя воздуха можно использовать разные профили (готовые или изготовленные своими руками).
На фото ниже показано несколько вариантов, которые можно использовать при изготовлении печи бубафони своими руками (схемы и чертежи здесь не нужны). Все достаточно просто. Главное – правильно по размерам нарезать элементы, правильно их уложить по месту и приварить. Кстати, сварку необязательно проводить по всем линиям стыка, можно ее провести по участкам.
Сборка распределителя воздуха
Внимание! На фото хорошо видно, что нижний конец трубы располагается по нижнему краю ребер. Это делается с единственной целью, чтобы входящий в зону горения воздух несколько сантиметров прошел по трубе, которая сама располагается в этой зоне. То есть, воздух попросту нагревается, перед тем как попасть в зону тления дров или опилок.
Обратите внимание на вторую картинку, где показан распределитель с изогнутыми ребрами. Такую конструкцию устанавливают в печки с большой высотой и небольшим диаметром.
- Во-первых, таким образом, увеличивается путь воздуха из трубы до топлива.

- Во-вторых, происходит завихрение, что помогает в небольшом объеме максимально сжигать его.
Немного о дымоходе
Сечение дымохода котла бубафоня зависит от объема заложенного топлива и от теплоемкости его сгорания. Формула такая:
S=1,75 x e x M, где е – это теплоемкость топлива, М – масса закладки. Теплоемкость у каждого вида топлива разная. Вот только несколько видов.
- Дрова – 2,82 кВт/ч.
- Опилки – 3,2.
- Уголь – 4,85.
- Брикеты из разных пород дерева – 3,1-3,5.
- Торф – 2,36.
Котел с водяной рубашкой
На фото ниже показан котел бубафоня с водяной рубашкой (чертеж принципиальной схемы). Конструкция на самом деле простая, в состав которой входит сама печь с двойной стенкой, между которыми находится вода для нагрева. Понятно, что основное значение а в данном случае – это зазор. Ничего считать уже не надо, потому что все отработано на практике. Поэтому зазор 40-60 мм – идеальный.
Принципиальная схема работы бубафони с водяной рубашкой
Что касается толщины металла, используемого для сооружения бубафони, то тут есть определенное соотношение: 1 мм толщины на 1 бар давления, создаваемого водой при нагреве.
При этом учитывается, что данное соотношение берется из расчета высоты котла в 2 м. По итогам опытных образцов толщина стенки в 2,5 мм прекрасно справляется с нагрузками.
Сборка бубафони
Итак, изготовленная печь длительного горения своими руками по чертежам (или без них) готова, можно переходить к ее эксплуатации.
- Делается закладка топлива, которая поджигается сверху.
- Сверху устанавливается блин, к которому приварена труба для подачи воздуха.
- Сверху трубы и самого котла устанавливается крышка, которую скрепляют металлической лентой на лягушке.
В принципе, все. Теперь о некоторых требованиях по установке.
- Ставить агрегат можно только на огнеупорное основание. Хорошо, если к печке приварить четыре ножки.
- В системе дымохода должен быть сборник конденсата, в который обязательно монтируется сливной вентиль.
- Стены, у которых будет производиться монтаж печи, должны быть облицованы негорючим материалом.

Печка бубафоня в теплице
Такие печки в основном используются для обогрева подсобных и хозяйственных помещений (гараж, склад, цех, хлев и так далее). Но сегодня, исходя из экономии топлива, производится эксплуатация бубафони в теплицах, где они себя неплохо зарекомендовали. И все дело не только в том, что они имеют неплохой КПД и экономичное сжигание топлива. В них можно сжигать практически любой вид твердого топлива. К примеру, булерьян рассчитан только на дрова, а бубафоня может работать и на угле.
Сегодня по поводу эксплуатации и конструкции данной разновидности печек много вопросов. К примеру, а может ли работать бубафоня на отработке? Сразу надо оговориться, что это печь длительного горения на твердом топливе. На отработке может работать другой тип печек, и также с большой экономией топлива и неплохим КПД. Только называются они по-другому, и конструкция и у них тоже другая.
устройство самодельной печки длительного горения, изготовление «Бубафони» своими руками и особенности обогрева теплицы печью на дровах
Урожай культур напрямую зависит от погодных условий, в частности, от температуры в теплице.
В регионах с суровым климатом для своевременного сбора урожая сооружают специальные конструкции, обогревающие теплицы. Их размер и количество зависит от площади теплицы. Так как нагревательные приборы будут эксплуатироваться в течение длительного времени, требуются существенные материальные затраты на оборудование. Следовательно, будет расти и себестоимость урожая.
Типы отопления и виды печей
Теплицы обогреваются несколькими методами:
- биологическим;
- электрическим;
- воздушным;
- газовым;
- печным.
Печное отопление представляет собой наиболее экономичный вариант отопления, который позволяет применять большинство видов топлива. Они могут работать как на дровах, угле, газе и даже на гранулах.
Печное отопление имеет один существенный недостаток – пересушивание воздуха вследствие быстрого нагревания оборудования.
- Печное отопление на опилках, которые являются отходами деревообрабатывающих предприятий. Поэтому на покупку данного топлива не нужны большие затраты. Для сооружения печки на опилках необходимо приобрести бочку из жести, лучше пару бочек, газовый баллон и отрезок трубы.
- Печка на отработанном масле – экономный вариант отопления с длительным горением. Подверженные отработке масла утилизируются из любого автомобильного парка, поэтому работники автопарка с радостью поделятся маслом.
- Для обогрева теплицы в холодное время года применяют печи-буржуйки, которые обеспечивают хорошее отопление.
- Кирпичная отопительная печь Кузнецова вызывает у садоводов особый интерес благодаря высокому КПД (80%).
Однако корпус печки из кирпича необходимо утеплять базальтовым материалом. - Чудо-печь на солярке – отличное решение для тепличного помещения, где нет подключения к центральной системе отопления. Печка используется и как дополнительный, и как основной источник тепла.
Существует много видов печей для обогрева теплиц, которые отличаются друг от друга:
- принципом передачи тепла;
- конвекцией;
- излучением;
- основными и дополнительными деталями;
- камерой сгорания топлива;
- трубами для подачи воздуха.
Схема и установка определенной печи может быть осуществлена только после изучения всех деталей нагревательного процесса.
Необходимо знать, что печи для больших теплиц и маленьких отличаются порядовкой.
Варианты топлива
Тепличное отопление предусматривает использования разнообразного вида топлива. Самым доступным топливом являются дрова. Конструкция дровяного оборудования не представляет собой ничего сложного. Дровами можно топить и печки длительного горения. Для небольшой теплицы будет достаточно загрузить топливо раз в день.
Для более качественного обогрева может использоваться уголь, основное достоинство его – высокая калорийность, а недостатки – много отходов: зола, пыль. И также во время сжигания угля в атмосферу выделяются вредные и токсичные газы, а некоторые виды угля даже способны самовозгораться, если не соблюдать условия хранения.
В последнее время для отопления в качестве топлива стали использоваться опилки.
Печи, в которых они выделяют тепло, относятся к конструкциям длительного горения. Качественное топление сопровождается небольшим дымом. Такой вариант печи несложно выполнить самостоятельно. Печка имеет довольно высокий КПД.
Парниковые сооружения могут отапливаться также печами, в которых в качестве топлива применяются топливные брикеты. Такое топливо по сравнению с углем или дровами имеет лучшие характеристики, например, меньшим задымлением, быстрым разгоранием и отсутствием вредного воздействия на воздух. Использование топливных брикетов позволяет избежать искрения, а долгое горение – поддерживать необходимую температуру. Печка с таким видом топлива обладает высоким КПД, экологичностью и экономичностью.
Некоторые дачники используют в качестве топлива жидкость.
Однако это не совсем подходит для обогрева ввиду токсичности и высокой стоимости.
Оптимальный выбор
Оптимальным вариантом отопления теплиц является установка печи буржуйки, которая считается наиболее экономичной и простой в эксплуатации. Обогреватель состоит из бочки с дверцей для топки, дымоотвода, трубы для выхода тепла наружу, перемычки в верхней части.
Происходит обогрев благодаря перемещению дыма:
- По трубе перемещается горячий дым, труба устанавливается либо по бокам теплицы, либо по центру.
- Поверхность печи излучает теплоту.
- Над перемычкой образуется теплый воздух и выходит наружу по трубе.
В качестве топлива могут использоваться отходы пиломатериалов, угли или дрова.
От вида топлива и проникания воздуха в топочное пространство печи зависит качество горения. Такой способ отопления подходит для тех, кто часто может контролировать процесс горения. Это является единственным недостатком буржуйки.
У печей длительного горения этот минус является преимуществом: в них топливо можно подкладывать гораздо реже. Они также расходуют меньше топлива и уменьшают нагревание стенок печи без уменьшения теплоотдачи. Они очень схожи по характеристикам с инфракрасными обогревателями.
Печь длительного горения имеет две камеры, одна из которых полностью сжигает остаточное топливо, а другая сжигает только основную часть. Доступ кислорода в камеру ограничен, в результате чего топливо не сгорает сразу, а долго тлеет с выделением большого количества тепла.
В качестве топлива для печей длительного горения могут использоваться различные бытовые отходы, но без вреда для растений. Постоянство температуры в тепличном помещении обеспечивает необходимые условия для роста культур.
Однако перед установкой такой печи необходимо учитывать множество факторов.
Центральная дровяная конструкция: плюсы и минусы
Центральная дровяная конструкция изготовляется из металлических или кирпичных материалов. При этом чем больше теплица, тем больше печная конструкция. Ее назвали центральной из-за надобности установки посередине теплицы, что позволяет оптимально распределить тепло по всей площади тепличного помещения.
Такая конструкция работает на дровах, поэтому особенных приспособлений не требуется для эксплуатации.
Центральная дровяная печь обладает немалым количеством недостатков.
- Частые поливы растений и постоянное увлажнение воздуха в теплице. Из-за быстрого нагрева воздух быстро сушится, а значит и почва. Некоторые сельскохозяйственные культуры не переносят такой климат в теплице. Установка бочек с водой рядом с печью позволить немного компенсировать этот минус.
- Другим немаловажным моментом является неравномерное распределение горячего воздуха по всей площади тепличного помещения. Самая высокая температура будет поддерживаться рядом с печью, а чем дальше растения, тем воздух будет холоднее. В результате замерзнет некоторая часть растений по периметру. Это необходимо учитывать, если теплица большого размера и с высоким потолком.
Выровнять температуру можно с помощью индукционных ламп длительного горения.
Их располагают в самых отдаленных частях теплицы. И также обогрев инфракрасным обогревателем позволит сохранить культуры. Такой вариант для теплиц с низкими потолками не подходит: необходимо сделать выбор в пользу дровяной печи или индукционной лампы. Если выбрана печь, то вблизи необходимо установить небольшие вентиляторы для разгона теплоты.
Бубафоня
Печи буржуйки обладают небольшим КПД и необходимостью частой догрузки топлива. Умелец Бубафоня придумал самодельную конструкцию, которая отличается принципом сгорания топлива.
Особенности и устройство
Основное отличие в печи Бубафони – верхний забор воздушной массы, что привело к таким положительным свойствам, как:
- более длительное горение топлива;
- нет необходимости в частой загрузке топки;
- лучшее сохранение тепла;
- экономичность, потому что такую печь можно сделать из подручных материалов: бочки из железа или металла; в качестве топлива можно использовать не только дрова, но и доски, щепки, картон или стружки.
А также печь Бубафоня работает автономно, то есть без использования электрической энергии.
Есть и минусы такой конструкции:
- внешне выглядит непрезентабельно;
- средняя теплоотдача;
- нагарообразование на стенках печи;
- образуется конденсат, который в зимнее время замерзает и перекрывает основную трубу;
- во время забора воздуха иногда появляется огонь из воздуховода;
- с установкой такой печки необходимо позаботиться о вентиляции в теплице.
Чтобы самостоятельно сделать Бубафоню, необходимо знать устройство и принцип работы печи. Воздух заходит через верхнюю трубу, а топливо начинает гореть.
Сгорая, зола будет накапливаться на поверхности топлива и мешать ему гореть. Из-за этого нужно позаботиться об установке пресса в виде металлического блина, диаметр которого немного меньше бочки. Посередине блина просверливается отверстие для трубы с кислородом.
Топливо сгорает, и пресс опускается, вымещая золу между блином и стенкой. Такая зола остывает и уходит через дымоход с остальными продуктами горения.
Изготовление
Изучив чертежи и схемы печи, поняв принцип работы, можно своими руками сделать Бубафоню. Немаловажным моментом является выбор емкости. В качестве нее может использоваться труба большого диаметра, бочка, пустой газовый баллон.![]()
Что бы то ни было, придется доделать конструкцию:
- избавиться от крышки;
- для получения емкости с открытым верхом необходимо заварить дно;
- приготовление пресса: для этого подойдет металлический листовой круг;
- по центру просверлить отверстие для трубы и присоединить трубу с помощью сварки;
- на крышку тоже приваривается труба с большим диаметром для того, чтобы первая труба могла скользить свободно;
- для создания зазора, чтобы воздух проходил между поверхностью и топливом, на трубу закрепить профиль из металла;
- для топки изготовить дверцу из железного листа и прикрепить;
- сверху емкости проделать отверстие для дымохода и присоединить трубу;
- сделать ножки для печки, если днище не «стоит».

При изготовлении дымохода необходимо учитывать необходимость создания сопротивления, что позволит более длительной задержке тепла.
До установки печи необходимо под нее сделать фундамент из кирпичей и подложку из оцинкованного листа. Это поможет избежать нагрев нижней части печки, что приводит к гибели близко растущих культур. Фундамент также сохраняет и распространяет теплоту.
После установки печи необходимо обложить кирпичами для улучшения теплоотдачи.
Булерьян: отличительные черты
Булерьян – печка длительного горения, очень похожа на буржуйку. Здесь также воздух обогревается горячим дымом от труб по периметру теплицы, становясь также горячим. В отличие от буржуйки, в Булерьяне воздух нагревается иначе: прохладный воздух входит в нижнее отверстие трубы и начинает нагреваться корпусом топочного пространства, куда прилегают трубы.
В результате прохладный воздух нагревается до 60 градусов и уходит через верхнее отверстие. Топливо для печи: дрова, угли, пеллеты, отходы пиломатериалов.
Булерьян, в отличие от буржуйки, обладает некоторыми преимуществами.
- Больший КПД в результате дожигания дымовых газов. В итоге топлива расходуется меньше, а теплота получается больше.
- Полное сгорание топлива.
- Один раз затопив Булерьян, она может работать трое суток, что намного облегчает труд садоводу. Для людей, которые не могут каждые сутки закладывать топливо, это отличный вариант.
Часто Булерьян называют конструкцией без недостатков, однако все же есть один минус, который не связан с конструкцией печи, производительностью и экономичностью: выделение едких компонентов, которые не подвергаются утилизации.
Изначально Булерьян применяли лесорубы Канады, которым часто приходилось вести кочевой образ жизни.
Поэтому печь должна была обеспечить безопасность и максимально быстро нагревать помещение.
Для быстрого нагрева теплицы нужно поддерживать постоянный процесс горения, однако Булерьян работает в основном в режиме тления. При постоянном интенсивном горении металлическая поверхность печи очень скоро прогорит.
Для розжига печи применяются сухие щепки, картон, бумага. Главное – чтобы они были сухими и быстро сгорали. За процессом горения следят через стеклянную дверь или дроссель. Когда топливо превращается в угли, снова подкидывают топливо. Нельзя использовать в качестве топлива угли, так как Булерьян – дровяная печка. Для нагрева даже большой теплицы много времени не потребуется.
Категорически запрещается повышать температуру в печи до сверхвысоких температур. Во-первых, прогорит металлическая поверхность, во-вторых, излишнее тепло выйдет на улицу, так как теплопроводность труб ограничена, в результате чего избыток тепла не передается воздуху.
А также в качестве топлива не рекомендуется применять кокс – это приведет к поломке устройства.
При установке Булерьяна необходимо придерживаться правил пожарной охраны. Устанавливается печь на негорючей поверхности, например, на кирпичах, уложенных плашмя, или металлической подставке.
При изготовлении своими руками печи немаловажным элементом является дымоход, к которому предъявляются требования:
- материал дымохода: кирпич, бетон, металл;
- параметры дымохода.
В установке печки Бурельян нет никакой сложности, достаточно подготовить место, грамотно сделать дымоход и можно начинать нагрев.
О видах и особенностях печей для теплиц смотрите в следующем видео.
youtube.com/embed/tjH6iEz7N0Y?modestbranding=1&iv_load_policy=3&rel=0″/>
Бубафоня для отопления теплицы
Самодельная печь длительного горения Бубафоня
Впервые печь длительного горения Бубафоня по достоинству смогли оценить посетители и участники строительного форума. Конструкцию выложил в сети мастер Афанасий, который как раз и имел логин bubafonja. Отсюда и появилось смешное название печки.
Преимуществом конструкции является простота и высокая производительность. Хотя изначально предполагалось, что будет использоваться для теплицы, печка Бубафоня стала настолько популярной, что некоторые начали использовать ее для отопления жилых помещений.
- Какие особенности отличают конструкцию?
- Можно ли устанавливать печку для отопления дома?
- Как сделать своими руками?
- Есть ли печки Бубафоня недостатки?
Устройство печи Бубафоня
При достаточном количестве воздуха в топке дрова сгорают буквально за несколько минут.
Конструкция печи длительного горения Бубафоня создана с учетом этой особенности, что отражается на принципе ее работы. Процесс горения осуществляется следующим образом:
- Горение выполняется сверху вниз.
- Используется распределитель воздуха для дожига газов, позволяющий получить дополнительную тепловую энергию. Узел распределения воздуха связан с телескопической трубой. По мере сгорания топлива, блин, находящийся на конце, опускается под собственным весом.
- Удалять золу требуется крайне редко. Выгребается зола через зольник, через него же воздух поступает в топку.
- Регулировка тяги выполняется с помощью задвижки на печи. Растопка происходит на полной тяге, при интенсивном горении. Особенностью конструкции является то, что дрова или другое топливо поджигается сверху при разобранном корпусе. После того как пламя разгорелось, устанавливается распределитель воздуха и надевается верхняя крышка.
- Благодаря контролируемой подаче воздуха в печи происходят процессы газогенерации.
Топливо тлеет и выделяет большое количество газа, которое дожигается в камере полного сгорания. - Растопка осуществляется буквально, за несколько минут, конечно, при условии, что длина трубы, используемая под дымоход, соответствует необходимым требованиям.
Печка Бубафоня с водяной рубашкой появилась как результат самостоятельных модификаций и изменений конструкции устройства. Существует несколько решений нагрева воды. Но в основном используется отопительная печь Бубафоня с водяным контуром, (также есть варианты печи с обдувом) который располагается вдоль всего корпуса.
Обдув существенно увеличивает теплоотдачу и позволяет получать тепло на любом этапе сжигания топлива.
Водяное отопление увеличило КПД печи и позволило использовать ее для обогрева всего дома, а не только гаража или подсобных помещений, где стоит печь.
Размеры печи зависят от того, какой материал используется для производства. Наиболее популярными заготовками являются металлические бочки и газовые баллоны. Подробное устройство печки позволяет сделать ее самостоятельно без потери качества и производительности.
Из чего можно сделать печь Бубафоня
Как уже замечалось, сделать печь Бубафоня своими руками достаточно просто. Со временем появились варианты и модификации оборудования, повлиявшие на производственный процесс.
Самая экономичная печь на дровах Бубафоня изготавливается многими способами, но наиболее популярными из них являются:
- Печка Бубафоня из бочки – популярная конструкция. Бочка позволяет использовать водяную рубашку и подключить оборудование к отопительной сети дома.
Простая печь из бочки также имеет преимущества связанные с большим объемом топочной камеры влияющей на длительность работы от одной закладки. - Печь Бубафоня из газового баллона – этот вариант пользуется популярностью благодаря простоте изготовления. Достаточно просто срезать верхнюю часть газового баллона и корпус практически готов. Осталось изготовить металлический блин и крышку. Пиролизная печь длительного горения Бубафоня из газового баллона обычно используется для небольших помещений – теплиц, гаражей и т. д.
Некоторые варианты конструкции предусматривают возможность установить корпус из пропанового баллона в металлическую бочку большего диаметра. Между ними заливается вода и таким образом изготавливается печка с водяным контуром.
Отопление теплиц с помощью печи Бубафоня по-прежнему остается одним из основных методов использования оборудования.
В зависимости от объема топки, печка может работать в автономном режиме от нескольких часов до 2 суток.
Чем можно топить печь Бубафоня кроме дров
Все топливные печи долгого горения Бубафоня могут работать практически на любом виде твердого топлива, что делает их универсальными и удобными в эксплуатации. Используемое сырье влияет на КПД, а также время автономной работы.
- Уголь – позволяет увеличить срок автономной работы до 60 часов. Печь Бубафоня может топиться на угле, но побочным эффектом будет большое количество сажи и необходимость в частой очистке дымохода и топочной камеры.
- Опилки – этот вид топлива также используется достаточно часто. Топка на опилках должна осуществляться с добавлением сухой древесины, достаточно добавить 30% дров от общего объема топки. Горение опилок должно осуществляться с большей тягой.
- Дрова – оптимальный вариант. Дрова обеспечивают полное сгорание в печи практически без сажи. Длительное тление способствует выделению большого количества газа, используемого для дополнительного получения тепловой энергии.
Растопка печи выполняется просто. Единственным требованием, предъявляемым к дровам, является низкое содержание влаги в его составе.
Медленное горение позволяет обеспечить автономную работу аппарата в течение нескольких суток при полной закладке топочной камеры. Для топки можно использовать и другое топливо: старый картон, ветки, стружку, старые книги и ДСП.
Недостатки печи Бубафоня
Изготовление печи Бубафоня и ее эксплуатация имеют не только положительные стороны. Существует также несколько минусов, которые стоит учитывать. А именно:
- Самодельные печи Бубафоня изготавливают из старых бочек, баллонов. Внешний виду у таких аппаратов совершенно неприглядный. Поэтому чаще всего печки конструкции Бубафоня используют именно для технических помещений, а не для жилого дома.
- Ограниченная теплоотдача – самодельные металлические печи на твердом топливе Бубафоня используют в своей работе принцип верхнего горения. По этой причине нагрев топочной камеры выполняется неравномерно, а только в том месте, где на данный момент находится пламя.

- Устройство дымохода – наличие хорошей тяги является обязательным, для этого потребуется сделать систему дымоотведения подходящей высоты. Дымоход должен легко разбираться и иметь ревизии для чистки.
Сделать печку Бубафоня своими руками достаточно просто, но основной сферой ее применения остается отопление технических помещений и теплиц.
3 Способы обогрева теплицы бесплатно
Теплицы могут быть интересной средой для роста. Это связано с тем, что стандартные тепличные материалы, такие как стекло и пластик («остекление»), очень хорошо пропускают свет и тепло и очень хорошо отводят тепло. При такой большой площади застекленной поверхности теплицы обычно перегреваются в течение дня, если их не контролировать. А поскольку стекло и пластик не обеспечивают теплоизоляции, ночью они теряют тепло, что приводит к их замерзанию. Возьмем, к примеру, этот октябрьский день в Боулдере, штат Колорадо: температура в цельностеклянной теплице колебалась от максимума 110 F до минимума 30 F за один день.
Растения, как и люди, этого не любят.
Основная задача тепличного выращивания — стабилизировать эти колебания температуры. Обычно для этого люди направляют энергию через системы отопления или охлаждения в теплицу. Но более разумный и устойчивый способ создания стабильной тепличной среды — это использовать избыточную солнечную энергию, поступающую в течение дня, хранить ее и использовать ночью. Или, если вы работаете с существующей теплицей, добавьте эффективный обогреватель, который использует дешевое и возобновляемое топливо.Все эти стратегии требуют понимания и исследования и требуют определенных первоначальных затрат, но окупаемость в виде дополнительного роста и долгосрочной экономии того стоит.
Кроме того, помните, что нет более дешевой энергии, чем энергия, которую вам не нужно использовать, поэтому при проектировании новой теплицы строите ее так, чтобы она не требовала большого нагрева и охлаждения. Это означает создание воздухонепроницаемой изолированной конструкции, использование подходящих кровельных материалов и ориентацию теплицы с остеклением на юг — откуда исходит весь наш свет в Северном полушарии.
Если вы выращиваете в существующей теплице, вы можете, среди прочего, изолировать теплицу и герметизировать воздуховоды. Снижение потребности в энергии до минимума — это всегда первый шаг, затем используйте следующие стратегии.
1) Хранение солнечной энергии в тепловой массе
Самый простой и распространенный способ выровнять температуру в теплице — использовать тепловую массу, также называемую радиатором. Термическая масса — это любой материал, накапливающий тепловую энергию. Большинство материалов делают это в той или иной степени, но некоторые делают это намного лучше, чем другие.Например, вода удерживает примерно в 2 раза больше тепла, чем бетон, и примерно в 4 раза больше, чем почва.
Объединение массы делает две вещи. Во-первых, он поглощает лишнюю энергию в течение дня, создавая охлаждающий эффект. Когда температура падает ночью, он начинает выделять эту энергию, тем самым «нагревая» теплицу. Примечание: хотя я говорю «охлаждение и нагрев», тепловая масса на самом деле не обеспечивает энергию, она просто накапливает ее и высвобождает позже, как аккумулятор.
Размер батареи (или количество энергии, которое вы можете сохранить) зависит от теплоемкости материала и вашей массы. Ниже приведена таблица, в которой сравниваются несколько различных источников тепловой массы и их теплоемкости.
Как к
Самый распространенный способ использования термальной массы — это бочки с водой, потому что они обладают такой высокой теплоемкостью. Уложив несколько бочек с водой на 55 галлонов в теплицу, производитель может добавить много тепловой массы. Бочки следует штабелировать под прямыми солнечными лучами, часто на северной стене.Поскольку растениям будет теплее вокруг бочек с водой, поместите более нежные растения, такие как посевные лотки или культуры для теплой погоды, на бочки или рядом с ними. Выращивание с использованием системы аквапоники — симбиотического выращивания рыб и растений — имеет приятное преимущество: аквариум с рыбой увеличивает тепловую массу вдвое. Другие варианты включают в себя строительство теплицы из бетона или камня — например, использование бетонной северной стены или каменного пола.
Даже почва на грядках добавит тепловую массу.
Хотя установка и проста в установке, тепловая масса может медленно реагировать.На распространение тепла по теплице требуется больше времени, что снижает его эффективность. Но, учитывая низкую первоначальную стоимость, добавление термальной массы в теплицу является популярным методом продления вегетационного периода. Возможно, это не даст вам круглогодичного роста всего, но, безусловно, может вывести вашу теплицу на новый уровень.
2) Установить теплообменник
Чтобы на один шаг превзойти стандартную тепловую массу, вы можете включить теплообменник для циркуляции воздуха с по , являющегося источником массы.У этой идеи много названий. Ее часто называют климатической батареей или подземной системой отопления и охлаждения (SHCS) — название, популяризированное Джоном Крукшенком из sunnyjohn.com. Ceres Greenhouse Solutions, базирующаяся в Боулдере, штат Колорадо, также имеет разновидность системы, называемую системой передачи тепла от земли к воздуху (GAHT).
Существует множество конфигураций, но механизм передачи и хранения энергии всегда один и тот же. Когда теплица нагревается в течение дня, вентилятор нагнетает теплый влажный воздух изнутри теплицы через сеть труб, заглубленных на глубину до 4 футов (большинство систем состоит из пары слоев труб, заглубленных на 4 и 2 фута ниже). поверхность).Падение температуры заставляет водяной пар конденсироваться, и в этом процессе (называемом фазовым переходом) выделяется энергия. Эта энергия хранится в почве, вызывая нагревание почвы. Таким образом, круглый год под теплицей образуется большая масса теплой почвы. Ночью, когда в теплице понижается температура, снова включается вентилятор и забирает тепло из почвы. Это относительно простая, проверенная временем система; Теплообменники земля-воздух используются в домах на протяжении десятилетий.
Теплообменник типа «земля-воздух» работает очень хорошо по двум причинам. Во-первых, доступная масса (размер батареи, как мы упоминали ранее) огромен.
Например, под теплицей размером 12 на 16 футов имеется 768 кубических футов почвы, если принять глубину 4 фута. Если вы выровняете всю северную стену той же теплицы двумя рядами по 55 галлонов бочек с водой (16 бочек), их масса будет в общей сложности 118 кубических футов. Это означает, что с учетом объемной теплоемкости, указанной в таблице выше, подземный теплообменник имеет примерно вдвое большую мощность, чем бочки с водой.Более того, потому что теплообменник земля-воздух соединяется с землей и, таким образом, теоретически имеет бесконечную мощность. Чтобы лучше понять это, см. Изображение теплиц CERES здесь.
Во-вторых, поскольку воздух активно проталкивается через «батарею», это увеличивает скорость теплообмена. Более горячий / холодный воздух распределяется по теплице более равномерно, предотвращая образование холодных карманов. Кроме того, использование вентиляторов позволяет использовать массу, когда вы хотите: термостат включает и выключает вентилятор при определенных заданных температурах.
То есть вентилятор начнет закачивать теплый воздух в почву, когда теплица достигнет заданной температуры (скажем, 80 F), и поднимет его обратно, когда она опустится ниже 50 F. Таким образом, подземный теплообменник дает вам некоторый контроль над термическая масса; это все равно что взять тепловую массу и сделать ее умнее.
Варианты
Материал батареи может отличаться. Некоторые люди засыпают территорию под теплицей гравием или камнями вместо земли. Если у вас уже есть теплица или вы не можете проводить земляные работы на своем участке, вы можете создать альтернативный наземный аккумулятор.Вы можете построить изолированную массу из почвы или другого материала, например, ящик из речных камней перед теплицей. Система работает так же, только другое расположение тепловой массы.
3) Используйте эффективный обогреватель на возобновляемых источниках энергии
Вышеупомянутые системы показывают вам, как использовать солнце и накапливать солнечную энергию, что является хорошим первым шагом к естественному отоплению.
Если необходимо дополнительное отопление, подумайте о высокоэффективной системе отопления, которая работает на дешевом и возобновляемом топливе.
Одной из распространенных систем, используемых в теплицах, является нагреватель реактивной массы, сверхэффективный вариант дровяной печи. Вместо того, чтобы просто выпускать горячий воздух прямо из дымохода, как это делает стандартная дровяная печь, обогреватель реактивной массы сначала направляет горячий воздух через массу глины, кирпича или камня, прежде чем он истощится. Воздух нагревает массу, которая удерживает тепло, и медленно излучает его обратно в теплицу в течение длительного периода времени, даже после того, как печь погасла.В обогревателе ракетной массы также используется двойная камера сгорания, что делает его намного более эффективным, чем обычная дровяная печь — пара часов горения небольшим количеством дров может обогреть теплицу за ночь. Большинство нагревателей ракетной массы — это системы DIY; вам нужно будет изучить и спроектировать систему, которая подходит для вашей теплицы, используя множество планов и пояснений в Интернете.
Еще одна распространенная тепличная система — это нагреватель компостных куч, который использует магию аэробных бактерий для разрушения органических материалов и выделения отработанного тепла.Как и подземный теплообменник, нагреватель компоста также основан на теплообменнике: вода циркулирует по трубам, проходящим через большую компостную кучу. Из-за аэробного разложения компостная куча может поддерживать температуру 100-160 F. Затем нагретая вода циркулирует по теплице, где она распределяет тепло. Из всех систем эта, вероятно, потребует больше всего усилий, чтобы наладить работу и продолжить работу. Вы должны сначала построить свою компостную кучу из подходящего материала и консистенции, чтобы довести ее до высокой температуры, и продолжать добавлять к ней или перестраивать кучу по мере ее разложения.Однако большая, правильно построенная свая (см. Рисунок ниже) может обогреть теплицу площадью 1000–2000 кв. Футов на зиму. По этим причинам обогреватели для компоста лучше всего подходят для больших теплиц.
Сводка
Куда идти? В игре участвует несколько факторов:
Каковы ваши цели (сколько места вы пытаетесь обогреть и в какой степени)? Каждая система имеет разную мощность нагрева. Какой контроль вы хотите иметь? (Некоторые системы активны, а некоторые пассивны.(то есть, вы можете запустить нагреватель массы ракеты, но вы мало что можете сделать, чтобы заменить бочки с водой).
С какими ограничениями вы уже работаете? (т.е. сложные / каменистые почвы исключают возможность установки подземного теплообменника.) Подумайте, сколько места в теплице у вас есть для таких вещей, как бочки с водой. И, что наиболее важно, подумайте о времени и трудозатратах, затрачиваемых на установку каждой системы, а также о текущем времени / трудозатратах, которые могут потребоваться для запуска каждой системы (т. Е. Подземный теплообменник можно автоматизировать, тогда как нагреватель ракетной массы не может быть).Опять же, хотя вам нужно заранее сделать домашнюю работу, лучшая награда, которую вы можете получить, — это теплая оранжерея, производящая свежие продукты всю зиму (и бесплатно!).
(вверху) Фотографии предоставлены Ceres Greenhouse Solutions: трубы в подземном теплообменнике для теплицы 12 x 20. 3D-модель подземного теплообменника под землей.
(В центре) Фото любезно предоставлено Verge Permaculture: обогреватель ракетной массы в теплице.
(Внизу) Фотографии любезно предоставлены Golden Hoof Farm: компостная куча в середине строительства с трубками для аэрации.Готовая компостная куча.
Все блоггеры сообщества MOTHER EARTH NEWS согласились следовать нашим рекомендациям по ведению блогов, и они несут ответственность за точность своих сообщений. Чтобы узнать больше об авторе этого сообщения, нажмите на ссылку автора вверху страницы.
.Что такое парниковый эффект?
Краткий ответ:
Парниковый эффект — это процесс, который происходит, когда газы в атмосфере Земли задерживают тепло Солнца. Этот процесс делает Землю намного теплее, чем она была бы без атмосферы.
Парниковый эффект — одна из вещей, которые делают Землю комфортным местом для жизни.
Посмотрите это видео, чтобы узнать о парниковом эффекте!
Как работает парниковый эффект?
Как можно догадаться из названия, парниковый эффект работает… как оранжерея! Теплица — это здание со стеклянными стенами и стеклянной крышей.Теплицы используются для выращивания растений, таких как помидоры и тропические цветы.
Внутри теплицы остается тепло даже зимой. Днем в теплицу попадает солнечный свет, который согревает растения и воздух внутри. Ночью на улице холоднее, но внутри теплицы остается довольно тепло. Это потому, что стеклянные стены теплицы задерживают солнечное тепло.
Теплица улавливает солнечное тепло в течение дня. Его стеклянные стены задерживают солнечное тепло, благодаря чему растения в теплице остаются в тепле — даже в холодные ночи.
Предоставлено: NASA / JPL-Caltech
Парниковый эффект действует примерно так же на Земле. Газы в атмосфере, такие как углекислый газ, улавливают тепло, как стеклянная крыша теплицы. Эти удерживающие тепло газы называются парниковыми газами.
Днем сквозь атмосферу просвечивает Солнце. Поверхность Земли нагревается на солнце. Ночью поверхность Земли охлаждается, возвращая тепло в воздух. Но часть тепла удерживается парниковыми газами в атмосфере.Это то, что поддерживает на нашей Земле тепло и уют в среднем 14 градусов по Цельсию.
Атмосфера Земли улавливает часть солнечного тепла, не позволяя ему уйти обратно в космос ночью. Предоставлено: NASA / JPL-Caltech
.Как люди влияют на парниковый эффект?
Человеческая деятельность меняет естественный парниковый эффект Земли. При сжигании ископаемого топлива, такого как уголь и нефть, в нашу атмосферу попадает больше углекислого газа.
НАСА наблюдало увеличение количества углекислого газа и некоторых других парниковых газов в нашей атмосфере.
Слишком много этих парниковых газов может привести к тому, что атмосфера Земли будет улавливать все больше и больше тепла. Это заставляет Землю нагреваться.
Что снижает парниковый эффект на Земле?
Так же, как и стеклянная теплица, земная теплица также полна растений! Растения могут помочь сбалансировать парниковый эффект на Земле. Все растения — от гигантских деревьев до крошечного фитопланктона в океане — поглощают углекислый газ и выделяют кислород.
Океан также поглощает из воздуха много избыточного углекислого газа.К сожалению, увеличение содержания углекислого газа в океане изменяет воду, делая ее более кислой. Это называется закислением океана.
Более кислая вода может быть вредной для многих морских обитателей, например, некоторых моллюсков и кораллов. Потепление океанов из-за слишком большого количества парниковых газов в атмосфере также может быть вредным для этих организмов. Более теплая вода — основная причина обесцвечивания кораллов.
На этой фотографии изображен обесцвеченный мозговой коралл.
Основная причина обесцвечивания кораллов — потепление океанов.Подкисление океана также отрицательно сказывается на сообществах коралловых рифов. Кредит: NOAA
5 низкотехнологичных методов обогрева зимних теплиц
Более низкие температуры означают более медленный рост, а это никогда не приветствуется в теплицах. Фактически, поднятие почвы всего на 10 градусов по Фаренгейту может увеличить высоту растения — в зависимости от растения — в два раза. Вот почему сохранение тепла имеет большое значение для производителей, стремящихся к максимальной эффективности, не тратя с трудом заработанный капитал на дополнительные нагревательные устройства.
У некоторых производителей будут средства для установки интегрированной системы экологического контроля с присоединенной системой отопления.Это фантастическая начальная инвестиция, которая принесет большие дивиденды во время сбора урожая. Но для других это может быть не вариант. Ниже приведены пять приемов пассивного обогрева для поддержания естественного тепла в теплице.
Покрасьте их в черный цвет
Это отличный вариант для производителей, у которых есть немного дополнительного места в теплице. Покрасьте внешнюю поверхность нескольких пластиковых контейнеров емкостью 55 галлонов плоской черной эмалью. Небольшие теплицы могут добиться того же эффекта с помощью окрашенных литровых кувшинов или ведер с краской.
Установите любой сосуд по вашему выбору в таком месте, где он будет получать как можно больше солнечного света в течение дня. Чем больше ведро, тем больше тепла будет сохраняться. По мере приближения ночи и снижения температуры тепло исходит из воды и согреет вашу теплицу или высокий туннель.
Наполняйте ведра только на три четверти пути. Если ведра плотно закрыты и нагреваются до определенной температуры, крышка может сорваться из-за повышения давления.Если все сделано правильно, теплица может оставаться в среднем на 20-30 градусов теплее, чем температура наружного воздуха — даже в разгар зимы!
Компост для утепления
Компост — лучший друг садовода.
Чтобы найти идеальную смесь для ваших конкретных культур, могут потребоваться годы. Но помимо обеспечения ваших растений необходимыми питательными веществами, компост имеет еще одно полезное применение: тепло. Химический распад компоста высвобождает энергию в виде тепла, которое может подниматься намного выше 100 градусов по Фаренгейту.Это принесет пользу вашим измученным теплом растениям зимой (и ускорит их рост).
Есть несколько способов реализовать эту низкотехнологичную технику. Вы можете использовать больше этих 55-галлонных бочек, упомянутых ранее, или тюков соломы.
Спасательные работы с рядами крышек
Это может быть менее изобретательно, чем бочки для компоста или галлонов, но крышки рядов — также известные как плавающие крышки рядов — могут защитить ваши растения от замерзания. Спросите у команды Pleasant Valley Farms в Аргайл, штат Нью-Йорк. В рамках этой четырехсезонной операции используются теплица Маттерхорн и два высокогорных туннеля Нор-Истер.Даже в суровые холода зимой на семейной ферме можно выращивать продукты.
Они благодарят за использование укрытий рядков и постоянный мониторинг погодных условий для защиты растений в ночное время.
Сохраняйте тепло
Вы когда-нибудь слышали поговорку «вы выросли в сарае?» То же самое и в теплице. Вы генерировали этот кровно заработанный жар всеми творческими способами, о которых мы говорили выше. Теперь убедитесь, что вы сохранили это тепло как можно дольше. Для этого осмотрите свою теплицу на предмет небольших трещин или щелей.Там, где вы найдете, нанесите силиконовый герметик, чтобы тепло не выходило. Клейкая лента также является вариантом для быстрой фиксации в переплете.
Только тепло, что вам нужно
Разделение пространства поможет сэкономить ценные ресурсы и повысить эффективность теплицы. Обогрев всего помещения, особенно в больших теплицах, может быть трудоемким и дорогостоящим мероприятием. Сначала сгруппируйте нежные растения и более выносливые растения в разные участки теплицы. Затем возьмите прочную перегородку из плексигласа или создайте занавески из пузырчатой пленки, чтобы разделить пространство на более легко обогреваемые пространства.
Это более экономично и позволит вам регулировать температуру по вкусу каждого растения, которое вы выращиваете.
Четырехсезонное выращивание является проблемой, особенно в зонах устойчивости 1-6. Без дополнительного тепла, выделяемого нефтью или газом, это может быть намного сложнее. Но с помощью этих низкотехнологичных методов все еще можно круглый год генерировать столь необходимое тепло для ваших растений.
У вас есть собственные низкотехнологичные способы получения пассивного тепла? Поделитесь богатством в комментариях ниже, чтобы другие производители могли использовать и получать прибыль.
.Топ-10 советов по обогреву теплицы зимой
| Защита нежных растений в самые холодные месяцы не требует больших затрат Изображение: Carmina_Photography |
Обогрев теплицы защищает нежные растения от худших зимних погодных условий, но растущие затраты на электроэнергию и забота об окружающей среде делают работу правильной.
Вот несколько советов о том, как обогреть теплицу и сохранить растения в тепле без ущерба для земли.
Изолируйте пузырчатой пленкой
Используйте садовую, а не пузырчатую пленку для изоляции теплицы, потому что она прочнее и выдерживает ультрафиолетовое излучение. Ищите большие пузыри, потому что они обеспечивают лучшую изоляцию и пропускают больше света. Вы можете прикрепить пузырчатую пленку, скрепить скобами или скотчем, но всегда сначала очищайте окна, чтобы свести к минимуму потери света.
Также используйте пузырчатую изоляцию, чтобы обернуть горшки на открытом воздухе, защищая корневые комки от морозов и предохраняя ваши любимые горшки от растрескивания.
Инвестировать в систему отопления теплицы
| Электрический нагреватель масла согревает саженцы, но вы также можете купить специальные нагреватели для теплиц Изображение: Shutterstock |
Электрический обогреватель является самым безопасным, с дополнительным преимуществом, заключающимся в том, что он не выделяет лишнюю влагу в воздух, как системы пропана и парафина.
Тепловентиляторы также помогают равномерно распределять тепло по теплице, уменьшая возможность образования холодных точек.
Если у вас нет электросети в теплице, пропановые и парафиновые обогреватели являются эффективными способами обогрева помещения, но вам нужно будет особенно осторожно открывать окна и двери в солнечные дни, чтобы снизить вероятность заражения плесенью вашей зимовки. растения.
Используйте термостат
Экономьте деньги и электроэнергию, обогревая теплицу только тогда, когда это действительно необходимо. Большинство электрических обогревателей для теплиц оснащены встроенным термостатом, поэтому вы можете настроить обогреватель так, чтобы он включался только тогда, когда температура опускается ниже определенной точки.
Используйте термометр
| Купите термометр, чтобы поддерживать постоянную температуру в теплице Изображение: V J Matthew |
Если вы не используете нагреватель с термостатическим управлением, купите хороший термометр с максимальными и минимальными показаниями.
Ежедневно проверяйте его и при необходимости регулируйте обогреватель для поддержания постоянного климата и максимальной топливной экономичности.
Выберите правильную температуру
Не тратьте энергию и деньги на поддержание более высоких температур, чем действительно необходимо вашим растениям.Как минимум, вы можете поддерживать температуру в теплице без мороза при температуре 3 ° C (37 ° F), но нежные растения, такие как пеларгонии, полутвердые фуксии и цитрусовые деревья, лучше подходят при минимальной температуре 7 ° C (45 ° F), а самые безопасные — при 10 ° C (50 ° F). .
Это также хорошая температура, если вы защищаете молодые растения и подключаете растения во время их выращивания. Если вам посчастливилось иметь зимний сад, используйте его, чтобы перезимовать самые нежные растения — те, которые не выдерживают температуры ниже 13 ° C (55 ° F).
Тщательно установите нагреватели
Разместите электрический тепловентилятор на открытом центральном месте в одном конце теплицы, вдали от воды.
Не допускайте высыхания листвы потоком теплого воздуха, наклоняя обогреватель так, чтобы поток воздуха направлялся над ближайшими растениями.
Обогревайте только ту область, которая вам нужна
Избегайте обогрева всей теплицы ради нескольких нежных растений, создав теплицу внутри теплицы. Возьмите прочную перегородку из плексигласа или создайте занавески из пузырьковой изоляции, чтобы разделить теплицу так, чтобы вам нужно было нагреть только ту часть, где находятся ваши нежные растения.
Используйте флис для садоводства
В очень холодные ночи положите один или два слоя садовой флисовой ткани поверх ваших растений, чтобы дать им на несколько градусов больше защиты, не прибегая к нагреву. Не забывайте снимать флис в течение дня, чтобы растениям было достаточно света и вентиляции. В качестве альтернативы используйте раздвижную крышку теплицы, чтобы защитить бордюрные растения.
Не забудьте проветрить
Хорошая вентиляция необходима для остановки распространения грибковых заболеваний и поддержания здоровой среды выращивания.
Предотвратите накопление влаги, поливая растения экономно и в начале дня. Удалите конденсат, открыв вентиляционные отверстия теплицы в теплые солнечные дни и не забывая закрывать их снова до наступления сумерек, чтобы сохранить дневное тепло в теплице.
Распространение с подогревом
| Электрический размножитель на подоконнике — это экономичный способ проращивания семян Изображение: Thompson & Morgan |
Купите подогретый размножитель, чтобы помочь семенам прорасти.Если вы делаете всего несколько посевов, то подоконник должен помочь вам, в противном случае превратите теплицу в удобную скамейку с подогревом, используя подогреваемые маты. Они отлично подходят для укоренения черенков и согрева рассады после прорастания.
Сохранение тепла и вентиляции в теплице — ключ к тому, чтобы ваши нежные растения пережили зиму. Теперь вы точно знаете, как сохранить ваши растения в безопасности и в тепле, когда температура резко упадет, не заплатив при этом огромную цену, когда ваш счет за электроэнергию окажется на коврике.
Автор: Сью Сандерсон
Растения и сады всегда были большой частью моей жизни. Я помню, как помогал папе выкорчевывать саженцы еще до того, как смог заглянуть поверх горшечной скамейки. Став взрослым, я учился в Writtle College, где получил степень бакалавра наук. (С отличием) Садоводство. После работы в питомнике специалиста по выращиванию растений, а затем в качестве консультанта по садоводству я присоединился к Thompson & Morgan в 2008 году. Сначала я ухаживал за землей и координировал испытания растений, а теперь поддерживаю веб-команду, предлагая советы по садоводству онлайн.
.Отопление теплицы дровами: виды печек, характеристика, правила, эффективность, фото, видео
Материалы для изготовления печки длительного горения
Печи длительного горения могут быть выполнены своими руками из листового металла или различных металлических конструкций. Примеры и чертежи таких печек приведены ниже.
Печка из бочки
Отопительный прибор, выполненный своими руками, предназначенный для отопления подсобных помещений, выполнен из двухсотлитровой металлической бочки.
Печка работает на опилках, стружке и других отходах деревообработки. Внутри большой бочки на подставке установлена малая бочка для загрузки топлива. Под ней зольник — выдвижной ящик из листового металла.
Сама печка поставлена на подставку, роль которой играет автомобильный диск. Из обрезков трубы диаметром 100-150 мм выполнен дымовой патрубок. Бочка оснащена крышкой из листового металла с ручкой и отверстием для подачи воздуха.
Внутрь малой бочки устанавливают заточенное на конус полено, оно обозначено на чертеже. Вокруг него насыпают опилки. После утрамбовки полено вынимают и поджигают опилки. В процессе тления в пространство большой бочки выделяется газ, где и происходит его дожигание.
Печь с водяным контуром из металлической трубы
Самодельная печка длительного горения из металлической трубы, которая может работать на дровах или опилках, оснащена водяным контуром. Загрузка производится снизу, для интенсификации горения внутри печи установлен распределитель воздуха, прижимающий тлеющие дрова.
В центре диска установлена телескопическая полая труба, через которую поступает воздух прямо в камеру сгорания, где благодаря наваренным на диск ребрам равномерно распределяет его по всей поверхности дров. Он опускается самостоятельно, по мере прогорания топлива. Поднять его перед загрузкой можно с помощью троса.
Загрузочная дверца расположена в центре печи. Снизу находится прочистная дверца и зольник. В верхней части — дымовая труба. Печка оснащена водяным контуром с патрубками для входа и выхода воды. Такой печью с водяным контуром можно достаточно эффективно отапливать небольшие дома и другие помещения, и сделать ее можно из подручных материалов своими руками.
Печь из отработанного газового баллона
Печка из газового баллона можно сделать без лишних затрат и поиска подходящего материала. Размеры баллона на 50 литров отлично подходят для выполнения такой печки, а толщина стенок и герметичность позволяют сделать ее безопасной в использовании.
Конструкция печи в целом не отличается от предыдущей модели, это видно на чертеже.
В качестве корпуса используется баллон от пропана со срезанным верхом. Из листового металла своими руками выполняют подходящую по размеру крышку с отверстием для трубы распределителя воздуха. Загрузку топлива производят через верх, заполняя объем баллона почти до дымохода. Работает такая печь на опилках и других отходах, а также на мелких дровах. Топливо тщательно трамбуют, разжигают с помощью щепы или средства для розжига и устанавливают распределитель воздуха, после чего накрывают крышкой.
Эффективность такой печи довольно высока, а благодаря герметичному корпусу ее можно использовать для обогрева помещений, где длительно находятся люди. При желании ее можно оснастить водяным контуром, пропустив дымовую трубу через котел.
Бубафоня
Печи буржуйки обладают небольшим КПД и необходимостью частой догрузки топлива. Умелец Бубафоня придумал самодельную конструкцию, которая отличается принципом сгорания топлива.
Особенности и устройство
Основное отличие в печи Бубафони – верхний забор воздушной массы, что привело к таким положительным свойствам, как:
- более длительное горение топлива;
- нет необходимости в частой загрузке топки;
- лучшее сохранение тепла;
- экономичность, потому что такую печь можно сделать из подручных материалов: бочки из железа или металла; в качестве топлива можно использовать не только дрова, но и доски, щепки, картон или стружки. А также печь Бубафоня работает автономно, то есть без использования электрической энергии.
Есть и минусы такой конструкции:
- внешне выглядит непрезентабельно;
- средняя теплоотдача;
- нагарообразование на стенках печи;
- образуется конденсат, который в зимнее время замерзает и перекрывает основную трубу;
- во время забора воздуха иногда появляется огонь из воздуховода;
- с установкой такой печки необходимо позаботиться о вентиляции в теплице.
Чтобы самостоятельно сделать Бубафоню, необходимо знать устройство и принцип работы печи. Воздух заходит через верхнюю трубу, а топливо начинает гореть. Сгорая, зола будет накапливаться на поверхности топлива и мешать ему гореть. Из-за этого нужно позаботиться об установке пресса в виде металлического блина, диаметр которого немного меньше бочки. Посередине блина просверливается отверстие для трубы с кислородом.
Топливо сгорает, и пресс опускается, вымещая золу между блином и стенкой. Такая зола остывает и уходит через дымоход с остальными продуктами горения.
Изготовление
Изучив чертежи и схемы печи, поняв принцип работы, можно своими руками сделать Бубафоню. Немаловажным моментом является выбор емкости. В качестве нее может использоваться труба большого диаметра, бочка, пустой газовый баллон.
Что бы то ни было, придется доделать конструкцию:
- избавиться от крышки;
- для получения емкости с открытым верхом необходимо заварить дно;
- приготовление пресса: для этого подойдет металлический листовой круг;
- по центру просверлить отверстие для трубы и присоединить трубу с помощью сварки;
- на крышку тоже приваривается труба с большим диаметром для того, чтобы первая труба могла скользить свободно;
- для создания зазора, чтобы воздух проходил между поверхностью и топливом, на трубу закрепить профиль из металла;
- для топки изготовить дверцу из железного листа и прикрепить;
- сверху емкости проделать отверстие для дымохода и присоединить трубу;
- сделать ножки для печки, если днище не «стоит».
При изготовлении дымохода необходимо учитывать необходимость создания сопротивления, что позволит более длительной задержке тепла.
До установки печи необходимо под нее сделать фундамент из кирпичей и подложку из оцинкованного листа. Это поможет избежать нагрев нижней части печки, что приводит к гибели близко растущих культур. Фундамент также сохраняет и распространяет теплоту.
После установки печи необходимо обложить кирпичами для улучшения теплоотдачи.
Делаем буржуйку
Печи длительного горения буржуйки хороши тем, что они делаются из любых доступных материалов – это различные бочки, старые вместительные бидоны, куски труб большого диаметра или просто листовой металл. В качестве исходного материала мы выбрали листовую сталь – это более удобный в обработке материал. Вы можете приспособить для этого бочку, но выполнять работы в ее внутреннем объеме не очень удобно.
Все размеры представлены скорее как ориентиры, некий усредненный наилучший вариант. Вы же, в свою очередь, можете отклоняться от размеров деталей для создания печки, удовлетворяющей Ваши конкретные пожелания.
Конструкция печи длительного горения вполне понятна из представленного выше чертежа. Вот ее основные узлы:
- Камера сгорания – в ней горят дрова с образованием пиролизного газа;
- Камера дожига – в ней происходит сгорание продуктов пиролиза;
- Дверки камеры сгорания и зольника – они приобретаются в магазине, но их можно изготовить и своими руками;
- Дымоход – в большинстве случаев это труба диаметром 100-150 мм.
Вы можете отклониться от чертежа в ту или иную сторону. Но помните, что с уменьшением размеров уменьшается время горения и уменьшается мощность печи длительного горения.
Для изготовления печи длительного горения типа буржуйка нам понадобится листовая сталь толщиной не менее 3 мм – это обеспечит продолжительный срок службы отопительного оборудования. Если сталь будет тонкой, она начнет прогорать – через пару сезонов в ней образуются дыры
Поэтому толщине стали уделяется особое внимание. Оптимальное значение толщины составляет 3-5 мм
Для нашего примера мы возьмем классическую схему буржуйки, доработаем и получим в свое распоряжение эффективную печь для дома на дровах. На начальном этапе готовим боковые листы – на нашем чертеже они имеют размеры 450х450 мм. Далее изготавливаем нижние стенки, переднюю и задние стенки – их размеры составляют 200х450 мм. В итоге у нас должен получиться прямоугольный короб. Но не спешите сваривать его воедино – впереди полно работы.
Для начала нужно изготовить основу – это нижняя стенка и две боковые. Свариваем их воедино, на высоте 80 мм от дна привариваем колосниковую решетку. Теперь нужно подготовить переднюю стенку печи длительного нагрева – ввариваем в нее обе дверцы, после чего привариваем ее к нашей конструкции.
Готовим два металлических листа размером 200х370 мм. Первый из них привариваем к передней и боковым стенкам на высоте 160 мм от верха. Далее готовим заднюю стенку – ввариваем в нее небольшие металлические трубки, которые должны входить в пространство между двумя внутренними листами, образующих камеру дожигания – через них будет подаваться вторичный воздух. Потом привариваем заднюю стенку и второй металлический лист на высоте 80 от верха (приваривается к боковым и задней стенкам).
Шибер используется для регулировки воздушных потоков. Именно он повышает эффективность и качество тяги.
Наша печь длительного горения своими руками почти готова – осталось разобраться с верхней крышкой. В ней мы делаем отверстие диаметром 100 мм и ввариваем кусок трубы для будущего дымохода. Теперь остается выяснить, нужна вам варочная поверхность или нет – она тоже вваривается в верхнюю крышку. На последнем этапе устанавливаем крышку на место и привариваем ее – печка готова, теперь ее можно установить на негорючее основание, приделать дымоход и запустить.
Еще одна интересная пиролизная печь длительного горения представлена на следующем рисунке. Она изготавливается из бочки или отрезка трубы большого диаметра и снабжается подходящей крышкой. В нижней части, на расстоянии 80-100 мм от дна, вваривается металлический диск с отверстием посередине. Между диском и дном, на боковой стенке, вваривается дверца. Полученное пространство образует у нас топку. В верхней части ввариваем дымоход диаметром 70-100 мм.
В плане дешевизны использования такая печь сущий подарок, так как недостатка в опилках в частном доме не бывает.
Полученная печь длительного горения получает тепло за счет сжигания пиролизных газов, образующихся при нагреве опилок. Сами опилки засыпаются в основной объем, а для того чтобы они не просыпались в топку, производится их трамбовка с помощью деревянного конуса. При запуске печи в топке разводится огонь, конус извлекается – через некоторое время агрегат начнет давать тепло.
Плюсы и минусы самодельных буржуек длительного горения
Теперь, когда известны основные конструкции печей с увеличенным периодом горения топлива необходимо проанализировать положительные качества и недостатки этих устройств.
К положительным сторонам необходимо отнести:
- Существенную экономию топлива;
- Высокую теплоотдачу;
- Возможность длительное время работать в «автономном» режиме;
- Возможность использования для большинства видов разного топлива.
Увы, у этих конструкций имеются и недостатки, которые никак нельзя назвать несущественными:
- Необходимость герметичного соединения всех частей корпуса при сборке;
- Высокие требования по содержанию в чистоте дымоходов;
- Несмотря на то, что печи рассчитаны на длительный период эксплуатации за ними необходимо периодически присматривать;
- Для пользования такими устройствами необходимы определенные навыки и умения;
- Чтобы самостоятельно собрать такую печь нужно владеть довольно высокими навыками в металлообработке;
- Для использования нужны хорошо высушенные дрова.
Применение пиролизных печей
Печи длительного горения на дровах, пеллетах или опилках часто используют для обогрева подсобных помещений и мастерских, гаражей, теплиц. Их можно использовать и для отопления дома, но при этом необходимо обеспечить герметичность печи, так как возможно выделение угарного газа.
В случае использования пиролизной печки для обогрева садового или жилого дома лучше оснастить ее водяным контуром, подключенным к радиаторам отопления, а сам отопительный агрегат установить в котельной.
В данной статье рассказывается о том, как просто сделать коптильню для холодного копчения, которая в домашних условиях поможет приготовить настоящие деликатесы из самых обычных продуктов. Узнать том, как изготовить генератор дыма для холодного копчения, можно заглянув сюда . Здесь вы найдёте самые понятные чертежи для создания эффективной буржуйки своими руками: https://gidpopechkam.ru/pechki/burzhujki-chertezhi.html
«Бубафоня»
«Бубафоня» – это один из лучших вариантов печей для небольших размеров теплиц. Её конструкция проста и незамысловата, но при этом она позволяет весьма эффективно отапливать теплицу, тратя по минимуму ресурсов и сил. Сделать её самостоятельно не составит никакого труда. В качестве материалов можно использовать старую бочку и кое-какой металл, который, скорее всего, найдётся во дворе у каждого заядлого огородника, а различные её чертежи можно легко найти в интернете. Стоит разобраться, как строится самодельная «Бубафоня».
Особенности и устройство
Как уже говорилось ранее, главной особенностью печки-буржуйки является увеличенный КПД и редкая загрузка топлива. Этого эффекта удалось добиться благодаря вертикальной подаче кислорода и прессу, помогающему эффективно распределить кислород и убрать остатки перегоревшего топлива.
Изготовление
Хотя устройство «Бубафони» и кажется довольно сложным, сделать её своими руками довольно просто, особенно если раннее уже было дело с заготовками из металла. Для её создания понадобится железная бочка, труба размерами чуть больше, чем высота бочки, труба для дымохода и лист металла, из которого будут изготавливать пресс, дверцы и различные мелкие составляющие.
Следует придерживаться следующей инструкции по изготовлению:
- первым делом нужно взять бочку и срезать её верх, для экономии материалов из него также можно сделать будущую крышку;
- в нижней части бочки зазоров быть не должно, если же они имеются, пусть и маленькие, то лучше их заварить;
- из прочного куска металла нужно вырезать блин диаметром на 4 см меньше, чем диаметр бочки, а затем в его центре проделать дыру, подходящую по размеру для имеющейся трубы;
- снизу на круг следует прикрепить уголки или металлический профиль для создания зазора между ним и топливом для свободного прохождения воздуха;
- нужно приварить трубу и блин друг к другу;
- в крышке для бочки проделать дыру чуть больше, чем диаметр трубы, зазор между ними должен быть минимален, но при этом труба должна свободно скользить;
- в нижней части бочки вырезается отверстие для дверки зольника;
- следует изготовить дверцу зольника, приварить навесы и закрепить её;
- сбоку на верхней трети бочки проделать дыру для дымохода и приварить его к ней;
- печь должна надёжно стоять на земле, если она не хочет делать этого самостоятельно, то можно приварить к ней ножки или подпорки.
Вот и всё, «Бубафоня» готова. Как видно, изготовить её своими силами совсем несложно, а весь затраченный труд многократно окупится в будущем.
Оценка возможности самостоятельного изготовления разных моделей
Пиролизный процесс реализуется в разных конструкциях, и выбор варианта изготовления печи для теплицы – решающий момент, влияющий на ее рентабельность. Так, несмотря на всю привлекательность обогревательных устройств из кирпича (они действуют как энергоаккумуляторы, отдавая накопленное за день тепло ночью), сложить их своими руками весьма непросто – недаром в деревнях всегда ценились хорошие печники.
Печки с металлическими корпусами гораздо проще в монтаже. Для пиролизной версии «буржуйки» обычно используется любая емкость круглого сечения из металла толщиной 4–6 мм – в ней легко обеспечить плавный ход газораспределителя. Впрочем, мастера-самоделкины приспосабливают в своих целях и подручный материал – старые бочки, газовые баллоны, прямоугольные металлические коробы и т. д.
Помимо материала оболочки, котлы длительного горения классифицируются по виду используемого топлива – жидкого или твердого.
Действительно, существуют устройства, способные работать даже на отработанном масле, и монтаж их достаточно прост. Но есть нюанс, существенно ограничивающий их применение, а именно, взрывоопасность такой печи – малейшее попадание влаги в топку с разгоряченным маслом приведет к моментальному воспламенению.
Это на самом деле высокоэффективный и простой в эксплуатации агрегат, но с точки зрения изготовления «на коленке» его конструкция сложна и требует точного соблюдения размеров и пропорций, а также большого количества сварных швов и качества их соединения.
И наконец, последняя из подходящих для теплиц печей длительного горения своими руками выполняется достаточно быстро, ее можно приспособить под любое топливо, и горит она очень долго. Кроме этого, нет каких-либо строгих привязок к размерам – для сборки допускается использовать то, что есть под рукой.
Это печь «Бубафоня», и именно ее стоит рассмотреть более подробно.
Видео: Работа печи длительного горения, изготовленной из бочки
Рассмотренная конструкция обладает всеми достоинствами печей длительного горения, однако, специфика использования этого отопительного агрегата может превратить преимущества в недостатки. Например, если в отапливаемом помещении необходимо поработать час или два, то лучше использовать обычную буржуйку — она и тепло даст сразу же после возгорания дров, и прогорит топливо как раз к моменту вашего ухода. Если же потребуется обогревать помещение целый день, то более подходящей конструкции просто не найти. В отдельных случаях можно установить и два отопительных агрегата, подключив их к одному дымоходу. Благо, места при этом потребуется совсем немного.
Схема и принцип работы.
Конструкция печи состоит из нижней основной камеры первичного горения, в которой горит, точнее, тлеет древесина и верхней вторичной камеры, где догорают пиролизные газы, выделяемые при тлении древесины.
Камеры разделяются подвижным поршнем который упирается в древесину и по сути создаёт две камеры нижнюю для горения древесины и верхнюю для догорания пиролизных газов. За счёт такой конструкции топливо сгорает полностью и отдаёт тепло по максимуму.
Подача кислорода в нижнюю камеру идёт через трубу поршня, по мере сгорания древесины, поршень проседает под своим весом и тем самым не даёт древесине получить много кислорода и быстро сгореть.
Интенсивность горения в печи регулируется заслонкой на вентиляционной трубе поршня, чем больше отверстие, тем больше поступает кислорода и тем интенсивней греет печь и наоборот, если прикрыть заслонку интенсивность горения будет меньше, и топливо будет гореть дольше.
Конструктивные особенности
Закладывая этот принцип горения в систему нагрева печей, инженеры учитывали, что конструкция агрегата сильно изменится. Во-первых, горение должно происходить с минимальным количеством поступающего в топку кислорода.
Во-вторых, для сгорания пиролизных газов необходима отдельная топочная камера, куда будет подаваться кислород в необходимом (большем) объеме.
Поэтому данный тип отопительных агрегатов в своей конструкции имеет две топки: в первой горят дрова, во второй пиролизный газ. В первую добавляется минимум кислорода, во вторую больше. Разделены топки перегородкой или каналами, по которым газы двигаются, при этом нагреваясь до определенного уровня (300 — 400 °C).
Отопительные печи длительного горения работают на твердом топливе, чаще всего на дровах. Для отопления небольших загородных домов (дачи, коттеджа) – это на сегодняшний день оптимальный вариант.
С его помощью достигается увеличение времени между закладками дров, в некоторых моделях дрова одной закладки горят до двух суток. Плюс получение необходимого количества тепла, которое можно регулировать с помощью увеличения и снижения подачи кислорода в камеру сгорания топлива.
Есть, правда, у этих печей один нюанс. Начинать растопку надо как обычную дровяную печь. Для этого в первую камеру сгорания подается в большом объеме кислород, заслонка на дымоходе открывается полностью.
Для растопки необходима хорошая тяга. После того как печь разогреется, подачу свежего воздуха снижают, заслонку на дымоходе прикрывают.
Самодельная “бубафоня” длительного горения
Срежьте болгаркой сварочный шов с верхнего торца бочки, выравняйте острые кромки. В результате получается цилиндр и крышка с готовой отбортовкой. С помощью молотка или кувалды подогните внутрь края цилиндра. А буртик крышки загните наружу. Переворачивая крышку, наденьте ее на цилиндр. Крышка будет, не сползая, надежно сидеть на месте.
Вырежьте зубилом отверстие для поддувной трубы в центре крышки (чтобы она проходила свободно в отверстие, достаточно использовать диаметр 102 мм).
Схема сборки “бубафони”.
Отверстие для пробки на крышке можно наглухо заварить, но лучше оставить: заглядывая внутрь можно регулировать процесс горения.
Затем в верхней части бочки размечается место для присоединения куска дымоходной трубы.
Намеченное отверстие вырезается, и приваривается кусок дымоходной трубы длиной 20-25 см и диаметром 150 мм. Можно установить сразу внутри трубы перекрывающую заслонку. Корпус печки готов.
Следующее на очереди – воздухоподающее устройство. Для большей жесткости края блина отгибаются (чтобы не скручивало блин от жары). В центре блина вырезается отверстие для поддувной трубы, и она приваривается. Если для блина используется крышка от еще одной бочки, то наглухо заваривают отверстие для пробки: при горении газы будут проходить лишь по окружности блина. К блину с нижней стороны приваривают швеллеры или уголки. Воздухоподающее устройство также готово.
Оно вставится внутрь цилиндра. Вверху поддувной трубы ставится регулировочная заслонка такого же диаметра, как у трубы. Вертикально к внутренней стенке трубы приваривается шпилька с резьбой, на краю заслонки под эту шпильку просверливается отверстие, учитывая, чтобы заслонка, насаженная на шпильку, закрыла в точности трубу.
После насаживания заслонки, затягивайте ее гайкой-барашком. Ослабив гайку, сдвинув заслонку в отношении края трубы и затяув гайку обратно, возможно будет регулировать поступление в топку воздуха.
Установите сверху крышку – и готова вся печка.
Остается установить трубу для дымохода. Ее диаметр обязан быть менее 150 мм, в противном случае продукты горения удалятся не полностью. Для хорошей тяги лучше иметь трубу длиной 5 м. Установите ее возле печи, желательно на ножках. Герметично заварите нижнюю часть трубы.
Подсоедините печку встык к колену, которое приварено к дымоходной трубе, затяните хомутом, под него подложив стеклоткань для герметичности. Для слива конденсата, собирающегося в трубе, вваривают под коленом трубы шаровой кран (прутком можно будет прочищать засор).
Этот кран необходим обязательно, так как при замерзании конденсата возможен разрыв сварного шва. Конденсат, кроме того, может потечь в печку, а сквозь неплотности соединительного хомута – наружу.
Теперь уже можно теперь топить печь “бубафоню”. Сняв крышку, вытащите воздухоподающее устройство. Уложите дрова – при этом высота не должна превышать высоту нижней кромки дымоотводного колена. Если класть дрова вертикально, то войдет больше. Поленья можно выбирать и крупные, до 20 см в диаметре – без проблем сгорят.
Формируется верхний слой из нарубленных мелко щепок. Кладется сверху тряпка или бумага, поливается чуть-чуть керосином. Теперь дрова покрываются блином воздухоподающего устройства, нанизывается сверху крышка печки. Открывая поддувную заслонку, внутрь воздухоподающей трубы бросают кусок зажженной бумаги или тряпки (от сильной тяги спички быстро гаснут).
Когда разгорятся дрова с характерным треском, полностью перекрывается поддувная заслонка. Бубафоня в таком режиме может работать без всякого присмотра сутками.
Эта дровяная печь длительного горения дает немного пепла ввиду того, что дрова сгорают почти полностью. Пепел можно долгое время не убирать.
Как видно, конструировать печи “Бубафоня” своими руками вполне возможно. Многие народные умельцы делают их не только из бочек, но и из газовых старых баллонов, больших огнетушителей. Основное требование, предъявляемое к будущей печи – прочные стальные стенки.
Вот таким образом можно сделать печь длительного горения.
Самодельные дровяные печи длительного горения: схема и принцип работы
Если подача воздуха свободна, а тяга сильная, сухие дрова очень быстро сгорают.
Если при полной загрузке дров с помощью контроля подачи воздуха трансформировать горение в тление, то тепловыделение затянется на часы или даже сутки.
Вот устройство простой, но довольно эффективной дровяной печи, ориентированной на длительное горение, которое повторяет схему котла Стропува. В народе эта печь называется «бубафоня» ( по фамилии человека, выложившего впервые в Интернет схему печи).
Схема самодельной печи длительного горения.
Такую печь изготовить не сложнее, чем более привычную широкой общественности буржуйку.
Однако совершенно не стандартны принцип горения и конструкция такой печи. Горение проходит не снизу вверх, как в обыкновенных печах, а, начинаясь с верхних слоев, опускается вниз, пока дрова прогорают.
Дрова под блином в топке зажигаются сверху, благодаря воздухоподводящей трубе. При горении газы просачиваются через края блина и выходят в дымоход. Блин по мере сгорания дров опускается вниз. Контролировать подачу воздуха возможно заслонкой на концах воздухоподводящей трубы.
Разновидности печей длительного горения
Если вы запланировали соорудить печь долгого горения своими руками, у вас есть все инструменты и вы не боитесь сложностей, тогда вам непременно пригодится информация из следующего раздела нашего обзора – в нем мы будем рассказывать о разновидностях данных печей.
Печка-буржуйка
Самая простая из всех печей – это буржуйка. Она представляет собой железную печь, собранную на основе старого газового баллона или из листового металла. Для того чтобы обеспечить длительное горение, ее внутренний объем делается очень большим – проще всего это реализуется в моделях из листовой стали, достаточно лишь выбрать подходящий по размерам чертеж.
Такая печь может работать на дровах, на угле, а также на прессованном твердом топливе. Она проста в эксплуатации, легко растапливается и дает большое количество тепла. Также она характеризуется неприхотливостью. Если вам нужна простая печка для дачи, смело выбирайте буржуйку – она станет самым простым и доступным вариантом.
Дровяная печь камин из кирпича или камня
Этот вариант хорош тем, что мы можем реализовать в нем длительное горение и поработать над дизайном. В сети присутствуют чертежи подобных печек с большими камерами сгорания и с камерами дожигания – это так называемые пиролизные агрегаты. Они сжигают не только топливо, но и образующиеся в процессе пиролиза газы. Агрегат из кирпича получится громоздким, но весьма эффективным. Вот его плюсы:
- Длительное сохранение тепла за счет применения кирпича или камня;
- Отличный внешний вид – достаточно найти подходящий проект и сделать аккуратную кладку;
- Возможность работы в жилых помещениях, в отличие от все той же «бубафони».
Недостатком является то, что для сборки такой печи длительного горения потребуется опыт в кладке кирпича.
Печь «бубафоня»
Представленная печь длительного горения обладает внушительными размерами, работает на дровах и отличается на редкость простой конструкцией – в зависимости от объема, она сможет гореть до 20-24 часов, не требуя частых подходов для закладки дров. Для ее изготовления потребуются пара металлических емкостей с крышками (подойдут бочки на 100-200 литров), трубы для дымохода и подачи воздуха, а также швеллер для создания утяжеленного поршня.
Печь длительного горения «бубафоня» чаще всего применяется для обогрева нежилых построек – это гаражи, теплицы с растущими в них огородными культурами, помещения технического назначения и подсобные помещения. Некоторые умельцы оснащают ее отопительными контурами, что позволяет отапливать жилые комнаты, не рискуя заполнить их едким дымом.
Центральная дровяная конструкция: плюсы и минусы
Центральная дровяная конструкция изготовляется из металлических или кирпичных материалов. При этом чем больше теплица, тем больше печная конструкция. Ее назвали центральной из-за надобности установки посередине теплицы, что позволяет оптимально распределить тепло по всей площади тепличного помещения.
Такая конструкция работает на дровах, поэтому особенных приспособлений не требуется для эксплуатации.
Центральная дровяная печь обладает немалым количеством недостатков.
- Частые поливы растений и постоянное увлажнение воздуха в теплице. Из-за быстрого нагрева воздух быстро сушится, а значит и почва. Некоторые сельскохозяйственные культуры не переносят такой климат в теплице. Установка бочек с водой рядом с печью позволить немного компенсировать этот минус.
- Другим немаловажным моментом является неравномерное распределение горячего воздуха по всей площади тепличного помещения. Самая высокая температура будет поддерживаться рядом с печью, а чем дальше растения, тем воздух будет холоднее. В результате замерзнет некоторая часть растений по периметру. Это необходимо учитывать, если теплица большого размера и с высоким потолком.
Выровнять температуру можно с помощью индукционных ламп длительного горения. Их располагают в самых отдаленных частях теплицы. И также обогрев инфракрасным обогревателем позволит сохранить культуры. Такой вариант для теплиц с низкими потолками не подходит: необходимо сделать выбор в пользу дровяной печи или индукционной лампы. Если выбрана печь, то вблизи необходимо установить небольшие вентиляторы для разгона теплоты.
Булерьян: отличительные черты
Булерьян – печка длительного горения, очень похожа на буржуйку. Здесь также воздух обогревается горячим дымом от труб по периметру теплицы, становясь также горячим. В отличие от буржуйки, в Булерьяне воздух нагревается иначе: прохладный воздух входит в нижнее отверстие трубы и начинает нагреваться корпусом топочного пространства, куда прилегают трубы. В результате прохладный воздух нагревается до 60 градусов и уходит через верхнее отверстие. Топливо для печи: дрова, угли, пеллеты, отходы пиломатериалов.
Булерьян, в отличие от буржуйки, обладает некоторыми преимуществами.
- Больший КПД в результате дожигания дымовых газов. В итоге топлива расходуется меньше, а теплота получается больше.
- Полное сгорание топлива.
- Один раз затопив Булерьян, она может работать трое суток, что намного облегчает труд садоводу. Для людей, которые не могут каждые сутки закладывать топливо, это отличный вариант.
Часто Булерьян называют конструкцией без недостатков, однако все же есть один минус, который не связан с конструкцией печи, производительностью и экономичностью: выделение едких компонентов, которые не подвергаются утилизации.
Изначально Булерьян применяли лесорубы Канады, которым часто приходилось вести кочевой образ жизни. Поэтому печь должна была обеспечить безопасность и максимально быстро нагревать помещение.
Для быстрого нагрева теплицы нужно поддерживать постоянный процесс горения, однако Булерьян работает в основном в режиме тления. При постоянном интенсивном горении металлическая поверхность печи очень скоро прогорит.
Для розжига печи применяются сухие щепки, картон, бумага. Главное – чтобы они были сухими и быстро сгорали. За процессом горения следят через стеклянную дверь или дроссель. Когда топливо превращается в угли, снова подкидывают топливо. Нельзя использовать в качестве топлива угли, так как Булерьян – дровяная печка. Для нагрева даже большой теплицы много времени не потребуется.
Категорически запрещается повышать температуру в печи до сверхвысоких температур. Во-первых, прогорит металлическая поверхность, во-вторых, излишнее тепло выйдет на улицу, так как теплопроводность труб ограничена, в результате чего избыток тепла не передается воздуху. А также в качестве топлива не рекомендуется применять кокс – это приведет к поломке устройства.
При установке Булерьяна необходимо придерживаться правил пожарной охраны. Устанавливается печь на негорючей поверхности, например, на кирпичах, уложенных плашмя, или металлической подставке.
При изготовлении своими руками печи немаловажным элементом является дымоход, к которому предъявляются требования:
- материал дымохода: кирпич, бетон, металл;
- параметры дымохода.
В установке печки Бурельян нет никакой сложности, достаточно подготовить место, грамотно сделать дымоход и можно начинать нагрев.
О видах и особенностях печей для теплиц смотрите в следующем видео.
Оптимальный выбор
Оптимальным вариантом отопления теплиц является установка печи буржуйки, которая считается наиболее экономичной и простой в эксплуатации. Обогреватель состоит из бочки с дверцей для топки, дымоотвода, трубы для выхода тепла наружу, перемычки в верхней части.
Происходит обогрев благодаря перемещению дыма:
- По трубе перемещается горячий дым, труба устанавливается либо по бокам теплицы, либо по центру.
- Поверхность печи излучает теплоту.
- Над перемычкой образуется теплый воздух и выходит наружу по трубе.
В качестве топлива могут использоваться отходы пиломатериалов, угли или дрова. От вида топлива и проникания воздуха в топочное пространство печи зависит качество горения. Такой способ отопления подходит для тех, кто часто может контролировать процесс горения. Это является единственным недостатком буржуйки.
У печей длительного горения этот минус является преимуществом: в них топливо можно подкладывать гораздо реже. Они также расходуют меньше топлива и уменьшают нагревание стенок печи без уменьшения теплоотдачи. Они очень схожи по характеристикам с инфракрасными обогревателями.
Печь длительного горения имеет две камеры, одна из которых полностью сжигает остаточное топливо, а другая сжигает только основную часть. Доступ кислорода в камеру ограничен, в результате чего топливо не сгорает сразу, а долго тлеет с выделением большого количества тепла.
В качестве топлива для печей длительного горения могут использоваться различные бытовые отходы, но без вреда для растений. Постоянство температуры в тепличном помещении обеспечивает необходимые условия для роста культур.
длительного горения своими руками, на дровах для обогрева, из поликарбоната и кирпича, обеспечить полив
Печь для теплицы можно изготовить как самостоятельно, так и купить уже готовуюМногие дачники хотят выращивать свои плоды не только летом, но и во время зимней погоды. Поэтому они покупают печь для обогрева теплицы. Дачники советуют их своим соседям по участку и знакомым. Тем, кто хочет наслаждаться овощами из своей грядки в любое время года. Для отопления парника или теплицы в холодное время года, необходимо использовать печь для теплицы. В противном случае, ваши овощи, которые вы выращивали с такой заботой, просто погибнут. Цель печки для теплицы – это обогрев внутреннего пространства теплицы или парника во время холодной погоды. Печное отопление сегодня используют многие дачники в своих теплицах. Наличие печи с теплообменником особенно важно для теплого полива и эффективного выращивания в теплицах.
Какая есть печка для теплицы на рынкеСегодня на рынке есть разные модели печей для обогрева. Они отличаются как по конструкции, так и по топливу, которое используется в печи. Одни работают с помощью электричества, другие – на газу или твёрдом топливе.
Вы можете приобрести как готовую печь, так и сделать печь своими руками. Конечно, сделать печь для обогрева самим будет гораздо дешевле. Но не забывайте, что теплица из поликарбоната – не ваш дом, не стоит тратить огромные деньги на приобретение печи. Печка для теплицы должна быть Компактной, эффективной и бюджетной.
Так же можно смастерить печь бубафоня – это эконом печь. В отличие от других, такая печь отличается забором воздуха, который идёт сверху.
Это имеет свои достоинства:
- Более длительное горение топлива;
- Способна обогреть весь объём теплицы;
- Улучшенное сохранение тепла для обогрева;
- Хорошо греется от стружки и щепок.
Чтобы сделать такую печь, вам достаточно будет взять железную бочку или другой металл.
Ракетная печь имеет с печами длительного горения одно сходство – их необходимо запускать только на тёплую трубу.
Во время топки такой печи дверь поддувала следует открыть полностью. Когда печь полностью «разогналась» для работы, то из неё издаётся лёгкий гул. Именно тогда ракету следует загружать топливом. Постепенно следует прикрывать доступ воздуха. Чтобы сделать печь ракету самостоятельно, вам понадобится бочка диаметром 24 дюйма или 200-литровка. Для поддувала, бункер и топку вполне подойдут трубы разного размера, как круглые, так и профильные. Внешне печь лучше обмазать специальным теплоаккумулятором – саманом. Это надо для того, чтобы топить вегетарий твёрдым топливом. Котел может быть изготовлен из газового баллона. Отопительные характеристики при этом не пострадают.
Чтобы узнать конструкции печей на отработанном масле посетите эту страницу: https://homeli.ru/stroitelstvo-doma/inzhenernye-sistemy/otoplenie/pech-na-otrabotannom-masle
Печь из кирпича – это достаточно массивная печь для теплицы. Однако, если ваша теплица очень большая, то можно использовать и её. Кирпичную печь сложно построить. Но ракетную печь из кирпича можно сделать и за 5-20 минут.
Хорошим решением будет использовать автономную печь на солярке. Такая печь имеет маленькие размера, а вес будет меньше 10 килограмм. Чтобы сделать печь на солярке своими руками, надо взять металлический корпус, топливный бак и соединить их по принципу сообщающихся сосудов. Патрубок следует снабдить клапаном. Горелка для печи, которая будет работать на солярном топливе, выглядит как фитиль. Нижняя часть фитиля следует погрузить в резервуар с жидким горючим.
Печь Кузнецова – это ещё один вид печей для теплицы, а также больших помещений. Здесь не используются бочки, только кирпичи. Такие печи дают высокий КПД и хорошую температуру. Кузнецовка не требует особого ухода и в некоторых случаях даже не чистят на протяжении нескольких лет. В такую печь легко можно встроить водогрейный контур и не ухудшить состояние печи. Так же можно сделать мини-печь Кузнецова.
Достоинства кузнецовки:
- Отличная тяга;
- Хорошее отопление;
- Приятный внешний вид;
Самодельные печи Кузнецова можно часто встретить у дачников, которые обогревают теплицу зимой.
Популярные печи для теплицы на дровах длительного горенияОдни из самых популярных печей на рынке – это булерьян и буржуйка. Рассмотрим самые популярные печи для теплицы на дровах длительного горения, которые можно купить на рынке или сделать самому.
Булерьян – это чудо-печь, работающая на обычных дровах. Дровяная подтопка позволит хорошо согревать теплицу. Печка достаточно экономная, это достигается за счёт особой конструкции. Печь на отработке держится от 8 до 12 часов, при полной загрузке.
Устанавливать булерьян следует дальше 1 метра от материалов, которые могут самовоспламениться. Печь можно поставить на возвышенную поверхность, чтобы обезопасить пространство вокруг теплицы. Дополнительно можно сделать для печи отдельную нишу, куда вы сможете класть дрова.
Если всё-таки вы решили сделать булерьян самостоятельно, то делайте трубу высотой от 5 метров. Самое лучшее топливо для такой печи – это древесина. Теплоотдача такой печи более экономичная.
Одна из простых и популярных печей для теплиц – это буржуйка. В ней нет сложных конструкций, что позволяет изготовить её из подручных средств. Для изготовления буржуйки своими руками понадобится только сварочный инвертор, зубило, ветошь, молоток, наждачка, корпус, огнеупорный кирпич, стальные трубы, колосник, патрубок, дверные шарниры и стальная проволока.
Также для теплиц подойдет и буржуйка на отработанном масле. Как ее сделать читайте в следующей статье: https://homeli.ru/stroitelstvo-doma/inzhenernye-sistemy/kanalizatsiya/burzhujka-na-otrabotke
Делаем печку для теплицы своими руками: из чего состоит и какое топливо можно использовать
Можно сделать печку для теплицы своими руками, а можно купить её на рынке. На рынке вы можете найти много видов систем, которые обеспечивают, обогрев парника. Всё зависит от вашего времени и бюджета. Но базовая конструкция купленной печи, и печи, которую вы сделаете сами, будет одна и та же.
Печь для обогрева теплицы состоит из топочной камеры, каналов, конвенционной рубашки и дополнительных элементов, которые зависят от вида печи. Топочная камера нужна для сгорания топлива. Каналы нужны для того, чтобы обеспечить движение воздуха в печи.
Для печи в теплице можно использовать разное топливо: уголь, простые опилки, дрова и даже горючее в жидком состоянии. У каждого вида топлива есть свои преимущества и недостатки. Например, если размер вашей теплицы небольшой, то стопка дров сможет продержать теплицу в тепле целые сутки. Главное – нужно знать, сколько вам необходимо времени, чтобы теплица была в тепле.
Как сделать печь для теплицы длительного горения своими рукамиЧтобы сэкономить собственные деньги, дачники рекомендуют сделать печь для отопления теплицы длительного горения своими руками. Встаёт вопрос, какие использовать материалы?
Самый лучший материал, который следует использовать для изготовления печи для теплицы – это металл. Материал позволяет согревать всё помещение, передавая тёплый воздух по воздушному пространству. В данном случае, самым главным элементом печи является корпус из металла.
Чтобы изготовить такой корпус можно взять стальной цилиндр, любой газовый баллон, который можно разрезать пополам, большую трубу, бак из металла или крепкую металлическую бочку. Далее следует найти трубу, через которую будет идти дым.
Печи, которые имеют водяной контур, имеют свои преимущества:
- Высокую производительность
- Возможность использовать разное топливо для обогрева
- Отсутствие необходимости в применении электричестве. Необходимо только твёрдое топливо.
Более подробно про гидролизные печи узнаете в статье: https://homeli.ru/stroitelstvo-doma/inzhenernye-sistemy/kanalizatsiya/piroliznyj-kotel-svoimi-rukami
Но есть и недостатки – это низкий КПД и ручное управление. Такое управление означает, что надо будет постоянно подавать топливо в печь. Кроме этого, надо будет очищать печь от остатков горения.
Печка для теплицы своими руками: этапы созданияПечка для теплицы, сделанная своими руками сэкономит ваши деньги. А по эффективности она будет аналогично купленной.
Рассмотрим создание печи на примере бочки:
- Берём металлическую бочку. Срезаем верхнюю часть крышки.
- Делаем паз в бочке. Привариваем дымоход.
- Режем отдельные дверки в металлической бочке для того, чтобы закладывать горючий материал.
- Создаём поддув. В центре крышки вырезаем отверстие и привариваем ещё одну трубу. Это делается с той целью, что во время работы печи топливо тлеет. В это время крышка уходит вниз из-за своего веса.
Чтобы самодельная печь правильно работала, необходимо вставить во внутрь верхней бочки трубу в форме конуса. Вставить нужно так, чтобы узкая часть вошла на пару сантиметров в отверстие перегородки. Пространство вокруг трубы следует наполнить сухими опилками.
Печи для теплицы своими руками (видео)
Если вы хотите сэкономить деньги, то стоит задуматься над тем, чтобы сделать печь для теплицы самостоятельно. Выше описаны виды печей, которые можно сделать самостоятельно. Какой из них лучше – это выбирать вам. Печь для теплицы – это отличный способ наслаждаться свежими урожаем с вашей земли в любое время года.
Печи длительного горения — выгодный аппарат для ваших теплиц
Прогретая теплица – залог хорошего урожая
Владельцы приусадебных участков стараются высадить растения как можно раньше. Но ранней весной еще достаточно холодно, поэтому необходимо обеспечить саженцам отопление. Лучше всего подойдут печи длительного горения для теплиц. Во-первых, они достаточно экономны, а, во-вторых, качественно обогревают парник и растущие в нем овощи или фрукты.
Принцип работы довольно прост. Из-за того, что кислорода попадает мало, дрова не горят, а тлеют. Поэтому полностью заправив печку для теплицы, вы можете не подходить к ней не только несколько часов, но и несколько дней.
Печей для теплиц длительного горения существует достаточно много. Каждый садовод сам может определить какая из существующих ему подойдет. Более того, большинство конструкций можно соорудить в домашних условиях. Давайте рассмотрим наилучшие варианты.
Печь марки «Вологда»
Печи Вологда – хорошее качество за умеренную цену
Устройство очень выгодное и практичное. В эту печку нужно накладывать дрова 2-3 раза в сутки. Теплоотдача высокая, поэтому отходов практически не будет. КПД около 80%, а за полчаса вода нагревается с нуля до 60 градусов. Это замечательные показатели, поэтому не бойтесь покупать именно этот вариант. Более того, такой печкой можно отапливать и жилой дом, и баню.
Печь марки «Булерьян»
печи для теплиц Булерьян – самый известный бренд на рынке
На вид такая печь для теплицы очень напоминает всем известную «буржуйку». Но огромное отличие состоит в том, что в первом случае горение происходит медленно и соответственно экономно. Работа такого аппарата довольно интересная. Теплообмен происходит тремя способами: тепловое излучение, теплообмен и конвенция. Из этого получается, что «Булерьян» – это печь три в одном (печь, калорифер, газогенератор). Такая печь редко используется и малоизвестная, но очень эффективная.
Печь марки «Печь Бутакова»
печи для теплиц Бутакова – один из лучших вариантов
Это очень популярная печь, которая давно используется среди дачников. Но сегодня на рынке появились новые модели, которые снизили спрос на такие печи для теплиц.
Принцип работы очень схож с «Булерьяном». Конструкция состоит из дымохода, зольника и заслонки. Коэффициент горения достаточно высокий, расход экономный.
Принцип работы практически всех печей приблизительно одинаковый. Главное, подобрать качественный инструмент, который прослужит длительное время.
Видео: Печь Бубафоня для теплицы
печка для обогрева парника, как сделать самому
Содержание:
Качество и урожайность тепличных растений зависит от условий их выращивания, в частности речь идет о температуре в теплице. Чтобы своевременно получить урожай в регионах с холодным климатом, нужно в теплице установить дополнительный обогрев. Количество обогревательных приборов и их вид определяется в зависимости от параметров теплицы и вида выращиваемых растений. Учитывая холодный климат, приборы устанавливают на достаточно долгий период. В конечном итоге хозяин тратит немало средств на электроэнергию, что приводит к повышению стоимости урожая.
Современный рынок представляет большое количество оборудования, которое может долго работать на одной закладке. При этом печка для теплицы на дровах может достигать производительности около 90 процентов. В данном случае речь идет о печах длительного горения для использования в теплицах. Такое оборудование поддерживает оптимальную температуру при минимальном расходе топлива. Кроме того можно сделать своими руками печь для теплицы длительного горения.
Принцип работы печей для теплицы
Топливом для таких печей может служить следующее:
- Уголь, сформованный в брикеты.
- Опилки и шелуха семечек, спрессованные в пеллеты.
- Торф.
- Бытовые отходы.
- Древесина.
Последний материал используется в большинстве случаев. Конструктивные особенности котла позволяют древесине гореть в течение длительного периода, до 24 часов. Дровяная закладка сгорает полностью, поэтому золы практически не остается. Это очень удобно, так как чистить печь на опилках для теплицы необходимо только один раз в две недели.
Из множества положительных характеристик внимание привлекает следующее:
- Печь может подключаться к водяному контуру и обогревать воздух.
- Для работы не требуется подключение к электропитанию или газовой системе.
- КПД печки для теплицы составляет около 90 процентов.
- Эксплуатация прибора довольно простая.
- Устройство позволяет получить некоторую экономию.
Топливо горит длительное время благодаря протекающему процессу пиролиза. В камеру поступает ограниченное количество воздуха, поэтому дрова не горят, а тлеют в печи. В результате этого выделяется большое количество пиролизных газов, горение которых в дополнительной камере сопровождается выделением дополнительного тепла. Другими словами тепло образуется при горении топлива и сгорании газов. Это продлевает процесс и делает его более эффективным. Помимо этого следует помнить, что более крупное топливо будет гореть дольше. Следовательно, использование не колотых дров, а крупных бревен позволит закладывать топливо один раз за двое суток.
Количество воздуха, подаваемого в камеру, можно регулировать с помощью заслонки. Увеличивая или уменьшая объем кислорода, можно регулировать конечную скорость горения.
Описание популярных моделей
Профильный рынок представляет большое количество моделей, которые отличаются высокой эффективностью и доступной ценой.
Вологда
Для этой модели печи для теплицы характерно наличие следующих характеристик:
- Высокая теплоотдача.
- Экономичность.
- Гонение одной закладки на протяжении суток.
- Коэффициент полезного действия составляет почти 80 процентов.
Оборудование может работать без постоянного контроля. Теплоноситель подается через особый гибкий шланг, подсоединенный к задней части печи. В течение 30-40 минут вода нагревается до 600С.
Некоторые модели «Вологда» разработаны для подключения к водяному контуру с радиаторами. Сделанная своими руками печка для теплицы вполне может использоваться для одновременного обогрева дома и теплицы. Каждая единица оборудования укомплектована подробной инструкцией подключения.
Булерьян
Горение топлива в этой модели протекает также долго, что обеспечивает поддержание определенной температуры. Однако для установки в теплицах данная марка используется очень редко.
По внешнему виду печь напоминает лежащую на боку большую бочку с приделанными выпускающими трубками. В зависимости от размеров бочки выделяют несколько вариантов печи. Изделие самого маленького размера способно пропускать через трубки воздух объемом до 5 м3. Безопасность печки обеспечивает покрытие специальной краской, которая также предотвращает сильное нагревание корпуса.
Из минусов можно выделить следующее:
- Сложный монтаж.
- Необходимость постоянного досмотра.
- Отсутствие терморегулятора.
Если использовать в качестве топлива для такой печи древесину твердых пород или бурый уголь, то количество загрузок существенно снижается.
Печь Бутакова
Название устройство получило в честь инженера, занимавшегося ее разработкой. Работает печь по принципу модели «Булерьян».
Производство такого устройства для обогрева теплиц налажено на нескольких фабриках:
- Достаточно крупная и известная фирма «Термофор».
- Компания «Теплодар», которая скопировала котел на высоком профессиональном и качественном уровне.
- Компания «Конвектика».
Модели всех производителей выполнены по аналогичной схеме, однако каждая их них имеет свои положительные и отрицательные характеристики.
Слобожанка
Еще одна печка для обогрева теплиц, характеризующаяся качеством и эффективностью. В этом устройстве топливо, в частности полешки, загружаются вертикально. В качестве дополнения печка для парника оснащена специальным цилиндром. Этот элемент давит на топливо, в результате этого по мере сгорания поленья опускаются вниз.
Существует возможность подключения к устройству водяного контура, что позволяет создавать отопительную систему с радиаторами.
Самостоятельное изготовление котла
Одним из преимуществ является возможность изготовления печки для теплицы длительного горения своими руками. Для этого понадобятся листы обычного металла, некоторые расходные материалы и умение обращаться с обычными инструментами.
Подготовительный процесс
При изготовлении печки для теплицы можно использовать любой подходящий материал, но чаще всего предпочтение отдают металлу. Его нагрев осуществляется за короткое время, а тепло равномерно распространяется в помещении. Кроме того металлическое оборудование является идеальным вариантом для воздушного отопления.
В основе печи лежит корпус, для изготовления которого может использоваться следующее:
- Цилиндр из стального листа.
- Старый баллон от газа.
- Стальная труба большого диаметра.
- Старая металлическая бочка.
Самым простым вариантом считается сделанная своими руками печь для теплицы из старой бочки, которая имеется у практически у каждого хозяина. Помимо основной части следует приготовить металлическую трубу-дымоотвод и металлический уголок.
Также для работы понадобится набор инструментов:
- Аппарат для сварочных работ.
- Болгарка и диски для резки металла.
- Приспособление, с помощью которого можно наносить разметку.
Основной процесс изготовления
Чтобы правильно сделать печь для теплицы длительного горения, необходимо предварительно нарисовать схему или чертеж.
Затем готовят корпус будущей печи, для чего выполняют следующие действия:
- Срезают или снимают верхнюю крышку.
- Измеряют диаметр дымоходной трубы и в соответствии с этим значением вырезают круглое отверстие недалеко от верхнего края.
- В нижней части бочки вырезают еще одно отверстие, но уже квадратной или прямоугольной формы. Это будет место для закладки топлива.
- В соответствии с размерами топки делают металлическую дверку, она должна плотно прилегать к корпусу и обеспечивать герметичность.
Далее делают другие конструкционные элементы.
Срезают края верхней крышки, немного уменьшая ее в диаметре. При этом крышка должна свободно перемещаться внутри бочки. В середине полученного круга вырезают отверстие диаметром не больше 2 см. Через это отверстие будет поступать воздух для поддержания огня, поэтому не следует его делать слишком большим. В противном случае топливо будет сгорать намного быстрее. К вырезанному отверстию присоединяют трубу для подачи кислорода.
Чтобы давление на дрова было более эффективным, на нижнюю часть металлического круга наваривают полоски металла. В процессе горения дров крышка будет постепенно опускаться вниз, поэтому время закладки следующей партии топлива определяется довольно легко.
Для безопасности делают ножки из металлического уголка. Для этого отрезают четыре равных по длине отрезка и приваривают их к основному корпусу. Устойчивость печи для обогрева теплиц придают пластины, приваренные к нижней части каждой металлической ножки.
Печи длительного горения можно назвать идеальным вариантом для обогрева теплиц. Они также могут присоединяться к системе водяного контура. С помощью такого агрегата в теплице создается и поддерживается оптимальная температура и влажность, благодаря этому появляется возможность получить высокий урожай без существенных затрат в процессе выращивания растений. Преимуществом печей для теплиц длительного горения также является возможность самостоятельного изготовления, что также положительно влияет на себестоимость продуктов из теплицы.
Бубафон печь в теплице. Как правильно установить печь и дымоход. Сечение дымохода
Запеканка длительного горения Бубафоня
Стремление сэкономить топливо подталкивает жителей пригородов к поиску оптимальных способов обогрева жилья. Одно из них — печи длительного горения. Они появились на рынке достаточно давно и используются в основном для обогрева небольших помещений — гаражей, складов, мест зимовки пчел и так далее. Сделать их своими руками не так уж и сложно. Главное знать их конструкцию и схему работы.В качестве топлива в таких печах используются дрова, опилки, листва, шелуха и другие горючие органические материалы. Среди печей длительного горения есть модель «Бубафоня». Давайте разберемся, что это такое, и как сделать печь Бубафоня своими руками.
Среди подмосковных жителей почему-то бытует мнение, что Бубафоня — обыкновенная буржуйка. Но речь идет о печах длительного горения, и буржуйка не из таких. Поэтому мы будем считать это мнение ошибочным и на этом закроем вопрос.
Преимущества и недостатки
Начнем с этих вопросов, ведь перед тем, как приступить к постройке котла, необходимо определиться, стоит ли все это начинать.
Итак, положительные стороны Bubafoni:
- Простой дизайн, который легко сделать вручную
- . Возможность использовать разные виды топлива из разряда дешевых и общедоступных. А некоторые дадут вам бесплатно
- Для изготовления такого котла длительного горения понадобятся подручные материалы, которые всегда можно найти на дачном участке… Даже если их нет, они недорогие, поэтому их можно купить.
- . Небольшие габариты каменки и ее небольшой вес. Отсюда высокая мобильность устройства — вручную перенести Bubafon может даже один человек.
- .Простота и удобство использования. Положил, например, дрова, поджег их и радовался жизни. Одной закладки при правильном размещении хватит на полдня.
К сожалению, были недостатки.
Минусы «Бубафони»
- В первую очередь следует сказать о низком КПД.В самом котле и внутри трубок для отвода продуктов сгорания образуется конденсат, что снижает КПД нагревателя .
- Сам котел длительного горения Бубафоня в классическом исполнении не очень хорошо аккумулирует тепло. Поэтому специалисты советуют окружить его водяной рубашкой или кирпичной кладкой, что значительно увеличивает стоимость единицы .
- . Котел должен быть установлен на прочном негорючем основании. Чаще всего его кладут на бетонный или кирпичный фундамент.
- Очистить котел очень сложно, особенно его днище, где скапливается сажа и зола от сгоревшего топлива.
- Обязательное условие — исправная система вентиляции в помещении, где установлен котел Бубафоня.
Устройство печи и ее элементы
Печь для опилок длительного горения
Из чего состоит котел длительного горения «Бубафоня»?
- Топливный бак, в котором непосредственно сжигается топливо.
- Дымоход.
- Зажимной груз.
- Съемная крышка.
Принцип работы такого котла заключается в том, что дрова или другой вид топлива, помещенные в него, горит сверху. При этом на них давит груз, который постепенно перемещается к нижней части устройства. Как только загрузка топлива закончилась, груз достигает металлического дна. Остается только пепел.
Всем известно, что горение поддерживается кислородом. Итак, в напорной гири проделывается отверстие, и устанавливается труба, по которой свежий воздух будет поступать в то место, где горит пламя.Вся конструкция должна быть герметичной, и единственный выход — дымоход. Но тут возникает вопрос, как дым выходит из зоны горения? Между прижимным грузом и стенками топки остается небольшой зазор, который является самым выходом.
Как сделать котел своими руками
Сразу оговоримся, что котел длительного горения Бубафон изготавливается только из металлических деталей. Поэтому когда встает вопрос о его создании своими руками, необходимо иметь навыки работы болгаркой и сварочным аппаратом.Другого варианта соединения узлов и частей печи нет.
В качестве самого простого варианта топливного бака может использоваться обычная металлическая бочка объемом 200 литров. Чтобы сделать из него котел, необходимо по контурной линии отрезать верхнюю часть, для чего потребуется болгарка. Самое главное — правильно сделать разметку, по которой будет производиться разрез. Достаточно небольшого отклонения от верхней крышки.
Теперь в срезе кровли посередине проделывается сквозное отверстие диаметром 100 мм.В самом стволе точно такое же отверстие делается сбоку для дымохода. Крышка убирается в сторону, так как она вам понадобится чуть позже.
Духовки из бубафона производим сами
Теперь перейдем к изготовлению прижимной массы. Для этого понадобится листовое железо толщиной не менее 4 мм, труба диаметром 100 мм и длиной на 30-50 см выше металлической бочки, а также несколько швеллеров. Они будут приварены к грузу, чтобы создать вес и небольшой зазор между деревом и самим грузом.То есть будет создана зона горения топлива.
Из металлического листа вырезается круг, диаметр которого должен быть немного меньше диаметра ствола. В нем по середине проделывается отверстие диаметром 100 мм. Кусочки швеллеров сваривают крест-накрест.
Обратите внимание, что швеллер не должен закрывать сквозное отверстие и выступать за края разрезанного блина.
Обычно достаточно четырех каналов. Если вам кажется, что вес нагрузки маловат, то можно увеличить количество каналов.
Теперь переворачиваем металлический блин с закрепленными на нем швеллерами и с противоположной стороны свариваем трубу диаметром 100 мм. Прижимная масса готова. После этого к боковому отверстию ствола необходимо приварить небольшую трубу того же диаметра, что и само отверстие. Длина патрубка может быть в пределах 15–20 см.
Собираем котел Бубафоня
Котел в сборе
Чтобы собрать всю конструкцию топки в единое устройство, необходимо предварительно залить топливо.Если вы используете дрова, то складывать их нужно так, чтобы между ними оставалось как можно меньше места. Плотность упаковки — залог длительного горения. Но в случае с дровами место все же остается, так что это не лучший вид топлива в данном случае.
Но опилки идеальны. Единственное, на что нужно обратить внимание, так это на их утрамбовку. Опилки следует укладывать слоями и каждый слой плотно утрамбовывать. Затем их верхний слой поджигается, и нужно время, чтобы топливо немного выгорело.После этого сверху устанавливается нажимной груз, а поверх него — крышка. Последний элемент должен плотно прилегать к краям котла, чтобы дым не проходил через стык в комнату.
Конечно, прежде чем зажигать топливо, нужно установить дымоход и вывести его за пределы здания.
Разновидности котлов
Котел Бубафоня из бочки — не единственный вариант. К тому же круглое сечение топки хоть и является оптимальным, но не считается строгим требованием.Такой котел можно сделать и из металлических листов прямоугольной формы, сварив их между собой. Если нет ствола, можно использовать трубу большого диаметра. То есть вариаций на тему форм котла Бубафон очень много. Единственное условие — высота, которая должна быть больше ширины устройства. И чем выше плита, тем дольше будет тлеть отработанное топливо.
Готовая печь длительного горения
Другие конструктивные изменения включают трубу, приваренную к нажимному грузу.Он не обязательно должен быть круглым. Если от постройки дома у вас остались уголки, то из них можно сварить квадратную трубу. Вам просто нужно сделать для него квадратное отверстие в блинчике. Это первое.
Во-вторых, чтобы облегчить процесс очистки бубафони, можно сделать прямоугольное отверстие в его нижней части, установив на него дверцу. Здесь важно обеспечить качественную герметизацию. Иногда недостаточный опыт не позволяет этого, поэтому можно эксплуатировать котел без такого отверстия, тем самым снижая риск возгорания.Если вы все же решили это сделать, рекомендуем в качестве пломбы использовать асбестовый шнур.
Заключение по теме
Изготовить котел длительного горения Бубафон своими руками — не самая сложная задача. Но при изготовлении конструкции необходимо помнить о мерах безопасности при последующей эксплуатации устройства. Например, соединение крышки и корпуса котла. Это должен быть плотный стык без малейшего зазора, чтобы продукты горения не проникали в комнату.Здесь также можно добавить стык между крышкой и патрубком для подачи кислорода в зону горения.
На первый взгляд простой дизайн и простые материалы, но все должно быть выполнено на высоком качественном уровне. И если вы не очень хорошо умеете работать со сварочным аппаратом, то строить эту печь не стоит. Качество будет низким, и требования безопасности не будут соблюдаться.
Невозможно добиться комфортного микроклимата в доме зимой, если в нем не продумана грамотная система отопления.Хорошие обогреватели стоят недешево. Также стоит отметить, что из-за постоянно растущих тарифов на электроэнергию отопительные приборы, питаемые от сети, просто становятся экономически невыгодными. Хорошее решение проблемы отопления в частных домах — печь Бубафоня, которую просто необходимо сделать своими руками. Его особенность заключается в том, что при минимальном расходе топлива Бубафоня может обогреть очень большую площадь от газового баллона. Это очень привлекательно для тех, кто умеет и любит экономить.
Принцип работы духовки Бубафоня
Те, кто хоть немного знаком с физикой, знают: при нагревании теплый воздух поднимается вверх, а холодный остается внизу. Принцип действия устройства основан на этом физическом законе. Топливо нагревает воздух, который поднимается вверх и попадает в специальную выхлопную трубу. Холодный воздух через специальный входной патрубок попадает внутрь и, подогреваясь, попадает в выходной патрубок. Таким образом, осуществляется не только сжигание топлива, но и циркуляция воздуха.Интенсивность горения, а соответственно и температуру воздуха можно регулировать с помощью специальной заслонки, которая находится на подающей трубе.
Работа печки Бубафоня прекращается только после того, как дрова полностью сгорят, и поршень с грузом упадет на дно топливного бака. Если пожар нужно потушить принудительно, достаточно перекрыть доступ кислорода. Для этого закройте заслонку на выпускном патрубке. Также с помощью воды можно экстренно потушить пламя.
Достоинства и недостатки духовки
Эксплуатация печи Бубафоня имеет следующие преимущества:
- Дрова в печи Бубафоня горят долго.
- Для того, чтобы изготовить такую конструкцию, не потребуется специальных инструментов.
- Корпус агрегата достаточно легкий.
- Печь Бубафоня обладает уникальной способностью хорошо обогревать помещение с минимумом топлива.
- Бубафоня — очень мобильная конструкция, которую можно легко перемещать куда угодно.
Недостатки печи Бубафоня:
- Эксплуатация возможна только в хорошо проветриваемом помещении.
- После того, как пламя погаснет, корпус очень быстро остывает.
Подготовка к установке духовки
Перед тем, как приступить к изготовлению духового шкафа Бубафоня своими руками, необходимо обязательно оборудовать подходящее рабочее место. Самый лучший выход — проводить все мероприятия на свежем воздухе в теплое время года. Единственное, что нужно помнить, — доступ к электросети должен быть бесплатным и удобным. Если посидеть на улице невозможно, то хорошим местом для работы может стать подсобное помещение или гараж.Также нужно подготовить необходимые инструменты и материалы. Обязательно подготовьте чертежи печи бубафон с размерами.
Для того, чтобы без особых усилий сделать печь Бубафон, вам потребуются следующие материалы и инструменты:
- Ствол железный, цилиндрический, достаточно большой; Металлический швеллер
- ;
- фреза или болгарка по металлу;
- двухрезовая стальная труба;
- сварочный аппарат; Фольга
- ;
- молоток или кувалда;
- кирпич огнеупорный и раствор для его укладки;
- уровень;
- Чертеж печи Бубафоня.
Как собрать печь Бубафоня своими руками
После того, как рабочее место и материалы подготовлены, наступает момент, когда можно приступать непосредственно к сборке печи Бубафоня. Вне зависимости от того, поменяет ли утеплитель свое расположение или нет, обязательно наличие фундамента.
Внимание! Фундамент не только помогает установить обогреватель в нужное положение, но и является важной мерой пожарной безопасности.
Обустраиваем фундамент
Чтобы цоколь для печи Бубафоня был прочным и долговечным, при его строительстве следует использовать только огнеупорный кирпич.Форма в данном случае особого значения не имеет, главное, чтобы материал был целым.
Чтобы лучше понять, как правильно обустроить фундамент, рассмотрим наглядный пример постройки цоколя под печь Бубафоня объемом около 200 литров.
Перед тем, как приступить к выкладке стен фундамента, нужно сделать небольшое углубление, примерно 20 см. Периметр котлована 4 метра (по метру с каждой стороны). В результате у вас должен получиться квадрат с такими же сторонами.Затем на дно равномерно насыпается щебень, после чего заливается жидкий раствор. Цементная смесь должна доходить до края бороздки. После полного высыхания раствора основа под тональный крем полностью готова.
Для возведения стен фундамента применяют огнеупорный кирпич, который выкладывают по периметру подготовленного основания. Очень важно проверять качество работы по уровню. Как правило, кладут не более двух-трех рядов кирпича.Им тоже нужно время, чтобы осознать, после чего можно сказать, что строительство фундамента окончено.
Монтаж основной части печи
Плиту можно собрать из любой емкости, очень часто Бубафоны делают из газового баллона. Подготовьте газовый баллон, цилиндрическую бочку или трубу необходимого диаметра. Если в работе используется отрезок трубы, то один край его необходимо приварить с одной стороны крышкой из листового металла.
Если в работе используется бочка или газовый баллон, то в этом случае, наоборот, аккуратно вырезается дно.После этого из металлического листа вырезается круг диаметром чуть меньше диаметра бочки или газового баллона. В середине круга болгаркой вырезаем отверстие такого размера, чтобы к нему можно было приварить подводящую трубу. Он будет спроектирован так, чтобы кислород попадал в топливный бак.
Металлические швеллеры привариваются по краям врезной окружности. Это нужно сделать так, чтобы получился крест. Такая конструкция позволит равномерно распределить топливо по топке, а также обеспечить необходимое количество кислорода.
Завершающим этапом проектирования основной части печи Бубафоня является изготовление крышки. Для этого в вырезанном дне проделывается отверстие, диаметр которого совпадает с диаметром подающей трубы.
Подготовка ям для дров и золы
Также важно подготовить в печи Бубафон специальное место, куда будут попадать дрова или другой топливный материал. Для этого установите каменку в рабочее положение и на расстоянии чуть ниже середины на боковой стенке сделайте отметку, по которой будет вырезано отверстие.
Совет! Наиболее подходящие для него габариты — около тридцати сантиметров в ширину и в высоту. Как показывает практика, именно эти параметры позволяют закидывать в топку дрова практически любого размера.
Чуть ниже места для дров следует сделать специальное место, через которое печь Бубафоня можно будет очистить от продуктов горения: золы и золы. Этот принцип обустройства очень похож на буржуйку. Если есть возможность и желание, то оба отверстия на боковой стенке можно закрыть дверцами.Это придаст печи Бубафоня эстетичный вид и предотвратит выпадение горящих углей или стружки. Очень важно установить на двери специальные защелки, которые будут надежно закрывать их.
Дымоходное оборудование
Чтобы избежать деформации корпуса из-за избытка дыма, нужно смонтировать дымоход, предварительно подготовив для этого место. Примерно в 20 см от наивысшей точки печи Бубафоня разметьте вдоль нее отверстие для дымохода.Диаметр отверстия и выреза должны быть одинаковыми.
Очень важно, чтобы дымоход имел колено. Для того, чтобы его смонтировать, понадобится два разреза. Один более длинный ставится вертикально. К нему под углом приваривается меньший срез.
Важно! Самый маленький участок трубы должен быть длиной не более 45 см, иначе дым будет проходить с проблемами.
Трубы сварены под углом 45 °. Обязательно следите за тем, чтобы края обоих надрезов плотно соприкасались друг с другом.Только после проверки всех параметров трубы можно сваривать. Более длинная прямая труба должна выходить наружу через крышу дома. Если длины не хватает, ее всегда можно прибавить, приварив еще один пропил. Отверстие в потолке, через которое дымоход выходит на крышу, необходимо замазать огнеупорной глиной.
Если дымоход должен выходить наружу через окно, то дымоход устанавливают не вертикально, а в горизонтальном положении. В этом случае помните, что дым будет выходить намного медленнее.
Совет! Печь длительного горения Бубафоня имеет свойство очень сильно нагреваться, особенно если процесс горения происходит непрерывно. Поэтому очень желательно установить вокруг печи Бубафоня отражатели. Для этого используется фольга, которую раскладывают под дном духовки и по всему периметру.
Как топить бубафон
Для растопки печи Бубафоня можно использовать дрова различных пород или изделия деревообрабатывающей промышленности (опилки, пеллеты и т. Д.).) Главное следить за качеством материала. Древесина должна быть хорошо просушена, ведь от этого напрямую зависит производительность агрегата. Дрова нужно положить в емкость, хорошо утрамбовать и разжечь. Для того, чтобы процедура розжига произошла как можно скорее, можно добавить в бак ветошь или бумагу.
После того, как дрова начали гореть, плотно закройте крышку печи Бубафоня и дайте пламени загореться в полную силу. Только после этого можно регулировать интенсивность пламени с помощью заслонки.
На видео показаны результаты экспериментов по использованию разных видов топлива для печи
Секреты эксплуатации печи Бубафоня
Чтобы пользоваться печью Бубафоня было комфортно и эффективно, достаточно запомнить несколько простых советов:
- Дымоход лучше сделать разборным. Это упростит очистку;
- После установки каменки нагрейте ее древесиной разной влажности. Так вы сможете узнать оптимальное количество топлива для разной интенсивности сгорания;
- не забываем проверять состояние печки Бубафоня в процессе эксплуатации;
- из соображений пожарной безопасности поместите рядом с устройством огнетушитель или песочницу.
Заключение
Отопление печкой Бубафоня — простой и легкий способ быстро обогреть дом с минимальным расходом топлива. Смонтировать печь из бубафона длительного горения своими руками возможно, главное придерживаться рекомендаций специалистов и последовательности этапов сборки.
Как сделать печь Бубафоня своими руками для теплицы, мы узнаем в следующем видео
«Бубафоня» — или печь длительного горения.Впервые предложена в Интернете колымским мастером Афанасием Бубякиным. Он первым поделился со всеми чертежами испытанной печи. А поскольку ник Афонасий в сети «Бубафонжа» (бубафонжа), отсюда и пошло название этой печи. Принцип работы печи чем-то похож на литовские котлы «Стропува», только «Бубафоня» намного проще. На самом деле в Интернете я нашел десятки похожих духовок, разных форм и даже названий. Но принцип их действия всегда оставался примерно одинаковым.
На мой взгляд, главное достоинство этой печи — очень долгое время горения. Радует и простота изготовления духовки. В схеме «бубафони» отсутствуют дверцы, воздуходувки и зольник. Для его изготовления можно использовать любую металлическую емкость под рукой и пару, три металлических трубы … Многие делают печь из старых газовых баллонов, металлических бочек, старых широких труб и даже квадратных железных ящиков. Только время горения зависит от объема топки.
То есть чем больше топлива в него можно залить, тем дольше он будет гореть.Например, плита из газового баллона может гореть 5-6 часов, а из 200-литровой бочки — 20-24 часа. Некоторые владельцы печей утверждают, что при сжигании дров твердых сортов эта печь может гореть двое суток на одной закладке. Кстати о топливе. Печка «Бубафоня» хороша тем, что может работать на любых дровах, ветках, стружках, опилках, картоне и даже на старых книгах и ДСП.
У этой замечательной духовки есть и свои недостатки. Первый недостаток — эстетичный внешний вид. По внешнему виду и принципу действия такая печь не украсит ваш дом.Но на самом деле это преодолимо. Позже я покажу примеры, как его правильно использовать. Поэтому сразу оговоримся, что эта печь предназначена в первую очередь для обогрева технических помещений, гаражей, подвалов, теплиц, построек с животными и т. Д. Для использования в домашних условиях необходима небольшая пристройка, котельная или хотя бы подвал. .
Второй очень серьезный недостаток этой печи — низкая теплоотдача. Печь «бубафоня» горит медленно, и из-за ее принципа действия тепло выделяется не по всей площади, а только в определенных местах.По подобной схеме отвода тепла можно обогреть не очень большое помещение. Но если правильно подойти к вопросу отопления, то и это преодолимо. И так по порядку.
Печь Бубафоня, классический вариант.
Главное при создании этой печи — не брать слишком тонкие трубы для поршня и дымохода. Но это условие несложное. Ведь все размеры приблизительные. Например, если вы делаете печь из бочки на 200 литров. Тогда старайтесь, чтобы в дымоходе оставалась труба на 100-150 мм.а поршень 50-60мм. Если от цилиндра, то дымоход нельзя делать шире 100 мм, а поршень шире 50 мм. В этой духовке есть определенные нюансы. Горение происходит в двух камерах. Твердое топливо горит под поршнем, а газы, выходящие из нижней топки, горят над поршнем. По этой причине отверстие в крышке, через которое вставляется поршень, не должно плотно прилегать к поршню. Над поршнем должен быть зазор не менее полсантиметра для всасывания воздуха в топку.Если вы все же решили не оставлять зазора между крышкой и поршнем, то вам нужно сконструировать в крышке простейшую воздуходувку. В противном случае ваша плита будет дымить, задыхаться и дымить. Причина этого кроется в недостатке кислорода для сжигания газов, выбрасываемых нижней топкой. Вот классический пример такой ошибки.
Николай Воронин в своем видео рассказывает, что печь начинает дымить на полной тяге, и только когда он перекрывает тягу, переводя печь в режим медленного горения, ситуация нормализуется.Обратите внимание, что зазор на крышке Николая очень маленький, а юбка крышки очень тугая. А для этого при полной тяге через нагнетатель образовалось столько пиролизных газов, сколько они не успели сгореть в верхней камере. Зазор узкий, и кислорода не хватило, чтобы сжечь все газы. Поэтому, когда Николай убрал тягу, газов стало меньше, и они стали отлично выгорать в верхней камере. Но это не так критично. Ведь на полной тяге печка используется только для розжига и быстрого прогрева.Основная функция этой печи — медленное горение, для которого не нужен сильный обдув. Тем не менее, не следует делать зазор в крышке слишком узким.
Кстати, обратите внимание как светится крышка печки. Этого легко добиться, очистив крышку металлической щеткой при нагревании. Ржавчина быстро удаляется, а очищенный металл покрывается оксидной пленкой, становясь блестящей.
Вот видео, в котором производитель таких печей рассказывает, зачем нужен воздух во второй камере.
А теперь поговорим о теплоотдаче печки бубафоня.Как мы поняли из всех видео и схем, эта печка нагревается только по мере сгорания топлива. Единственные детали, которые постоянно нагреваются в этой печке, — это поршень, давящий на топливо, крышка и дымоход на выходе. Стены печи нагреваются только по мере того, как горит дрова. Но как получить от печи все тепло? Ведь нагрев нужен сразу, а не при выгорании топлива. Первым в этой схеме является поршень. Он подвижен и постоянно в печке. С него тепло не убрать.Кроме того, поршень выполняет важную функцию. Светящийся красным, он давит на топливо, образуя пиролизные газы, которые, в свою очередь, горят в верхней камере и нагревают печь. Снять тепло с крышки тоже проблематично. Его нужно открывать и закрывать для хранения дров. Остается только дымоход. Именно на него возлагается основная ответственность за теплообмен. Наши мастера давно это поняли и придумали много разных способов отвода тепла от дымохода. Это и пассивные радиаторы, и вентилируемые радиаторы, и водяные рубашки.На мой взгляд, самый эффективный способ обогрева дома — это водяная рубашка. Давайте подробнее рассмотрим этот метод.
Как видно на рисунке, к дымоходу приваривается кожух от небольшого баллона или другого металлического баллона. К этому цилиндру приварены трубы, по которым будет циркулировать вода. Водяной насос подает воду в рубашку, она нагревается от дымохода и поступает в батареи дома. Таким образом, мы получаем отопление дома 24 часа в сутки. Хочу отметить, что дымоход этой печи постоянно нагревается до приличной температуры, начиная с момента возгорания и заканчивая окончанием горения.Если куртка на дымоходе сделать длинной и достаточно узкой, это позволит обогреть достаточно большие площади.
Среди мастеров есть и те, кто сделал водяную рубашку вокруг всей печи. Но, на мой взгляд, это намного сложнее и не у всех есть такая возможность. Другие мастера пошли другим путем. Рубашку привязывали к дымоходу с закрытой тарой. Контейнер был утеплен и через него пропущены трубы с водой от отопления и водой на нужды дома.Таким образом, они получили теплоаккумулятор, в котором вода постоянно находится на максимальной температуре. И уже от этой батареи они могут обогревать отдельные системы отопления для дома и воду в кранах. В таких случаях утепляют саму печь, закапывая ее на метр в землю и засыпая кирпичом. Это позволяет сохранить большую часть тепла, выделяемого печью, и направить его в дымоход. Эта система более универсальна, так как позволяет регулировать нагрев воды в системе отопления и в системе водоснабжения до нужной температуры.
На этом видео его хозяин показывает именно такую систему отопления дома.
Конечно, у этой печи есть множество других применений. Мы рассмотрели самые простые из них. В любом случае, у этой духовки много преимуществ перед аналогами. Основные преимущества — простота изготовления, а также продолжительность работы от 20 часов и более без перерыва. Это позволяет использовать духовку в разных условиях и для разных нужд. К тому же у этой духовки невероятное количество вариантов модернизации.Посмотрев видео с этой духовкой, вы удивитесь, какие устройства модернизируют эту духовку.
Довольно часто с наступлением холодов требуется отапливать загородный дом, гараж, теплицы или какие-то подсобные помещения. Для решения этой проблемы можно приобрести дорогую электрическую каменку или сделать печь длительного горения своими руками. Благодаря своей экономичности, простоте конструкции, безопасности, экологичности и экономичности печь Бубафоня пользуется большой популярностью у экономных владельцев.Его конструкция такова, что одной закладки твердого топлива хватит на довольно долгое время.
Печь Бубафоня — описание, принцип работы
Конструктивно печь состоит из цилиндрической емкости с герметичным дном и крышкой. Внутри конструкции установлен поршень с грузом, подающий патрубок и диффузоры. К верхней части бака приваривается напорный патрубок, который с помощью хомута соединяется с трубопроводом. К наружным стенкам емкости и ее крышке приварены металлические ручки.
Принцип работы котла «Бубафоня»
В топке топливо не внизу, а вверху. Когда он горит, воздух нагревается, сушит древесину, которая находится наверху и ждет своей очереди, и опускается вниз. Благодаря тому, что вокруг емкости находится зазор, все топливо не сгорает одновременно.
Чтобы огонь не распространился по всей емкости, на очаге размещается защитный экран. Интенсивность горения дров можно регулировать с помощью установленной сверху заслонки.
Вы можете перестать сжигать топливо всего за несколько минут. Для этого достаточно перекрыть воздух заслонкой.
Преимущества духовки Бубафоня:
Помимо вышеперечисленных положительных характеристик, конструкция «Бубафоня» имеет еще одно неоспоримое преимущество — ее легко собрать своими руками.
Однако у него есть духовой шкаф и несколько недостатков :
- Обладая высокой теплоотдачей, конструкция имеет небольшой «радиус действия».Рядом с ней жарко, а от плиты холодно.
- Конденсат образуется на трубах котла.
- Духовка быстро остывает.
- Может возникнуть «возгорание», и тогда в комнату попадут газы.
- Удалять золу и золу со дна емкости не очень удобно. Поэтому со временем они спекаются в массу, похожую на асфальт, что требует замены бака.
- Возможно замерзание труб.
- Непривлекательный вид. Красить котел не рекомендуется, так как краска все равно пригорит.
Поставив такую печь на даче, вы сможете облагородить ее с помощью кирпича, который одновременно станет своеобразным аккумулятором тепла. Во время горения печи кирпич будет нагреваться, а когда потухнет, он будет постепенно остывать, отдавая накопленное тепло.
Изготовление печи Бубафоня своими руками
Размеры конструкции указывать нет смысла, так как каждый делает ее из того, что есть под рукой. Поэтому для изготовления печи длительного горения может подойти:
Самый простой способ сделать емкость для котла из газового баллона … Достаточно будет просто отрезать ее верхнюю часть и приварить к ней фиксаторы или упоры, которые будут удерживать крышку на корпусе.
Как сделать печь Бубафоня из бочки
Из бочки с приваренной, закатанной или приклепанной крышкой своими руками сделать долговечную конструкцию несложно.
Этапы работы:
После приваривания дымохода к подготовленному отверстию печь длительного горения Бубафоня готова. Теперь вам нужно проверить ее работу , для чего нужно загрузить в нее дрова и разжечь их.После того, как верхние поленья заняты, в котел устанавливают поршень и надевают крышку.
Печь Бубафоня может использоваться не только для отопления самых разных помещений, но и успешно использоваться вместе с системой водяного отопления.
Сделай сам «Бубафоня» с водяной рубашкой
Для увеличения возможностей печи она может быть выполнена с водяным контуром. Для этого необходимо соорудить вокруг котла водяную «рубашку» и подвести к нему трубы отопления.Тепло, выделяемое в печи, нагреет воду, которая будет перемещаться по трубам системы отопления.
Для изготовления водяной рубашки можно взять емкость диаметром больше диаметра печи или согнуть два куска листового металла в кольца. У вас должен получиться закрытый металлический кожух, оптимальная толщина которого должна составлять около трех миллиметров.
Внутри кожуха установлена печь, к которой подсоединены трубы, по которым подается вода и воздух.В верхней части конструкции должен быть выход для корма, а в нижней — возврат.
На последнем этапе работы изготавливается крышка подходящего размера и духовой шкаф Бубафоня с водяной рубашкой, сделанный вручную, готов к работе.
Как топить печь длительного горения «Бубафоня»
Такая конструкция хороша тем, что ее можно адаптировать под любое топливо:
Правила безопасной эксплуатации духовки Бубафоня
Для безопасного использования духового шкафа своими руками необходимо соблюдать несколько простых правил:
Печи длительного горения «Бубафоня» есть много вариантов … Каждый будет улучшать и переделывать его по-своему. У кого-то лучше работает рукотворная конструкция, у кого-то хуже. Однако каждый подстраивает эту прекрасную идею под свои нужды и на определенный вид топлива.
Для того, чтобы понять, что такое духовой шкаф Бубафоня, необходимо более подробно рассмотреть особенности этой конструкции. Состоит из нескольких частей:
- Сердце печи — цилиндрический корпус. Чаще всего печь изготавливают из газовых баллонов или бочек.В некоторых случаях основанием может служить труба или стальной лист, которому придают цилиндрическую форму (концы свариваются).
- В корпусе проделывается отверстие под металлический дымоход, диаметр которого обычно не превышает 250 мм.
- Поршень, благодаря которому обеспечивается плавное горение древесины. В его основе — каблук со специальными «ребрами жесткости». Его следует приварить к патрубку, по которому воздух подается в камеру сгорания. Ребра необходимы для создания воздушного зазора между пяткой и топливом, который способствует сгоранию топлива.
- Процесс горения контролируется специальным клапаном, который устанавливается в трубе сверху. Когда она полностью закрыта, воздух в камеру перестает поступать, что дает возможность тушить пожар.
- В крышке есть отверстие, в которое вставляется поршневая трубка. Чаще всего для изготовления этого элемента используется обычная крышка от бочки.
Принцип работы
Бубафоня относится к отопительным приборам длительного горения, что выгодно отличает его от обычных печей.Топливо здесь сгорает не сразу, а постепенно, по мере поступления воздуха в камеру. Такой эффект достигается за счет следующих особенностей:
- Топливо горит сверху вниз, как восковая свеча … Дрова укладываются вертикально. Поверх дров насыпают опилки, щепу и кладут бумагу для растопки.
Важно! В обычных конструкциях топок процесс горения естественный и происходит снизу вверх.Из-за этого огонь быстро распространяется на все топливо и контролировать такой процесс горения невозможно.
- Для розжига топлива снимается распределитель воздуха и процесс осуществляется сверху. Как только пламя разгорается, поршень ставится на место, а сверху надевается крышка.
Совет! Некоторые владельцы таких печей проводят розжиг, не снимая крышки. Для этого в воздуховод заливается небольшое количество керосина, после чего в него бросается зажженная спичка.
- Долговременное сгорание топлива обусловлено конструкцией поршня … Под своим весом он постепенно сжимает топливо, опускаясь вниз по мере его сгорания. Таким образом, топливо выгорает медленно и равномерно до самого дна.
- Во время работы печи выделяется горючий газ, который находится под поверхностью воздухораспределителя. Благодаря ему эффективность конструкции увеличивается на 30%.
Преимущества и недостатки духовки бубафон
Перед тем, как сделать печь из бубафона своими руками, необходимо определиться с достоинствами и недостатками данной конструкции.К положительным моментам можно отнести:
- Исключительная простота конструкции. Это, пожалуй, самый простой вариант котла длительного горения, который может изготовить любой домашний умелец, имеющий под рукой металлическую бочку, сварочный аппарат и несколько труб.
- Конструкция «всеядна» и может работать практически на любом виде топлива. Сюда входят дрова, уголь, стружка, опилки и другие изделия из дерева.
- Длительное горение. Чем больше будет конструкция по размерам, тем дольше она будет гореть.На процесс сгорания также влияет тип используемого топлива и количество кислорода (регулируется заслонкой). Таким образом, на сжигание одной загрузки топлива может уйти около суток, что является очень хорошим результатом для самодельной печи.
Эта конструкция также имеет свои недостатки, которые заключаются в следующем:
- Низкий КПД , что определяется спецификой конструкции. Дело в том, что в процессе эксплуатации нагревается не вся площадь конструкции.
- Неудобный процесс золоудаления … Отсутствие зольника требует удаления золы через крышку.
Совет! Усовершенствовать конструкцию можно, установив решетку и специальную дверцу, которая предназначена для очистки от золы и находится внизу корпуса.
- Сделана из бочки или бака, поэтому печь имеет не очень привлекательный внешний вид … Однако его можно улучшить, просто покрыв готовую конструкцию краской.
Что нужно для производства?
Сделать такую конструкцию своими руками несложно при грамотном подходе.В базовом исполнении печь лишена воздуходувки, решетки и дверок, поэтому процесс ее изготовления не должен вызывать затруднений у человека, умеющего пользоваться сварочным аппаратом.
На видео показан процесс изготовления печи Бубафоня из газового баллона
Для работы необходимы следующие материалы и инструменты:
- Металлическая бочка объемом 200 литров имеет оптимальные размеры для изготовления корпуса. Газовый баллон — тоже хороший вариант.Возможен также вариант с трубой большего диаметра.
Совет! Поскольку бочки имеют относительно тонкие стенки, они не подходят для духовок с высокой интенсивностью приготовления. При постоянном использовании стена такой конструкции выгорит за два-три сезона. Поэтому для дачных домов оптимальна бочковая печь, для частных домов лучше остановиться на трубах или газовом баллоне.
- Труба для оборудования дымохода.
- Трубка, по которой воздух будет подаваться в камеру сгорания.
- Листы металлические.
- Угловая шлифовальная машина.
- Сварочный аппарат.
Технологические особенности
А теперь разберемся, как сделать такую печь своими руками:
- Используя « болгарка », необходимо отрезать колпачок от ствола или цилиндра. Впоследствии верхняя часть топки будет сделана из крышки.
- По краю срезанной крышки необходимо приварить бортик шириной 20-30 мм.
Совет! Используя газовый баллон в качестве корпуса печи, можно увеличить ее объем, приварив часть другого баллона. Увеличивая камеру сгорания, можно добиться увеличения продолжительности горения котла.
- Воздуховод должен иметь диаметр примерно 90–100 мм. Такая конструкция должна быть длиной около 120 см.
- Делаем каблук «. Необходимо взять лист металла размером примерно 50 на 50 см.«Каблук» нужно делать диаметром на 40-50 мм меньше тела конструкции. Для правильного воздухообмена необходимо в центре листа сделать круглое отверстие чуть больше диаметра трубы. С нижней стороны приварены несколько ребер наподобие лопаток. Именно благодаря им будет образовываться воздушный зазор, необходимый для равномерного сгорания топлива.
- Поршень в сборе. К пятке приваривается патрубок подачи воздуха так, чтобы ребра были внизу. В верхней части трубы необходимо вырезать отверстие, куда впоследствии устанавливают дверцу для регулирования объема поступающего воздуха.Для крепления демпфера к трубе необходимо приварить болт, резьба которого будет использоваться как петля.
Важно! Для правильной работы печи необходимо учитывать следующие моменты: крышка не плотно прилегает к корпусу, труба не плотно касается отверстия, сделанного в крышке (оно должно быть на 5 мм шире своего диаметра. ). Такие прорези создадут дополнительную тягу. Если эти детали будут плотно прилегать друг к другу, печь может начать дымить.
Как обустроить дымоход?
Дымоход необходим для любой печи, установленной в помещении, так как через нее будут выводиться продукты горения. Также благодаря дымоходу создается необходимая тяга.
Для правильного функционирования конструкции необходимо подготовить два участка трубы диаметром 200-250 мм:
- Первый из них делают длиной около 400 мм, вставляют горизонтально в верхнюю часть корпуса, а затем заваривают.
- Вторая секция — главный дымоход, соединенный с предыдущим под углом 90 градусов.
Фонд
Для устройства такой печи желательно залить специальный фундамент. Делается это в несколько этапов:
- Выкапывается яма размером 150 на 150 см, глубиной около 30 см.
- В котлован насыпают щебень и заливают бетонный раствор.
- После застывания бетона основание облицовывают 2 рядами огнеупорного кирпича.
Важно! Обязательно используйте спиртовой уровень, чтобы выровнять базу! Следует избегать склонов.
Бубафоня с водяной рубашкой
Эту печь с успехом можно использовать для воздушного отопления помещения, но это еще не конец ее возможностей. Также существует версия с водяным контуром, которая имеет больше возможностей по сравнению с обычной версией.
Самый простой — взять бочку большего диаметра, в которую помещается конструкция печи.Именно в емкости большего размера будет нагреваться теплоноситель.
Важно! Если в комнате есть система отопления, то к ней можно подключить такую духовку. Затем теплоноситель будет перегоняться из водяного контура в контур отопления с помощью циркуляционного насоса. При этом в верхней части конструкции имеется выход для корма, а в нижней — возврат.
Заключение
Бубафоня — простая в изготовлении и надежная печь длительного горения.Его можно изготовить практически из подручных средств, а сам процесс изготовления без проблем освоит любой домашний мастер.
Бабатана: печь длительного горения
Невозможно добиться комфортного микроклимата в доме зимой, если не продумана грамотная система отопления. Хорошие обогреватели — удовольствие недешевое. Также стоит отметить, что из-за постоянно растущих тарифов на электроэнергию отопительные приборы питаться от сети просто неэкономично.Хорошее решение для отопления в частных домах — отличный рубатон, который довольно легко сделать своими руками. Его особенность заключается в том, что при минимальных затратах топлива Бабатана из газового баллона способна обогреть очень большую площадь. Он очень нравится тем, кто умеет и любит экономить.
Те, кто хоть немного знаком с физикой, знают: при нагревании теплый воздух поднимается вверх, а холод остается вниз. На этом физическом законе основан принцип работы устройства.Топливо нагревает воздух, который поднимается и опускается в специальной выпускной трубе. Холодный воздух через специальную впускную трубку, попадая внутрь и повторно нагретый, попадает в выводную трубу. Таким образом, не только сжигание топлива, но и циркуляция воздуха. Интенсивность горения и, следовательно, температуру можно регулировать с помощью специального клапана, который находится на впускном патрубке.
Работа печи Бабатана прекращается только после полного сжигания дров и опускания поршня с грузом на дно емкости с горючим.Если огонь нужно принудительно потушить, достаточно, чтобы перекрыть доступ кислорода. Для этого закройте вентиль на напорном патрубке. Также можно использовать воду для тушения пламени.
Рабочая печь Бабатана имеет следующие преимущества:
- Дрова в топке Бабатана горят долго.
- Для изготовления такой конструкции не требуется специальных инструментов.
- Корпус довольно легкий.
- Выпечка Бабатана обладает уникальной способностью при минимальном расходе топлива, хорошо обогревает помещение.
- Babatana высокомобильная конструкция, которую можно легко перемещать куда угодно
Недостатки печи Бабатана:
- Эксплуатация возможна только в помещении с хорошей вентиляцией.
- После того, как пламя погасло, корпус очень быстро остывает.
Перед тем, как приступить к изготовлению печи Перед своими руками, необходимо правильно оборудовать рабочее место. Оптимальный вариант — проводить все мероприятия на свежем воздухе в более теплое время года.Единственное, что нужно помнить, доступ к электричеству должен быть бесплатным и комфортным. Если вы не можете находиться на улице, хорошим местом для работы может стать подсобное помещение или гараж. Также нужно подготовить необходимые инструменты и материалы. Обязательно подготовьте чертежи печи бабатана размеров.
Для того, чтобы выпекать Бабатану без особых усилий потребуются следующие материалы и инструменты:
- Ствол железный, цилиндрической формы, достаточно большой;
- металлический швеллер;
- болторез или угловая шлифовальная машина;
- две отрезанные стальные трубы;
- сварочный аппарат; Фольга
- ;
- молоток или кувалда;
- огнеупорных кирпичей и немного цементного раствора для их установки;
- уровень;
- вытяжная печь Бабатана.
После подготовки рабочего места и материалов наступает момент, когда можно приступать непосредственно к сборке печи Бабатана. Независимо от того, менять утеплитель свое расположение или нет, требуется строительство фундамента.
Внимание! Фундамент не только помогает установить обогреватель в нужное положение, но и является важной мерой пожарной безопасности.
Развитие фундамента ↑
Чтобы основание под печь Бабатана было прочным и долговечным, в его конструкции следует использовать только огнеупорный кирпич.Форма в данном случае значения не имеет, главное, чтобы материал был целым.
Чтобы лучше понять, как сделать фундамент, рассмотрим наглядный пример сооружения фундамента под печь Бабатана объемом около 200 литров.
Перед тем, как приступить к выкладке стен подвала, нужно сделать небольшое углубление, около 20 см. Периметр котлована составляет 4 метра (по одному метру с каждой стороны). В итоге должен получиться квадрат с равными сторонами.
Духовка может быть изготовлена из любого контейнера, чаще всего из газового баллона Buburone.Приготовьте баллон с газом цилиндрической формы или трубку нужного диаметра. Если вы использовали кусок трубы, то один край нужно заварить одной рукой прикрыть из листового металла.
Если у бочки или газового баллона, то в данном случае, напротив, аккуратно вырезаем дно. Затем из листового металла вырезается круг диаметром чуть меньше диаметра ствола или газового баллона. В середине круга болгаркой вырежьте отверстие такого размера, чтобы в него можно было приварить подводящую трубу.Он предназначен для того, чтобы внутрь топливного бака попал кислород.
Края окружности приварены закладным металлическим швеллером. Делать это нужно так, чтобы в результате получился крест. Такая конструкция позволит равномерно распределить топливо по топке, а также обеспечить доступ к необходимому количеству кислорода.
Завершающим этапом строительства основной части печи Бабатана является изготовление крышки. Для этого обрежьте дно так, чтобы диаметр отверстия совпадал с диаметром ведущей трубы.
Подготовка ям для дров и золы ↑
Также важно подготовить специальное место в печи Бабатана, где можно будет достать дрова или другой топливный материал. Для этого установите обогреватель в рабочее положение и на расстоянии чуть ниже середины на боковой стенке сделайте отметку, по которой будет вырезано отверстие.
Совет! Наиболее подходящие размеры для этого должны быть порядка тридцати дюймов в ширину и в высоту. Как показывает практика, эти настройки позволяют закидывать дрова практически любого размера.
Чуть ниже дров должно быть специальное место, через которое печь Бабатана можно будет очистить от продуктов горения: золы и золы. Этот принцип устройства очень похож на печную печь. Если есть возможность и желание, оба отверстия на боковой стенке можно закрыть дверцами. Он придаст духовке Бабатана эстетичный вид и предотвратит потерю горящих углей или растопки. Очень важно установить на двери специальные зажимы, позволяющие надежно удерживать их в закрытом положении.
Оборудование дымохода ↑
Чтобы избежать деформации кожуха из-за избытка дыма, нужно смонтировать дымоход, заранее подготовленный для этого места. Примерно в 20 см от наивысшей точки печи Бабатана, следуя схеме под ней, вырежьте отверстие для дымохода. Диаметр отверстия и режущие работы должны быть одинаковыми.
Очень важно, чтобы дымоход имел колено. Для того, чтобы его смонтировать, потребуется два разреза. Один длиннее у прямостоячий.К нему под углом и приварили кусок поменьше.
Важно! Самая маленькая труба должна быть не длиннее 45 см, иначе с дымом будут проблемы.
Труба сварная под углом 45 °. Необходимо следить за тем, чтобы края обеих частей плотно соприкасались друг с другом. Только после того, как вы проверили все параметры, трубы можно сваривать. Более длинная вертикально расположенная труба должна выходить через крышу. Если длины не хватает, всегда есть возможность добавить метод сварки в один из пропилов.Отверстие в потолке, через которое дымоход выходит на крышу, обязательно покрывают огнеупорной глиной.
Если дымоход должен выходить через окно, труба должна располагаться не вертикально, а в горизонтальном положении. В этом случае нужно помнить, что дым будет выходить намного медленнее.
Совет! Печь длительного горения Бабатана стремится очень сильно нагреться, особенно если процесс горения происходит непрерывно. Поэтому очень желательно вокруг печи Бабатана расположить отражатели.Для этого фольга загибается под дном печи и по периметру.
Для растопки печи Перед тем, как использовать разные сорта древесины или продукцию деревообрабатывающей промышленности (опилки, пеллеты и т. Д.), Главное следить за качеством материала. Древесина должна быть хорошо просушена, так как это напрямую зависит от производительности агрегата. Дрова, которые вы кладете в резервуар, тщательно утрамбовывайте и растопите. Чтобы процедура розжига произошла как можно скорее, можно добавить в бак немного ткани или бумаги.
После того, как дрова начали гореть, следует плотно закрыть крышку топки Бабатана и дать пламени разгореться в полную силу. Только после этого интенсивность пламени можно регулировать с помощью заслонки.
На видео показаны результаты экспериментов по использованию различных видов топлива для печи.
Использовать духовку Бабатана было достаточно удобно и эффективно, чтобы запомнить несколько простых советов:
- Дымоход лучше сделать разборным.Так будет легче чистить;
- после установки каменки для обогрева древесиной разной влажности. Так вы сможете узнать оптимальное количество топлива при разной интенсивности горения;
- не забывайте проверять состояние печи Бабатана во время эксплуатации;
- в целях пожарной безопасности поместите устройство рядом с огнетушителем или ящиком с песком.
Отопительный духовой шкаф Rubatone — это простой и легкий способ быстро обогреть дом с минимальными затратами топлива.Установить печь бабатана длительного горения своими руками возможно, главное — соблюдать рекомендации специалистов и последовательность этапов сборки.
Как сделать печь перед своими руками для теплицы, узнайте в следующем видео.
Связанные с контентом
Печь для теплицы — как построить своими руками
Отличным вариантом будет изготовление тепличной отопительной печи, способной поддерживать оптимальную температуру для комфортного роста растений.Как построить парниковую печь своими руками, рассмотрим далее.
Состав:
- Общая концепция устройства и печи для теплицы
- Разновидности печи длительного горения для теплицы
- Изготовление печи для теплицы
- Кирпичная печь длительного горения для производственных теплиц
- Печь для теплиц из двух металлических бочек
- печь, работающая на отработанном масле своими руками
- конструкция типовой печи теплицы
общая концепция и агрегат печи теплицы
процесс обогрева теплицы достаточно сложен, так как растения требуют постоянного равномерного тепла.Возможны несколько вариантов установки тепличного отопления:
- биологический,
- электрический,
- воздушный,
- газовый,
- топочный.
рассмотрим последний вариант. Обогрев теплицы с помощью печи достаточно экономичен и позволяет использовать различные виды топлива. Печи
для обогрева теплицы способны работать на природном газе, дровах, угле, пеллетах и т. Д. Недостаток печного отопления — быстрый нагрев печи, что приводит к пересушиванию воздуха.Поэтому в процессе обогрева теплицы рекомендуется использовать печь бурелян, ее стены не подвергаются нагреву, она надежна и удобна в эксплуатации.Разновидности печи длительного горения для теплицы
1. Печь бурелян можно использовать как тепличное отопительное оборудование. Данный агрегат является конвектором, он практически не отапливается и работает на дровах. Принцип действия
:
- тепловое излучение,
- теплопередача,
- конвекция.
Внешний вид печи напоминает бочку, в которой размещена двухъярусная печь. Вокруг нее расположены трубы изогнутой формы, количество зависит от их теплопроизводительности. В состав печи
Буреляна также входят: дверца
- , через которую происходит загрузка топлива, заслонка дымовая
- , тяговое устройство
- регулирования.
В процессе загрузки топлива происходит его постепенное разложение, и газ, который образуется в процессе, циркулирует по трубам и нагревает помещение.
2. Еще одним устройством, которое также используется в процессе обогрева теплицы, является печь Бутакова, которая по принципу работы практически не отличается от печи Бурелян. Только здесь она имеет корпус в виде параллелепипеда. в котором находится система подачи топлива и патрубок, по которому циркулирует воздух. Печь Бутакова также включает наличие:
заслонки- , дымохода
- , золы
- , которой нет на топке Буреляна.
3.Другой вариант — печь-печь длительного горения Бубафоня. Это устройство довольно легко построить самостоятельно, в отличие от предыдущих версий. Духовка Буфафоня состоит из части корпуса, которая используется как газовый баллон или бочка. В корпусной части находится дверца, которая закладываем топливо. Нижняя часть снабжена зольником. Процесс гниения происходит из-за наличия постоянного давления, которое осуществляется за счет веса металлической конструкции.
4. Слобожанка печь или плита супер — лучший вариант обогрева теплицы.В его состав входят: камера сгорания
- , конвекционная рубашка
- , два канала подачи и распределения кислорода
- , дополнительные компоненты
- , их количество зависит от индивидуальных обстоятельств и характеристик тепла.
Топка «Слобожанка» отличается верхней камерой заправки топливом и подачей кислорода, которая осуществляется снизу.
Различают несколько видов горения:
Слобожанские печи различаются по принципу работы:
- устройство с наличием Г-образной трубы, подающей воздух в топку;
- прибор с центральной подачей воздуха;
- Аппарат с нижней боковой подачей воздуха.
Эта печь может работать как на обычной древесине, так и на других альтернативных видах топлива, таких как пеллеты, куски и т. Д.
Изготовление печей для теплиц длительного горения
Печи длительного горения, разработка в теплице для минимизации вмешательство человека в процесс нагрева. Принцип его действия основан на процессе разложения топлива, поэтому, однажды загрузив топливо в печь, вы можете оставить ее на нетокорое время. При тлеющем сгорании топливо постепенно выделяет гораздо больше тепла, чем при горении.
Обычные печи не дают возможности обеспечить продолжительность горения, так как имеют свободный доступ к системе отвода кислорода и газа. Активная тяга дымовой трубы способствует процессу горения. Следовательно, сила тяги зависит от скорости горения. Печь большой продолжительностью горения отличается горением и высоким тепловым КПД. Если ее конструкция полностью заправлена топливом, то она проработает без вмешательства человека более десяти часов.
Воздух поступает в топку длительными порциями горения, он управляет подающим механизмом регулирования мощности.При полном сгорании дров в топной топке перекрывается специальное отверстие, через которое поступает кислород. За счет того, что воздух в печи практически не ослабляет тягу, не происходит.
При разложении выделяется много дымовых газов, которые находятся над камерой сжигания печи. Этот газ способствует выделению тепла. Конструкция печи позволяет эффективно использовать топливо длительного горения.
Для обеспечения максимальной эффективности печь должна быть заправлена топливом почти полностью.
Для отопления можно использовать: древесный уголь
- , уголь
- , торфяные брикеты
- .
Использование антрацитового угля из-за возможного выгорания корпуса печи.
Основные преимущества печи непрерывного горения:
- долгий срок службы,
- отсутствие необходимости постоянного вмешательства в рабочий процесс,
- высокая температура нагрева, при небольшом расходе топлива.
Рассмотрим случай обогрева теплицы с использованием подпорок, сделанных в собственной дровяной печи.
для своего строительства требует наличия:
- металлических бочек на 200 литров,
- металлических порогов,
- стальных труб.
1. Верхняя часть ствола обламывается, а образовавшиеся острые кромки совмещаются.
2. Затем разрежьте трубку на место под крышкой барабана и прикрепите канал.
3. К верхней части ствола приваривается отрезок трубы, который будет служить дымоходом.
4. Центральная часть крышки должна быть соединена между собой трубкой меньшего диаметра, которая будет действовать как устройство, через которое поступает воздух.
5. Следующий шаг — изготовление крышки под стволом. В крышке должно быть отверстие для входа в трубу.
6. Подсоедините духовку и колпак дымохода.
7. Проверить работоспособность устройства. Для этого залить дровами треть топки, произвести монтаж труб для подачи воздуха и разжечь топку.
8. Стандартный цикл горения составляет около 8 часов. В случае, если ствол полностью заполнен древесиной, он может работать без вмешательства человека около трех дней.
Изготовление кирпичной печи для теплицы
Для обеспечения надежного обогрева теплицы дровами необходимо построить кирпичную печь с кабаном, которая за счет максимального подъема обеспечит отличную тягу.
материалы для изготовления кирпичной печи:
- несколько металлических труб,
- две стальные пластины могут быть использованы пластины от старой печи,
- около 450 кирпичей.
Строительство печи возведение начинается с фундамента, желательно сделать его монолитным.Для его изготовления используйте цементный раствор.
В конструкции топки в верхней части вмуруйте две стальные трубы, по которым будет осуществляться циркуляция воздуха.
Над топочной частью топки находится резервуар, в котором находится вода. Наличие резервуара поможет избежать пересушивания воздуха. Начните кладку кирпичей по периметру топки. Для этого используйте цементный или глиняный раствор.
Проделайте отверстие, через которое проделывают зольную очистку каналов.
духовка теплицы из двух металлических бочек
материалов для:
- двух металлических бочек по 200 литров;
- труба стальная с 1,6;
- небольшая часть клапана или стальные полосы.
Этот духовой шкаф выглядит как обычный контейнер, который закрывается крышкой. Внутри он разделен металлической перегородкой, нижней частью напольной дверцы, а также имеет ножку и верх, соединенные с камин.
Возможен вариантс использованием только одного ствола, но в этом случае работать придется дольше.
Инструкция по изготовлению печей для теплиц:
1. Вырежьте верхнюю часть первой бочки и вставьте ее в дымовую трубу.
2. Внизу вырезано отверстие диаметром равным 10 см.
3. Возьмите вторую бочку и разрежьте ее на две равные части, одна из которых будет равна 25 см.
4. Данную деталь нужно обработать, чтобы установить дверной проем и в которую нужно заливать топливо.
5. Используя арматуру или стальные полосы, изготовьте и приварите опоры.
6. С помощью сварочного аппарата подключить печь к дымоходу и топке. Следующие соединения должны быть качественными.
7. Сделайте крышку из материала, оставшегося от второй бочки.
8. Присоедините духовку и проверьте ее работоспособность.
Для загрузки печи необходимо изготовить специальный инструмент конической формы с верхней частью 15 см. Этот инструмент устанавливают в топку перед загрузкой топлива. Эта печь работает на опилках, поэтому их следует аккуратно поместить в топку.Не загружайте духовку полностью, достаточно заполнить третью часть.
После того, как топливо будет в печи, конус следует снять. В отверстие, которое образовалось в результате размещения в топке конуса, нужно залить стружку и поджечь ее. , закройте крышку топки. Данная печь способна обогревать теплицу более двух суток и не требует вмешательства человека в процесс обогрева.
Для защиты от пожара в теплице возможен вариант изготовления дополнительного элемента возле крышки топки, это так называемый затвор, который засыпается обычным песком.Таким образом, даже при сильном сгорании песок обеспечивает пожарную безопасность.
Если второй бочонок не вариант изготовления печи только один бочонок. В этом случае отдельный топочный агрегат и подающий дрова должны располагаться в одном бочонке. Это приведет к некоторым неудобствам, но не повлияет на качество работы. .
печь на отработанном масле своими руками
Если рядом есть станции, то отличным вариантом будет изготовление печи, которая утеплит теплицу на отработанном моторном масле.
Эта печь имеет:
- дымоход,
- отверстия для заливки масла,
- заслонку — контроль горения,
- масляный бак.
Эта печь также используется для нагрева воды или приготовления пищи, поскольку ее верхняя часть сильно нагревается.
для использования по схеме изготовления:
использовать как дымоходную трубу, которая должна располагаться вертикально.
Принцип работы такой печи:
- заливка отработанного масла, количество 2.Емкость 5-3 литра;
- фильтр поджога, который сделан из бумаги, и установлен печкой в яме;
- крышка для открывания створки так, чтобы отверстие было 1-2 см;
- после розжига топливного клапана регулируется уровень его сгорания;
- в течение пяти минут печь начнет стандартную работу и нагрев;
- Регулировка печи происходит через заливку масла и регулировку положения заслонки.
такую печь можно подключить к водяному отопительному контуру.Его мощность позволяет это.
Конструкция типовых топок для теплиц
Основными элементами такой конструкции выступает: топливный отсек
- , днище
- , зольник
- , дымоход
- , крышка
- , питатель топлива
В качестве топлива можно использовать щепу, мелкую древесину или опилки. Количество топлива должно быть в три раза меньше емкости печи.
Для изготовления такой печи необходимо выполнить следующие действия:
1.Возьмем отрезок стальной трубы диаметром 400 мм, он будет служить топливным баком. Другой отрезок диаметром 100 мм — это дымоход.
2. Затем приготовьте кусок жести толщиной не менее 0,5 см.
3. Производственный процесс включает вырезание отверстия топливного бака в верхней части трубы диаметром, равным диаметру дымохода. Достижение дна печи. Для этого с помощью болгарки врезается нижний диаметр отверстия печи, такой как топка.Этот процесс включает в себя маркировку продукта и предварительные измерения печи.
4. Разрезать по длине в трубу диаметром 1 см, количество линий около пятидесяти. Приварить трубу ко дну печи.
5. Из листового металла приступили к изготовлению крышки, она должна очень плотно надевать трубку. В крышке должно быть отверстие для подачи кислорода.
6. Для установки дымоход необходимо присоединить к трубе с помощью хомута, а затем приварить трубу к печи.
7. Надеть входной патрубок дымохода, проследить за герметизацией швов.
8. Установите духовку на опорный элемент из стального профиля. Обратите внимание, что плита очень горячая, поэтому не ставьте ее близко к растениям.
Устройство самодельной печи длительного горения, изготовления «Бубафони» своими руками и особенности отопительной печи теплицы на дровах
Урожай урожая зависит от погодных условий, особенно от температуры в теплице. В регионах с суровым климатом для своевременного сбора урожая строят специальные конструкции, теплицы с подогревом.Их размер и количество зависят от площади теплицы. Поскольку нагреватели будут эксплуатироваться долгое время, это требует значительных материальных затрат на оборудование. Следовательно, вырастет и стоимость урожая.
Виды отопления и типы печей
Теплицы отапливаются несколькими способами:
- биологический;
- электрический;
- воздух;
- газ;
- плита.
Печное отопление — наиболее экономичный вариант отопления, позволяющий использовать большинство видов топлива.Они могут работать с древесиной, углем, газом и даже с гранулами.
Печное отопление имеет один существенный недостаток — пересушивание воздуха из-за быстрого нагрева оборудования.
- Топка печная на опилках, являющихся отходами деревообрабатывающих предприятий. Поэтому покупка этого топлива не требует больших затрат. Для постройки печки на опилках потребуется приобрести бочку из жести, лучше пару бочек, газовые баллоны и отрезок трубы.
- Печь на отработанном масле — отопительный экономичный вариант длительного горения.При отработке любое масло переработано с автопарка, поэтому сотрудники автопарка с радостью поделятся своим маслом.
- Для обогрева теплиц в холодное время года используются топочные печи, обеспечивающие хороший обогрев.
- Кирпичная отопительная печь Кузнецова вызывает особый интерес у садоводов своим высоким КПД (80%). Однако кожух печи должен изолировать базальтовый кирпич.
- Чудо-печь Местная — идеальное решение для тепличного пространства, где нет подключения к системе центрального отопления.Печь используется как дополнительный и как основной источник тепла.
Существует множество типов печей для обогрева теплиц, которые отличаются друг от друга:
- принцип теплопередачи;
- конвекция;
- радиация;
- основные и дополнительные детали;
- камера сгорания;
- трубки для подачи воздуха.
Схема и установка конкретной печи разрешается проводить только после изучения всех деталей процесса нагрева.Вы должны знать, что печи для больших теплиц и маленьких различаются порядовкой.
варианты топлива
Тепличное отопление предполагает использование различных видов топлива. Доступное топливо — дрова. Конструировать дровяное оборудование не составляет большого труда. Печь на дровах возможна для обогрева и длительного горения. Для небольших теплиц будет достаточно загружать топливо каждый день.
Древесный уголь можно использовать для лучшего нагрева , его главное достоинство — высокая калорийность, а недостатки — много отходов: золы, пыли.А также при сжигании угля в атмосферу выделяются вредные и токсичные газы, а некоторые виды угля могут самовоспламеняться даже при несоблюдении условий хранения.
В последнее время в качестве топочного топлива используются опилки. Печь, в которой вырабатывают тепло, относится к конструкции длительного горения. Качественное отопление сопровождается небольшим дымом. Такой вариант печи несложно выполнить самостоятельно. Печь имеет довольно высокий КПД.
Тепличные конструкции также можно отапливать с помощью печей, которые используются в качестве топливных брикетов. Такое топливо по сравнению с углем или древесиной имеет лучшие характеристики, например, меньше дыма, быстрое накопление и отсутствие вредного воздействия на воздух. Использование топливных брикетов позволяет избежать искрообразования и длительного горения — поддерживать необходимую температуру. Печь такого типа отличается высокой топливной экономичностью, экологичностью и экономичностью.
Некоторые огородники использовали в качестве жидкого топлива. Но для обогрева он не подходит из-за токсичности и дороговизны.
Оптимальный выбор
Оптимальным вариантом обогрева теплицы является установка печи буржуйки, которая считается наиболее экономичной и простой в эксплуатации.Обогреватель состоит из бочки с дверцей для топки, дымовых труб для вывода тепла наружу вверху.
Нагревание осуществляется перемещением дыма:
- Перемещая трубу горячего дыма, труба монтируется либо по бокам теплицы, либо посередине.
- Поверхность печи излучает тепло.
- Сверху образуется перемычка и теплый воздух выходит через трубу.
В качестве топлива можно использовать древесные отходы, уголь или дрова.От качества горения зависит вид топлива и проникновение воздуха в топочное пространство топки. Этот способ нагрева подходит тем, кто часто может контролировать процесс горения. Это единственный недостаток печки.
У печей длительного горения этот недостаток выгоден: в них закладывать топливо гораздо реже. Они также потребляют меньше топлива и уменьшают нагрев стенок топки без снижения теплопередачи. По характеристикам они очень похожи на инфракрасные обогреватели.
Печь непрерывного горения имеет две камеры, одна из которых полностью сжигает остаточное топливо, а другая — только основную часть. доступ кислорода в камеру ограничен, в результате чего топливо расходуется не сразу, а долго тлеет с выделением большого количества тепла.
В качестве топлива для печи непрерывного горения можно использовать различные бытовые отходы, но без ущерба для установки. Постоянная температура в тепличном помещении обеспечивает необходимые условия для роста растений.
Однако перед установкой печи необходимо учесть множество факторов.
Дизайн под дерево в центре: плюсы и минусы
Центральная деревянная конструкция из металла или кирпичной кладки. Чем больше теплица, тем больше конструкция печи. Ее назвали центром потребности в помещении в середине теплицы, что позволяет оптимально распределять тепло по всей площади тепличного хозяйства.
Эта конструкция работает по дереву, поэтому для работы не требуются специальные инструменты.
Центральная дровяная печь имеет немалое количество недостатков.
- Частый полив и постоянное увлажнение воздуха в теплице. За счет быстрого высыхания воздуха, а значит и почвы. Некоторые культуры не переносят такой климат в теплице. Установка бочек с водой рядом с топкой позволит немного компенсировать этот недостаток.
- Еще один важный момент — неравномерное распределение горячего воздуха по всей площади тепличного пространства.Самая высокая температура будет поддерживаться у плиты, и чем дальше растения, тем холоднее будет воздух. В результате некоторые растения по периметру подмерзают. Это следует учитывать, если теплица большая и высокий потолок.
Выровняйте температуру с помощью длинных индукционных ламп. Устраивают в самых удаленных частях теплицы. А также нагревательный инфракрасный обогреватель сохранит культуру. Такой вариант для теплиц с низкими потолками не подходит: необходимо остановить свой выбор на дровяной печи или индукционных лампах.Если выбрана духовка, ее необходимо установить рядом с небольшим вентилятором для рассеивания тепла.
Бубафоня
Печи печиимеют небольшой КПД и частую необходимость дозаправки топлива. Мастер Бубафоня придумал самодельную конструкцию, отличающуюся принципом горения.
Характеристики и комплектация
Основное отличие печи Бубафони — верхняя забираемая воздушная масса, что дает такие положительные свойства как:
- более длительное сгорание топлива;
- нет необходимости в частой загрузке печи;
- лучше удерживает тепло;
- эффективность, потому что такая печь может быть изготовлена из легкодоступных материалов: железа или металлических бочек; В качестве топлива можно использовать не только древесину, но и доски, щепки, картон или стружку.Как и духовка Бубафоня работает автономно, то есть без использования электроэнергии.
Есть и недостатки этой конструкции:
- внешне выглядит непрезентабельно;
- средняя теплоотдача;
- образование нагара на стенках печи;
- конденсат, который зимой замерзает и перекрывает основную трубу;
- во время забора воздуха иногда происходит возгорание из воздуховода;
- При установке печки нужно позаботиться о вентиляции в теплице.
Для изготовления бубафоню своими руками необходимо знать устройство и принцип работы печи. Воздух поступает через верхнюю трубку, и топливо начинает гореть. Сгорая, зола накапливается на поверхности топлива и препятствует его возгоранию. Из-за этого нужно позаботиться об установке носителя в виде металлического блина с диаметром бочки чуть меньше. В среднем блинчике просверливаем отверстие под трубку с кислородом.
Топливо сгорает, пресс опускается, удаляя золу и перегородку между блинами.Такая зола остывает и уходит через дымоход вместе с другими продуктами сгорания.
изготовление
Изучив чертежи и схему печи, осознав принцип работы, можно сделать своими руками Бубафоню. Важный момент — выбор судна. В качестве трубы большого диаметра может использоваться баллон, пустой газовый баллон.
Как бы то ни было, нужно закончить строительство:
- избавиться от колпачка;
- для получения емкости с открытым верхом необходимо сделать дно;
- Подготовительный пресс: подходит для этого круга металлического листа;
- Центральный для просверливания отверстия под трубу и соединения трубы сваркой;
- для покрытия также приварной трубы большего диаметра, чтобы первая труба могла свободно скользить;
- для создания зазора, чтобы воздух проходил между поверхностью и топливопроводом, чтобы закрепить профиль металла;
- дверца печи для производства листового железа и приставки;
- верхняя емкость, чтобы проделать отверстие для дымохода и присоединенной трубы; Сделайте
- ножки для печки, если днище не «стоит».»
При изготовлении дымохода необходимо учитывать необходимость создания сопротивления, которое будет нагревать дольше задержки.
Перед установкой печи необходимо сделать фундаментный кирпич и подложку из стального оцинкованного листа. Это поможет избежать нагрева дна печи, что приведет к гибели близкорастущих культур. Фундамент также сохраняет и распределяет тепло.
После установки печи необходимо обложить кирпич для увеличения теплоотдачи.
Булерьян: отличительные особенности
Булерьян — печь длительного горения очень похожа на буржуйку. Также воздух нагревается трубами горячего дыма по периметру теплицы, тоже нагреваясь. В отличие от буржуйки, воздух булерьян все равно нагревается: прохладный воздух попадает в нижнее отверстие корпуса трубы и начинает прогревать камеру сгорания, где находятся соседние трубы. В результате прохладный воздух нагревается до 60 градусов и выходит через верхнее отверстие.Топливо для топки: дрова, уголь, пеллеты, отходы пиломатериалов.
Булерьян, в отличие от буржуйки, имеет ряд преимуществ.
- Повышенный КПД дымовых газов дожигания. В результате расходуется меньше топлива и больше тепла.
- Полное сгорание топлива.
- Залив Булерьян, он может работать три дня, что значительно облегчает работу садовника. Для людей, которые не могут каждый день закладывать топливо, это отличный вариант. №
Булерьян часто называют конструкцией без изъянов, но все же есть один недостаток, не связанный с конструкцией печи, характеристиками и эффективностью: подбор коррозионных компонентов, не подвергающихся вторичной переработке.
Первоначально использовали булерьянских канадских лесорубов, которым часто приходилось вести кочевой образ жизни. Поэтому печь должна была обеспечить сохранность и быстро обогревать помещение.
Для быстрого обогрева теплиц, необходимого для поддержания непрерывного процесса горения Однако Булерьян работает в основном в режиме гниения. При постоянном интенсивном горении металлические поверхности печи вскоре загорелись.
сухих стружек, картона, бумаги для обжиговой печи. Главное — чтобы они сохли и быстро пригорали.За процессом горения следят через стеклянную дверцу или заслонку. Когда топливо превращается в древесный уголь, снова подкидывают топливо. Нельзя использовать уголь в качестве топлива, так как Булерьян — дровяная печь. Для еще большего обогрева теплицы потребуется много времени.
Категорически запрещается доводить топку до сверхвысокой температуры. Во-первых, обгорает поверхность металла, во-вторых, наружу будет выделяться излишнее тепло, так как теплопроводность труб ограничена, в результате чего лишнее тепло не передается воздуху.Также в качестве топлива не рекомендуется кокс — это приведет к выходу устройства из строя.
При установке Булерьяна нужно придерживаться правил противопожарной защиты. Устанавливается на негорючую поверхность печи, например, на кирпич, кладется ровно или на металлическую подставку.
При изготовлении духового шкафа своими руками важный элемент дымохода соответствует требованиям:
- Материал дымохода: кирпич, бетон, металл;
- Параметры дымохода.
К установке печи Бурелян не составит труда подготовить достаточно места, сделано хорошо, и в дымоходе можно начать нагревание.
О типах и характеристиках печей для теплицы смотрите в следующем видео.
Запрещается использование любого контента без нашего предварительного письменного согласия.
Уфимка своими руками из газового баллона. Как сделать буржуйку из газового баллона? Двери буржуйки
Если вы обратите внимание, сколько стоит чугунная или стальная печь на дровах, то быстро поймете, что покупка ее для обогрева гаража или дачи с теплицей не всегда оправдана.Более доступный вариант — буржуйка из газового баллона длительного горения, сделанная своими руками или сваренная мастером на заказ по вашим чертежам. Наша цель — помочь с выбором дизайна, описать технологию изготовления буржуйки и ее монтажа, вплоть до устройства дымохода.
Подбираем конструкцию дровяной печи
Устаревшее и неэффективное отопительное оборудование постепенно уходит в прошлое, что сказывается на самодельных плитах.В наше время никому не нужны примитивные железные ящики с трубой и дверцами, пожирающие дрова без хорошего теплоотвода. Современная буржуйка должна быть экономной и хорошо обогревать помещение. Поэтому передовые мастера постоянно работают над улучшением сталеплавильных печей.
Для наиболее эффективной работы дровяного обогревателя необходимо решить 2 вопроса: как увеличить КПД печи, печи и время горения от одной загрузки, не увеличивая количество и стоимость используемых материалов.Представляем 3 варианта самоделок, в которых данные задачи успешно решены и реализованы:
- топка трехходовая из двух пропановых баллонов;
- буржуйка пиролизная с воздушно-топочным теплообменником и вторичной камерой;
- очень популярной конструкцией является «Бубафоня» с верхним сжиганием дров из газового баллона.
Для справки. Первые 2 единицы были разработаны, изготовлены и протестированы нашим специалистом, любезно предоставившим свои фото и видео.
Если вы дружите со сварочным аппаратом и имеете необходимый инструмент, то технических проблем с изготовлением не возникнет. Ниже мы представим чертежи и объясним технологию, как сделать буржуйку из газового баллона по всем трем вариантам. Но для начала сделайте свой выбор, прочитав обзор этих печей.
Чтобы сделать печь, понадобится сварочный аппарат, болгарка, слесарный и измерительный инструмент. Хомутов понадобится несколько, минимум 2 штуки
Буржуйка трехходовая — принцип работы и плюсы с минусами
За необычный внешний вид и хорошую теплоотдачу мастер присвоил этой самодельной печи игривое название «Коллайдер».Эта дровяная печь состоит из двух стандартных пропановых баллонов емкостью 50 литров, приваренных друг к другу под углом 90 °, как показано на рисунке. Принцип работы следующий:
- Первый резервуар, уложенный горизонтально, играет роль топки, соответственно оборудован дверцами и решетками. В него кладут внушительную порцию дров и поджигают.
- Вторая емкость представляет собой воздушный теплообменник с внутренними перегородками, которые замедляют поток дымовых газов и заставляют их трижды менять направление и отдавать больше тепла.В конечном итоге продукты сгорания покидают обогреватель по дымоходной трубе.
- Для увеличения поверхности нагрева обе части корпуса снабжены дополнительными ребрами жесткости.
- Внизу к топке приварен зольник из листового металла, дверца которого регулирует подачу воздуха для горения.
Примечание. С таким же успехом вместо баллонов можно использовать стальную трубу для буржуйки диаметром 300 мм и тонкими стенками (4-5 мм).
Расчетная мощность «Коллайдера» 10 кВт при КПД около 55%, что позволяет отапливать помещение площадью до 100 м² — коттедж, теплицу или большой гараж (бокс ). Практические испытания показали, что в режиме поддержания тепла в отапливаемом помещении одной загрузки дров хватает на 1,5-2 часа. Если использовать ТЭН в доме меньшей площади (25-50 м²), то продолжительность горения увеличится до 3-4 часов. Кто разбирается в теме, тот поймет, что для самодельной буржуйки это хорошая экономичность.
Фото готовой печи «Коллайдер» с теплообменными ребрамиОборотная сторона этой печи длительного горения одна — странный внешний вид. Но это компенсируется многочисленными преимуществами:
- простота изготовления;
- быстрый прогрев и достойное время работы с 1 закладкой твердого топлива;
- дешевая конструкция, достаточно только купить удобные ручки и даже трубу для буржуйки, если нет баллонов с пропаном; №
- из-за размеров топки в печь кладут длинные (80 см) и массивные поленья, что способствует продолжительности горения;
- возможно изготовление агрегата с варочной панелью, как показано на фото.
«Коллайдер», как и любой самосварной газовый баллон из газового баллона, может быть дополнен установкой водяного контура, регулирующего воздушную заслонку в дверце зольника и внешнего нагнетательного вентилятора. Размеры печи меняют в любую сторону, выбирая резервуары меньшей емкости или трубы другого диаметра.
О работе буржуйки, используемой для обогрева помещения кафе 100 м², рассказывается в видео:
Обзор двухкамерной печи пиролиза
Эта небольшая дровяная печь из газового баллона объемом 24 литра получила название Пятерочка по количеству трубок воздушного теплообменника.Он действует по такому принципу:
- Как и в предыдущем случае, уложенный на бок цилиндр служит камерой сгорания, а к нему снизу крепится зольник. Роль решетки выполняют прорези в стенке сосуда.
- В верхней части бака сделано отверстие, к которому примыкают 5 вертикальных трубок теплообменника. Горячие дымовые газы движутся по ним и тем самым передают часть тепла помещению.
- Из теплообменника продукты сгорания попадают во вторичную камеру, где нагретый воздух отдельно подается через отдельную трубку.Благодаря этому горючие газы, образующиеся в топке, сжигаются и выделяют дополнительное тепло, а затем отправляются в дымоход.
Чертеж пиролизной буржуйки длительного горения с дожигателем газа
Результаты практических испытаний каменки следующие: помещение площадью 30 м² отапливается при 20 ° С в течение 1 часа, после Одна кладка дерева длится 1,5-2 часа, в зависимости от режима работы. Расчетная мощность — 5 кВт. Как видите, в такой конструкции время горения сокращено за счет уменьшения топки, но печь очень компактна и поместится в любом помещении.Да и греет неплохо.
Похоже на двухкамерную самодельную духовку. Сверху приварены 2 планки — можно поставить кастрюлю или чайник с водойНаконечник. Хотите увеличить продолжительность горения в среднем до 4 часов? Затем изучите чертеж еще одного варианта, на котором изображена такая же пиролизная буржуйка, сделанная своими руками из газового баллона на 50 литров. Устройство отопительных агрегатов идентично, разница только в объеме баков, используемых в качестве топки.
Благодаря эффективному сжиганию дров печка Пятерочка экономичнее Коллайдера, хотя и сложнее в сборке.По стоимости материалов разница между ними небольшая — в первых 2 баллона, во втором — 5 труб диаметром 57 мм и длиной 40 см. Отдельным достоинством печи является возможность сжигать мокрые дрова и любой мусор после нагрева без потери интенсивности нагрева. Остальные преимущества такие же — невысокая стоимость, простота использования и возможность модернизации.
Еще один хороший совет. Естественно, если после замены небольшого баллона на стандартный (50 л) вы захотите увеличить мощность ТЭНа и добавить еще 2-3 трубы к теплообменнику.Помните, что проходное сечение и тяга в дымоходе должны соответственно увеличиваться. В противном случае вы потратите впустую материалы и время, потому что из-за недостаточной тяги внешние секции останутся холодными, а мощность печи не увеличится.
Увеличенный вариант Пятерочки из большого баллона на 50 л.
Печь верхнего горения «Бубафоня»
По большому счету «Бубафоны» нельзя отнести к буржуазным, так как они принципиально другие по принципу работы. Но игнорировать эту печь невозможно из-за ее широкой популярности, из-за продолжительности горения от 1 загрузки дров от 6 до 10 часов.В то же время обогреватель славится множеством недостатков, о которых мы поговорим дальше.
Алгоритм работы печи длительного горения «Бубафоня», представленной на чертеже, следующий:
- Топка представляет собой стоячий вертикальный пропановый баллон на 50 литров. Через отверстие в верхней крышке входит патрубок подачи воздуха, заканчивающийся толстым металлическим диском. Снизу к нему крепятся стальные полосы, распределяющие воздух во все стороны.
- Когда топка доверху заполнена дровами, тяжелый диск прижимает их вниз и заставляет прогибаться при горении.Розжиг также производится сверху, и только потом спускается труба с грузом.
- Подача воздуха для горения регулируется заслонкой, установленной на верхнем конце трубы. Дымоход врезается в боковую стенку емкости под саму заглушку.
Примечание. Место, где труба проходит через крышку, не загерметизировано, и вторичный воздух засасывается, помогая сжигать горючие газы над диском при правильном прогреве печи.
Сильные стороны Bubafoni — это приличное время работы, простота и возможность переоборудования в котел верхнего горения (печь с водяной рубашкой изготавливается, как описано в). Но слабые места заставили многих владельцев гаражей отказаться от такой буржуазии:
- печь нельзя загрузить, пока не сгорит все топливо;
- от блокировки заслонки топка не погаснет и будет долго тлеть, так как в нее попадает вторичный воздух;
- без хорошей тяги, обогреватель дымит в комнату;
- в режиме медленного горения печка немного греется, а дымоход интенсивно забивается сажей;
- для возврата в нормальный режим агрегат должен хорошо прогреться, что потребляет ¼ топлива.
Слева на фото — крупный план воздушной заслонки, справа — самодельные ребра теплообменника из профилей для монтажа гипсокартона
Для справки. Чтобы сжечь сажу в дымоходе, необходимо при каждой растопке прогонять «Бубафон» на максимальном режиме.
Наконец, немного подсластите пилюлю. Несмотря на все недостатки, печь длительного горения из газового баллона не теряет популярности, к тому же успешно работает на опилках и различных горючих отходах.
Инструкции по приготовлению плиты своими руками
Перед тем, как приготовить дровяную печь длительного горения, необходимо подготовить все необходимые электроинструменты:
- инвертор сварочный; Болгарка
- , она же болгарка угловая; Сверло
- с набором сверл.
Примечание. Не будем здесь перечислять молотки с плоскогубцами, так как в доме хорошего хозяина всегда есть полный набор инструментов.
Конечно, вам понадобится старый пропановый баллон, из которого нужно выкрутить вентиль и обязательно перед резкой залить водой. Дело в том, что пропан тяжелее воздуха и его остатки не уйдут из баллона самостоятельно. Чтобы вытолкнуть их оттуда, просто используйте воду. Порядок дальнейшей работы зависит от выбранной конструкции.
Собираем печь трехходовую
Помимо баллонов, для изготовления буржуйки необходимо подготовить следующие материалы:
- Листовой металл толщиной 2 мм уйдет в зольную камеру и нервюры, 3 мм на двери;
- кусок круглой трубы диаметром 100 мм — на трубу дымохода;
- уголки или профильные трубы для ног;
- асбест, а лучше — шнур асбестографитовый на уплотнитель двери; Профиль стальной
- 20 х 20 мм или арматура того же сечения — для усиления решетки.
Стыковка двух цилиндров (слева) и приварка дверной коробки (справа)
Наконечник. Ручки — замки с красивыми подушечками из эбонита купить проще, чем тратить время на самодельные. Чтобы придать печи современный вид, приобретите термостойкую краску (продается в аэрозольных баллончиках).
Чтобы стержни не гнулись от высокой температуры, их нужно укрепить сварными профилями
В первую очередь распилить металл на заготовки по размерам, указанным на чертеже печи длительного горения, представленном в предыдущем. раздел.Технология изготовления печи следующая:
- В конце первого цилиндра прорежьте отверстие под дверцу и отверстие в стене для выхода газов. У второй емкости отпилить дно, а в конце проделать отверстие под 100 мм трубу. Сделайте на стенках полукруглые вырезы, чтобы один цилиндр плотно прилегал к другому.
- Прорезать пазы решетки. С внешней стороны приварите к нему усилители из профиля 20 мм.
- Изготовить зольник и дверные коробки, приварить их к кузову.Заодно установите ножки.
- Приварите двери и заделайте стыки с рамой. Установите створки и ручки.
- Используйте стенки отрезного цилиндра в качестве перегородок, приварив их внутри вертикального резервуара.
- Соедините две емкости друг с другом сваркой. Установить дымоходную трубу и ошпарить.
- Присоедините ребра теплообмена к обоим корпусам. На этом плита готова.
Несколько слов о том, как сделать плотные дверцы для печи длительного горения.Технология проста: из узких стальных полос, приваренных к внутренней поверхности полотна, формируется канал, куда впоследствии набивается графитно-асбестовый шнур. Главное, четко определить расположение паза. По окончании весь металл необходимо обезжирить и покрасить в 3 слоя с перерывами на просушку.
Наконечник. Перед покраской желательно расплавить сварную печь, чтобы выгорела вся старая краска.
Изготовление печи пиролизной двухкамерной
Схема сборки этой высокоэффективной буржуйки во многом схожа с «Коллайдером», используется всего 1 баллон с газом, а трубы диаметром 57 и 20 мм добавлены из материалов (в теплообменник и подача вторичного воздуха соответственно).Порядок действий следующий:
- В баке прорезать отверстия для загрузочной дверцы и под установку теплообменника. Размеры платформы для него — 260 х 200 мм.
- Сделайте зольник и установите двери, как описано выше. Привариваем ножки.
- Сделайте теплообменник, разрезав трубы в шахматном порядке между двумя листами металла. Соблюдайте межосевые расстояния, указанные на рисунке.
- Согните трубу диаметром 20 мм под углом 90 ° и приварите ее к теплообменнику.Присоедините последний к отверстию, вырезанному в цилиндре.
- Приварить вторичную камеру к дымоходу. Используйте полукруглую заготовку в качестве крышки, которая раньше была стенкой цилиндра. Обогреватель готов.
Этапы сборки дверцы топки — по центру укладывается негорючий утеплитель, по краям графитовый шнур
Примечание. При использовании стандартного баллона алгоритм работы не меняется, нужно только зольник сделать больше (размер указан на чертеже).
Немного о том, как правильно подать воздух во вторичную камеру печи длительного горения. Перед установкой конец трубки необходимо заглушить, а по бокам сделать 5-6 надрезов в виде буквы V. Затем труба вставляется в отверстие в верхней части теплообменника и ошпаривается. Если вы сделаете буржуйку своими руками из трубы, взятой вместо баллона, вам потребуется сварить заднюю стенку и переднюю панель из металла толщиной не менее 4 мм.
Такие прорези нужно сделать по бокам трубки — через них воздух проходит во вторичную камеру
Фото процесса сборки буржуйки
Устанавливаем обрамление дверок печи
Привариваем зольник из листового металла
Режем решетки и укрепляем их профилем для сварки
Привариваем зольную камеру к цилиндру
Ставим ручки и замки на двери
Вырезаем отверстия под трубы во фланцах теплообменника
Делаем буржуйку на видео
Утеплитель в сборе «Бубафоня»
Технология изготовления печи одна из самых простых.Возьмите газовый баллон на 50 литров, отрежьте верхнюю часть по заводскому шву, а затем выполните следующие действия:
- Сварите решетку из арматуры периодического профиля диаметром 20-24 мм и установите ее согласно чертежу. Вырежьте отверстие внизу и установите дверцу зольной камеры.
- В отрезном колпачке проделайте отверстие для воздуховода и приварите снаружи стальную полосу для уплотнения цилиндра.
- Прикрепите дисковый груз с приваренными диффузорами к одному концу 57-миллиметровой трубы с помощью сварки и установите воздушную заслонку на другой.
- Установить дымоходную трубу.
- Вставить воздуховод в топку и надеть крышку.
Фактически 3 части — это вся печь Бубафоны
Для справки. Многие домашние мастера в печь типа «Бубафоня» не ставят решетку и дверцу зольника. Это упрощает работу, но усложняет операцию: после сжигания дров необходимо переворачивать корпус, чтобы вытряхнуть золу.
Монтаж решетки из арматурных стержней
Как установить буржуйку и дымоход
При размещении дровяных обогревателей важно соблюдать правила пожарной безопасности. Особенно это касается печей нашего специалиста, у которых верхняя часть может раскалиться докрасна при максимальных условиях эксплуатации. Вот требования:
- В гараже или в загородном доме, построенном из кирпича или других негорючих материалов, минимальное расстояние до стен помещения не нормируется. Но любые горючие предметы или конструкции должны находиться не ближе 50 см от корпуса печи.
- В теплице буржуйку нельзя ставить близко к растениям и стеклянным наружным стенам.
- В деревянном доме полы под печью покрыты металлическим листом, выступающим из печи на 700 мм. Ближайшие стены также покрыты металлом для предотвращения возгорания.
Отдельный вопрос, из чего сделать дымоход для печки. Алюминиевая гофра точно не подходит, так как температура газов на выходе достигает 200-400 ° С в зависимости от режима работы. Какие варианты действительны:
- труба стальная обыкновенная с тонкими стенками;
- дымоход из кровли или нержавеющей стали;
- Изолированный дымоход сэндвич.
Дымоходный канал лучше проложить под углом (слева), чем просто вертикально (справа).
Наконечник. Лучше брать последний вариант дымохода — двустенную трубу с утеплителем из базальтового волокна посередине.
Для обеспечения хорошего сцепления верх трубы размещают на высоте 4 м или более, если измерять от решетки. Буржуйка Bubafony особенно требовательна к сквозняку; для него следует сделать отвод газов повыше, чтобы потом не возникало вопросов, почему печь дымит в комнату.В идеале вертикальный участок дымохода должен заканчиваться сборником конденсата, хотя многие домашние мастера этого правила не придерживаются.
Кстати, правильный дымоход позволяет повысить КПД печки-буржуйки. Это достигается двумя способами:
- В гараже или теплице дымоход удлиняют и укладывают под углом, а другим концом помещения выходит на крышу, как показано выше на фото. Таким образом, горящие продукты сгорания передадут больше тепла внутреннему воздуху.
- На вертикальном участке дымохода устанавливается теплообменник, подключаемый к системе водяного отопления дома или коттеджа. Минус: из дымоходного канала печки длительного горения надо будет почаще удалять сажу.
Схема подключения водяного теплообменника, стоящего на дымоходе
Теплообменник самоварного типа, установленный на дымоходе, нельзя подключать напрямую к водопроводной сети. Существует опасность закипания охлаждающей жидкости и поломки трубопровода.Лучше использовать схему подключения через емкость с водой — теплоаккумулятор, который также можно сделать своими руками из газового баллона. С описанием и чертежами его конструкции вы можете ознакомиться.
Буржуйка — небольшая самодельная металлическая печь, получившая распространение в первой половине 20 века. Позже, с появлением централизованного теплоснабжения, его популярность упала. Вторая волна его массового использования пришлась на годы Великой Отечественной войны, а третья — в 90-е годы того же века для отопления загородных домов.Сегодня буржуйки чаще используют в гаражах или подсобных помещениях. В чистом виде, без переделок, они неэкономичны: горючее «поедают» как буржуйские, но если перестать «кормить», быстро остывают. Самый простой вариант сделать — это газовая плита из газового баллона. Обшивка уже готова, нужно просто вырезать отверстия для заливки горючего и зольника, прикрепить к ним дверцы, приварить ножки и дымоход (диаметром 150 мм и не меньше).
Цилиндр в такой духовке можно ставить вертикально или горизонтально.Он быстро нагревается, но также остывает сразу после того, как топливо перестает гореть. Тем не менее, для того, чтобы быстро убрать гараж или дачу от минусовых температур или растопить в осенне-весеннюю погоду — отличный вариант.
Какой баллон взять для печки?
Понятно, что за кузов пойдет баллон с газом. Но они бывают разных размеров. Самый маленький из 5 литров не стоит использовать для изготовления печей: слишком малы объемы и он не может ничего нагреть.Также есть баллоны на 12 и 27 литров. Из них получится маломощный агрегат для совсем небольшого помещения: больше 3 и 7 Киловатт тепла из них получить нельзя. В принципе, это может быть пеший вариант, но вес будет солидным.
Оптимальный вариант стационарной буржуйки в гараже или на даче — газовый баллон на 50 литров. Высота 850 мм, диаметр — 300 мм. Объем и толщина стенок достаточно велики, чтобы сжечь любое топливо. При этом он не очень тяжелый, с ним можно работать в одиночку.Буржуйка из пропанового баллона на 50 литров — лучший вариант.
Промышленные газовые баллоны объемом 40 литров имеют примерно такой же объем, диаметр менее 250 мм, высоту больше, стенки толще. Фреоновую баллонную плиту, с той же мощностью, которую можно получить из нее, будет сложнее сделать: масса большая, а она длинная. Укорочив высоту примерно до 700 мм, можно сделать небольшую толстостенную буржуйку, которая будет немного дольше греться, но немного лучше «удержит» тепло.
Важно! При работе с газовыми баллонами соблюдайте технику безопасности!
Как безопасно разобрать газовый баллон: безопасность смотрите в этом видео.
Из чего и как сделать двери
Двери для буржуйки можно купить литые. На воздуходувке потребуется небольшая высота и побольше — для укладки топлива. Есть уже готовые блоки — проточная дверца с воздуходувкой в одной конструкции. В этом случае в вырезанное по размеру отверстие вваривается сваренная по размерам рама из углов, и к ней уже прикручивается отливка.Чтобы не выдувать трещины, по периметру выреза под дверцу приваривается небольшой бортик — 1-2 см полоска металла.
Двери нельзя покупать, а использовать вырезанный кусок стены из воздушного шара. Тогда вам понадобятся какие-то петли или детали от замены. С петлями все понятно: размечаем места, привариваем. Есть такой интересный вариант самодельных петель: несколько звеньев толстой цепочки.
К такой двери нужно будет приварить защелку.
С решеткой или без?
В самом простом варианте решетки нет. Если цилиндр маленький или расположен горизонтально, то изолировать часть внутри проблематично. В этом случае конструкция буржуйки из баллона довольно проста: корпус, поставленный на ножки, имеет одну дверцу, в верхней части приварена труба для подключения дымохода. Все. Вся печка.
На фото выше представлены примеры таких простых духовых шкафов. В них для улучшения теплопередачи к корпусу снаружи приваривают полосы металла.В верхней части, помимо дымовой трубы, есть еще один выход — на него устанавливается крышка, и этот выход используется как плитка для приготовления, подогрева чая.
Если вы все же хотите сделать решетку в буржуйке из горизонтально установленной емкости, придется сварить нижний поддон для сбора золы. Ниже представлен рисунок и фото практической реализации.
В вертикальном исполнении печи чаще всего устанавливают от баллона. В этом случае место выделить проще.Обычно внутрь приваривают прутки толстой арматуры: чугунную решетку подходящего размера найти сложно. Но этот вариант плох, потому что фурнитура быстро выгорает, а ремонт усложняется: старую фурнитуру снимают, новую приваривают. Можно внутри приварить куски толстого уголка или арматуры (как на фото), отдельно сварить решетки из арматуры и по углам уложить их отдельно.
В этом видео рассказывается, как своими руками сделать печь из газового баллона — решетки делают из арматуры.
Лучшее рассеивание тепла
Самая большая проблема буржуазии — неэффективное использование тепла. Большая его часть буквально летит в дымоход. С этим недостатком эффективно борются в топках топочного сжигания с дожиганием дымовых газов типа (также, кстати, может изготавливаться из газового баллона) и.
Вариант буржуйки из пропановых баллонов с вторичным дожиганием по КПД выше, чем у «обычных» моделей.
Еще один способ улучшить теплопередачу — удлинить дымоход, тем самым увеличивая количество тепла, которое остается в помещении.При проектировании такого ломаного дымохода лучше избегать горизонтальных участков, а особенно участков с отрицательным уклоном.
Эта газовая баллонная печь работает на дровах. Повышенное тепловыделение за счет длинного сломанного дымохода
Другой вариант использования тепла дымовых газов — это приварить вертикальную дымовую трубу к горизонтально расположенному корпусу цилиндра. За счет большей площади теплоотдача будет выше. Только нужно будет создать хорошую тягу, чтобы дым не уходил в комнату.
Вы можете сделать это так же, как в банных печах: натянуть сетку на металлическую трубу, в которую можно засыпать камни. Они будут отбирать тепло от трубы, а затем передавать его в комнату. Но. Во-первых, пока камни не нагреются, воздух будет медленно прогреваться. Во-вторых, подходят не все камни, а только круглые, которые лежат вдоль рек. Причем равномерно окрашен без включений. Других нельзя заснуть: они могут взорваться от высоких температур не хуже, чем осколочный снаряд, или испустить радон, который в значительных концентрациях очень вреден.
Но у этого решения есть свои преимущества: во-первых, труба не горит. Камни излучают даже тепло. Во-вторых, после того, как плита погаснет, они будут поддерживать температуру в помещении.
Часто нужно быстро утеплить комнату. Для этого можно использовать обычный вентилятор, который будет обдувать корпус и / или трубу печи. Но эту же идею можно реализовать и в стационарном варианте: в буржуйку в верхней части вварены сквозные трубы.С одной стороны, к ним прикреплен вентилятор (термостойкий, лучше — с несколькими скоростями, чтобы можно было регулировать температуру).
Еще один вариант, позволяющий добиться активного движения воздуха по стенкам корпуса и не использовать вентилятор: сделать кожух вокруг корпуса на расстоянии 2-3 см, но не сплошным, а с отверстиями снизу и сверху. . По такому принципу работают или металлические печи для бани.
Один из вариантов такого кожуха вокруг горизонтально расположенного цилиндра виден на фото ниже.Через щели, которые находятся внизу, всасывается холодный воздух, находящийся у пола. Проходя по раскаленному корпусу, он нагревается и выходит сверху.
Принцип не нов, но не менее эффективен. Как выглядит готовая печь с таким кожухом, смотрите фото ниже.
Вот еще один кожух, сделанный вокруг буржуйки из горизонтально расположенного цилиндра. Обратите внимание на нестандартное крепление двери.
Самодельный котел из газового баллона для нагрева воды можно сделать по такому же принципу: вокруг баллона приварить водяную рубашку, и подсоединить ее к радиаторам.Только не забывайте, что в системе должен быть расширительный бачок объемом 10% от общего рабочего объема.
Как сделать буржуйку из газового баллона и как ее улучшить вы теперь знаете. Посмотрите еще одно видео об интересном варианте комбинированной печи для дачи или гаража из кирпича и газового баллона.
С наступлением холодов актуальным становится вопрос утепления. Это особенно важно для комнат, которые вы посещаете время от времени. Сюда входят гаражи, мастерские и подсобные помещения, где было бы нецелесообразно устанавливать стационарную систему.В некоторых случаях это совершенно невозможно, но если вам не удается обойтись без отопления, можно своими руками сделать плиту из газового баллона.
Рекомендуется использовать один из двух вариантов, первый предполагает создание системы на электричестве, а второй на твердом топливе. К числу последних можно отнести буржуйку, создать которую сможет даже неопытный домашний мастер. Основным элементом этой конструкции будет выступать корпус, в нем необходимо будет проделать два отверстия, через которые внутрь будет проходить топливо.В системе должен быть вентилятор и дымоход. Последний элемент часто подключается к отсеку, в котором собирается зола. Для облегчения чистки духовку придется оборудовать в этом месте еще одну дверцу.
Если делать печь из газового баллона своими руками, то дымоход не следует укладывать коротким путем, при этом большая часть тепла будет улетучиваться наружу. Такой подход нельзя назвать рациональным, поэтому специалисты советуют оборудовать трубу ломанной формы. Так вы сможете повысить эффективность обогревателя.В качестве топлива можно использовать уголь, дрова, старую одежду и даже бытовой мусор. Буржуйка также привлекает мастеров своей простотой, а также универсальностью, ведь с ее помощью можно не только обогревать комнаты, но и готовить еду.
Подготовка к работе
Если вы собираетесь делать печь из газового баллона своими руками, то сначала необходимо подготовить баллон к работе. Эту процедуру нужно проводить обязательно, иначе газ может взорваться от искры, возникающей в процессе резки.Мастер должен открутить вентиль и дать уйти оставшемуся газу. После этого емкость следует перевернуть и слить конденсат. Его запах нельзя назвать приятным, поэтому стоит собрать остатки в сосуд.
Баллон устанавливается вертикально и заполняется водой, это удалит оставшийся газ внутри, после того, как баллон перевернут на бок, что позволит жидкости стекать, теперь баллон можно начинать резать. Перед началом работ важно определиться, как будет располагаться буржуйка: горизонтально или вертикально.
Первый вариант печи
Духовка из газового баллона своими руками на дереве может быть изготовлена на основе горизонтальной конструкции. Первоначально необходимо будет отрезать верхнюю часть цилиндра, а затем установить ее внутрь. Его следует сделать из арматуры, разместив элементы змейкой. Монтаж колосниковой решетки сопровождается сваркой, после которой можно делать лицевую часть топки. На стальном листе нужно очертить контур круга, диаметр которого будет равен внешнему контуру цилиндра.Затем деталь вырезается, а внутри круга намечаются два прямоугольных отверстия. Первый нужен для подачи топлива, а второй будет выступать в роли нагнетателя.
Основная сцена
Если вы сделаете печь из газового баллона своими руками, то можете рассмотреть фото в статье. С помощью болгарки или стамески необходимо будет вырезать намеченные отверстия, о которых шла речь выше. Готовый чехол следует укрепить сваркой штор и установить на них двери.Последние следует заделать асбоцементным шнуром. На этом можно предположить, что лицевая часть печи готова, можно приступать к работе с тыльной стороной. На этом этапе предусматривается обустройство дымохода, для чего нужно проделать отверстие размером, равным диаметру трубы. В нем устанавливается дымоход нужной формы, который должен быть выполнен из толстостенной трубы.
Изготовление вертикальной печи
Если вы сделаете печь из газового баллона своими руками, вам пригодится пошаговая инструкция.Если нужно выполнить вертикальное строение, можно использовать один из двух способов. Первые предусматривают внушительный объем работ, они связаны с резкой, однако этап монтажа будет сопровождаться меньшими трудностями. Если вы решили выбрать именно такой способ, то с помощью болгарки нужно избавить емкость от верха. Второй способ сэкономит время, электроды и силы, но его нельзя назвать удобным. В этом случае верх должен стоять на своем месте.
Какой бы метод вы ни выбрали, спереди вам нужно будет вырезать большое отверстие для горения.Ниже находится отверстие меньшего размера для очистки и продувки. При изготовлении плиты из газового баллона своими руками на длительное горение применяется та же технология. Отверстия могут иметь произвольные размеры. На следующем этапе подготавливаются решетки к монтажным работам, в первом случае эти элементы опускаются через верх, но вторая технология не дает возможности установить решетки таким образом, необходимо будет вводить их снизу. , что крайне неудобно.
Герметичность и установка дымохода
Если он будет из газового баллона, то на следующем этапе нужно установить завесы, а затем приварить их к отверстиям.Двери проклеены асбоцементным шнуром, что гарантирует отличную герметичность. Не забывайте, что для дымохода еще нужно проделать дыры. Через отверстие, которое находится в верхней крышке, будут выходить выхлопные газы и подаваться кислород. Его размеры должны соответствовать диаметру трубы. Можно предусмотреть боковой отвод дыма. В этом случае нужно поработать сбоку корпуса. Специалисты в некоторых случаях советуют оснастить колено, но можно сделать совершенно прямой вывод.Если цилиндр лишился верхней части, то дымоход можно установить сверху.
Производственная печь
Печку своими руками из газового баллона на тренировке легко сделать. Его конструкция несложная. Можно использовать листовой металл, для этого нужно сделать две камеры сгорания, к одной из которых прикреплены ножки. Два отсека соединены трубкой с отверстиями, и установка этого элемента осуществляется на верхней камере. Все эти работы предполагают использование сварочного аппарата и наличие определенных навыков мастера.Если вы хотите сократить время, воспользуйтесь газовым баллоном. Он имеет толстые стены и обеспечит пожарную безопасность. Подачу воздуха в одну из камер необходимо сделать регулируемой; для этого устанавливается заслонка, которую при необходимости можно открыть. Камера, куда будет подавать отработанное масло, должна получиться разборной, чтобы ее можно было очистить. Дымоход располагается вертикально, наклонных и горизонтальных участков быть не должно. Для хорошей тяги дымоход нужно выбирать такой, чтобы его длина составляла четыре метра и более.
Технология работы
При изготовлении печи из газового баллона в конце прогона необходимо отрезать нижнюю и верхнюю части от бака, получившиеся половинки составят основу разборной камеры сгорания. Нижняя часть должна быть оборудована металлическими ножками, а в верхней проделывается отверстие, в которое устанавливается труба с регулировочной пластиной. В центральной части должно быть отверстие, к которому приваривается труба, соединяющая два отсека. В соединительном элементе необходимо проделать отверстия для воздуха.Средняя часть бака пойдет на изготовление вторичной камеры сгорания, к которой крепится соединительный патрубок. Завершающим этапом станет изготовление и установка дымохода, что может оказаться проблематичным из-за внушительной длины детали.
Если вы будете делать печь из газового баллона своими руками, то размеры следует выбирать самостоятельно, эти параметры не так важны по той причине, что конструкцию можно легко отрегулировать. В гаражах и мастерских, а также в подсобных помещениях в редких случаях бывают идеально ровные полы.Чтобы правильно установить духовку и обеспечить ее пожарную безопасность, необходимо сделать ножки регулируемыми по высоте.
Если вы заметили, что масло брызгает из камеры сгорания, необходимо остановить устройство, дождаться полного остывания поверхностей и слить топливо. В отсеке должно быть не более 2/3. Если добыча закипает, необходимо уменьшить подачу воздуха с помощью регулировочной заслонки. Для достаточно интенсивной тяги нужно периодически чистить бак и дымоход.Избавиться от копоти на верхней части изделия получится постукиванием.
Вывод
Изготовление и эксплуатация такого нагревательного прибора очень дешевы. Это также связано с тем, что отработанное масло можно легко купить или практически бесплатно взять на СТО. Если вы автолюбитель, то для масла у вас может быть специальный бак, в который вы будете собирать добычу, добытую в теплое время года.
Частный дом отапливается, как правило, автономной системой отопления.Но хозпостройки и гаражи не нужно отапливать круглосуточно, и в то же время без тепла обойтись совершенно невозможно, особенно зимой в гараже при работе с автомобилем. По временному варианту можно обогреть подсобное помещение или гараж электронагревателем, но такое решение приводит к затратам, так как электричество сегодня является дорогостоящим ресурсом.
А вот вариант маленькой твердотопливной печки будет не только экономичнее, но и удобнее, так как небольшая печка своими руками или печь-ракета совершенно энергонезависимая, компактная и мобильная.Самая простая печь в изготовлении из газового баллона на пропане емкостью 50 литров, так как почти не требует шовной сварки.
Пропановые баллоны сделаны из толстой стали, и печь, в основе которой лежит газовый баллон, очень скоро перегорит. Для успеха вам понадобится сварочный аппарат и мастерство сварщика, так как вам потребуются качественные характеристики и хорошая сварка швов. Сварные швы бывают сплошными, а не прерывистыми, так как конструкция должна быть полностью герметичной, это главное требование к печке-буржуйке.
Работа и строительство
Про дизайн — радует своей простотой. Количество дверей — две: зольник, он же нагнетательная камера, и топка. Дымоход можно прорезать в задней или верхней части корпуса цилиндра.
По принципу действия сложностей тоже немного: кладут топливо на решетку, поджигают и наблюдают стремительный нагрев металлического баллона. Свойство металлов быстро нагреваться и так же быстро отдавать тепло, и охлаждаться хорошо известно, поэтому вам придется наблюдать за печью и периодически закладывать дрова в топку.По КПД данного агрегата — он низкий, а дров нужно много. А вот печь на твердом топливе и дровах кушать любая — здесь нет капризов, это одно из достоинств данной конструкции. всеядная буржуазия — общеизвестный факт, подходят не только бревна, торф и уголь, но и много видов бытового мусора, бумаги и тряпки, столярных отходов и т. д.
Два важных момента: первое — металлические печи много работают эффективнее, если они облицованы кирпичом, а можно использовать обычный керамический кирпич (не огнеупорный), а кладку выполнить с добавлением глины в раствор.Обязательным условием является наличие воздушного зазора 50 — 100 мм между горячим металлом и кирпичной кладкой.
Второй момент — для увеличения теплоотдачи буржуйки монтаж дымохода следует производить не вертикально, а под углом, длину дымохода увеличивать, проводя его по стенам и потолку. Такой сломанный дымоход поспособствует более полному сгоранию топлива, в том числе и небольшого остатка. Для получения экономайзера выход дымоходной трубы из корпуса печи делают вертикальным, как и положено по правилам теплотехники, но тогда труба идет под углом или в виде ломаных отрезков.В этом случае раскаленные дымовые газы не смогут сразу улететь на улицу, но почти все тепло отдадут помещению. Конечно, такая печь с дымоходом будет стационарной.
Работы по изготовлению печки из баллона
Прежде всего, бывший пропановый баллон освобождается от постоянно присутствующих остатков газа. Осторожно открутите клапан и направьте струю в обратном направлении. Газовая струя видна глазу, а когда она высыхает, необходимо слить из баллона конденсат — крайне неприятное вещество с резким неприятным запахом.Переворачивая емкость и сливая конденсат в ненужную емкость, а затем утилизируя ее, можно избавиться от ненужного запаха. Следует следить за тем, чтобы конденсат не попадал на пол или мебель в доме, так как избавиться от этого запаха будет сложно. Лучше всего готовить емкость не в помещении, а подальше от всех построек.
После освобождения баллона его снова переворачивают и в вертикальном положении заполняют водой под горлышком.Вода вытеснит последние остатки газовой смеси. Затем баллон кладут на бок и сливают воду. После этого баллон полностью безопасен и к нему можно применять электрическую или газовую сварку, а также резку болгаркой.
Буржуйка из баллона, как и все другие модели буржуйок, бывает вертикальной и горизонтальной. Второй считается наиболее простым, традиционным и «технологичным» в исполнении.
Краткая технологическая последовательность горизонтальной буржуйки:
- Срезать крышку баллона.Инструмент — Болгарка
- Сделайте отверстие для установки дымохода в задней или верхней части корпуса. Диаметр сопла может быть в пределах 80 — 120 мм.
- Для передней стенки печи потребуется металлический лист определенной толщины. Не менее 4 мм и достаточно большого размера, чтобы вырезать круг диаметром, равным диаметру цилиндра. Для воздуходувки он — зольник, а для камеры сгорания по кругу болгаркой или стамеской вырезают два прямоугольных отверстия. Аккуратно вырежьте, чтобы получилась основа для дверей.Окно печи можно заделать, уложив асбошноровый шнур изнутри по контуру отверстия. После приваривания петель к вырезанным прямоугольникам получаются двери.
- Арматурные стержни, изогнутые змейкой, могут служить решеткой. Прикрепите получившуюся решетку к внутренней поверхности цилиндра на сварку — это упрощенный метод. Немного сложнее, но практичнее для дальнейшей эксплуатации будет поставить решетку на приваренные к боковым частям цилиндра уголки.
- Ножки для печки — очень важный элемент. Ножки можно сделать из стальной трубы, достаточного диаметра 32 — 50 мм. Ножки также можно приварить снаружи емкости.
- В последнюю очередь выполняется стыковая сварка, соединяющая цилиндр и переднюю часть печи с отверстиями для топки и нагнетателя.
- Печь будет готова после подключения дымохода из стальной трубы. Первая печь покажет герметичность конструкции. Как правило, при аккуратном исполнении и хорошем проплавлении шва печь работает исправно.
Вертикальную буржуйку из баллона сделать можно двумя способами. Принципиальных отличий от горизонтальной конструкции нет, разве что ножки не требуются для вертикальной установки.
- Способ первый: труднее резать и сваривать, но удобнее в монтажных работах. Начало работы — как при изготовлении горизонтальных буржуй. Крышка цилиндра срезается и внутрь устанавливается решетка из стальной арматуры. Сбоку прорезаны отверстия под нагнетательную и топочную камеры.
- Второй способ: резать металл практически не нужно, а вот печь собрать сложнее. Крышка не прорезается, а решетка фурнитуры устанавливается через щелевое отверстие топочной камеры. Работать в таких стесненных условиях очень неудобно, а вот плита почти прочная.
Изготовление баллонной ракетной печи
Отличия буржуйских и струйных печей:
- Ракетная печь имеет более высокий КПД. Причина в особой организации движения раскаленных дымовых газов, в том числе угарного газа CO, внутри топки, в данном случае цилиндра.Траектория этого движения особенно длинная и сложная, а теплоотдача соответственно выше. Ракетная печь из того же баллона на 50 литров сможет обогреть помещение большей площади по сравнению с буржуйским вариантом.
- Конструкция ракетной печи дополнена внутренней частью — квадратной трубой, снятой снизу со стального бака. На концах патрубок не закрывается, а его внешняя часть служит камерой сгорания, а внутри образуется открытый дымоходный канал, по которому нагретый воздух поступает в цилиндр.
- Дымоход подключается не на верхнем, а на нижнем уровне конструкции, так как потоки горячих дымовых газов, дыма и нагретого воздуха также пойдут сверху вниз и полностью заполнят баллон.
Ракетная печь намного сложнее буржуйки; Для этого потребуются дополнительные узлы и детали. Снять дымоход снизу сложнее, а установка квадратной трубы внутри цилиндра и обеспечение потока воздуха на двух уровнях, первичном и вторичном потоках, усложняют изготовление.Ракетные печи из газовых баллонов сделать проще, так как есть готовый герметичный корпус из толстой стали заводского изготовления. Резка требуется только для устройства отверстий для подключения дымохода и под дверцу камеры сгорания.
Топка ракетной топки выполняется как для топок длительного горения, методом нагрева до «теплой трубы». Первым делом необходимо заложить легкое горючее топливо (бумага, солома, ветки и листья). Когда дымоход прогреется, сделайте закладку на топливо из угля или дров.Ракетные печи получили свое название отчасти благодаря своим характеристикам — при неправильной эксплуатации (очень сильная тяга с открытым нагнетателем) можно получить поток огня сверху и звук, напоминающий турбинный или, как говорится, взлет ракеты.
Ракетная печь требует особого подхода, так как на каждый вид топлива нужна экспериментальная настойка. Чтобы определить режим печи, в начале процесса полностью откройте дверцу воздуходувки и наблюдайте. Как только печка переходит в штатный режим — начинает «гудеть», дверца поддувала постепенно закрывается, уменьшая подачу воздуха и тягу.Когда печка перестает гудеть и «шуршит», зазор между дверцей нагнетателя и корпусом оставляют в определенном положении.
Можно было комфортно работать круглый год, должна быть система отопления. Чаще всего в гаражах можно встретить так называемые буржуйки. Такие печи изготавливаются быстро и просто из минимального количества материалов. Некоторые буржуйки служат не только для обогрева, но и для приготовления пищи.
В статье будет рассмотрен пример создания буржуйки для гаража из обычного газового баллона.
Материалы и инструмент для изготовления:
— газовый баллон;
— болгарка;
— ножовка по металлу;
— молоток;
— сварка;
— лист бумаги, маркер;
— трубы для дымохода;
— петли для подвесных дверей.
Шаг первый. Подготовка к воздушному шару
Опасно!
Перед тем, как приступить к созданию буржуйки из газового баллона, нужно ее обезвредить, так как при резке она может взорваться.Чтобы обезвредить воздушный шар, автор рекомендует сжечь его на костре в безлюдном месте.
Чтобы сжечь баллон, сначала нужно открутить вентиль и спустить весь газ. Также баллон можно перевернуть и слить из него оставшийся газ. Далее нужно снять вентиль. Для этого берется ножовка и с ее помощью делается надрез в основании клапана глубиной около 2 мм. Затем клапан сбивается точным ударом молотка.
При стрельбе баллон ставится горизонтально и засыпается дровами, которые затем поджигаются.По словам автора, такой способ розжига безопасен, так как баллон постепенно нагревается и пламя не проникает. Но все же после того, как дрова будут подожжены, желательно отойти на безопасное расстояние.
Step Two Hood
После того, как цилиндр остынет, можно смело приступать к работе, теперь он уж точно не взорвется. Для начала вам понадобится мел и болгарка. В верхней части емкости нужно мелом прорисовать дырочку под будущую вытяжку. Диаметр отверстия должен быть таким, чтобы потом к этому месту можно было приварить трубу для вытяжки.Отверстие и труба должны быть такими, чтобы обеспечивать хорошую тягу печи, иначе дым уйдет в гараж.
Шаг третий Изготовление топки и зольника
Теперь нужно снова вооружиться мелом и определить место под топкой и зольником. Оба эти отсека будут расположены на дне контейнера. Затем с помощью болгарки можно вырезать два отверстия. В результате останутся два куска металла, их нужно законсервировать, так как из них будут сделаны дверцы для печки.
В то же время зольник будет работать как воздуходувка для лучшего горения.
Шаг четвертый Изготовление решетки
Эта решетка устанавливается в цилиндре между топкой и зольником. На него будут уложены дрова. Такой мангал можно купить или сделать своими руками. Для его изготовления подойдет стальной уголок или металлические пластины. Еще можно проделать отверстия в стальной пластине подходящего размера. Далее внутри емкости приваривается решетка, как на фото.
Чтобы точно рассчитать размер при самостоятельном изготовлении решетки, дно емкости нужно положить на лист бумаги и затем обвести маркером или краской. Получившийся круг нужно вырезать, в результате получится выкройка.
Шаг пятый Завершающий этап сборки
На заключительном этапе буржуйка уже полностью собрана. Здесь уже нужно поработать над сваркой.Двери навешиваются сваркой. Как вариант, вы также можете использовать дрель и болты с гайками, но это более длительный процесс.
Также нужно помнить о сборке и сварке дымохода, он собирается из труб подходящего диаметра. Чтобы получить как можно больше тепла, дымоход нужно сделать максимально длинным. Будет здорово, если вы пропустите его по всей длине гаража. К верхней части баллона приваривается дымоход.
Вот и все, буржуйка почти готова.В принципе, его уже можно попробовать растопить. Если тяга слабая, можно попробовать удлинить трубу вверх. Также к буржуйке можно приварить металлические ножки, если это необходимо, в крайнем случае можно поставить еще и на кирпичи.
Еще автор решил усовершенствовать буржуйку, чтобы она могла нагревать чайник или готовить что-нибудь поесть. Для этих целей в верхней части была встроена горелка. Он сделан из задних тормозных барабанов от автомобиля.
В качестве дров для такой печи годится все, что горит. Автор чаще всего использует старые деревянные оконные рамы, которые выбрасываются в большом количестве. Их древесина часто бывает сухой, и такое топливо дает много тепла. Буржуйка прогревается за 20 минут. Чтобы буржуйка была красивее, ее можно покрыть термостойкой краской или грунтовкой.
НАГРЕВАТЕЛЬ PARA SA MGA ТЕПЛИЦА: АЛИН АНГ МАС МАХУСАЙ, КУНГ ПААНО ГУМАВА, ПУМИЛИ НА PAG-INSTALL ОБОГРЕВАТЕЛЬ NG ISANG — PAGSASAKA
Для создания теплиц, создания оптимальной температуры и температуры.Создавайте обогреватель теплицы, используя кахалили и запускайте калан. Ang kanilang pa
Нилаламан:
Для прекрасных теплиц, когда вы начинаете работать с высокой температурой, она наугад. Создание обогревателя теплицы просто потрясающе в калане. Этот язык предназначен для всех видов деятельности. Isaalang-alang natin ang isyung ito nang mas detalyado.
Сделать открытие в теплице
Память для детей, которые помогут вам создать карту, будет открыта, чтобы сделать ее лучше. Вы можете набраться опыта, чтобы получить доступ к своим мыслям по всему миру и получить много результатов. Благодаря этому, лучший способ сделать теплицу столицы и добавить ее. В этом случае, вы можете использовать автоматическое управление для управления на субайбая и прослеживание.Наша система создает удивительные экзотические предметы, которые подходят для всех желающих.
Махалага, который устанавливается в теплицу с очень хорошим климатом, может быть установлен с помощью специальной метки, которая может быть использована с холодными лучами и заморозками. ВНИМАНИЕ !!!!!!!!!!!!!!!!!!!!!!!!!!!!!!!!!!!!!!!!!!!!!!!!!!!!!!!!!!!
Махалага! Как сделать уборку для зимней теплицы, добавить параметры теплицы и климатические условия, а также различные устройства, и все.Узнайте, как получить доступ к каналам на хинди, чтобы получить больше информации, чем это сделать.
Кайлан и его использование
Используйте обогреватели в любое время:
- С обогревателями. Сделать это для любого режима работы или изменения температуры тела для каждого человека, который будет использоваться для всех катангов пананим на lumago.Halimbawa, с минимальной температурой в любом диапазоне значений + 10 ° С, ngunit sa + 16 ° ° mas mabilis silang babangon.Для нормального отображения текста, температура висящего на Габи хинди выше, чем на + 15 ° С, а температура на ибабе + 12 ° — на хинди, как на хинди. Теплолюбивые, теплые, накатанные, могут быть увеличены на + 10 … + 12 ° °. При работе и ногах действует максимум на + 3 … + 5 °. В зависимости от температуры, температура в любой точке имеет отличную степень, которая может быть лучше всего в буках на каме.
Как сделать пампинит, открыть все страницы или ученики могут быть лучше всего.У него есть температура, и он может быть лучше. Этот хинди ка дапат делает это для того, чтобы работать с температурой, которая работает для всех, кто хочет.
- Sa tag-init. Минсан, каждый раз, когда выбирает режим, работает с температурой на критическом уровне. Это кадаласан хинди для того, чтобы работать с часами, которые он защищает.
- Таглагас. Капаг увеличивает температуру и делает его лучше всего на Габи, и делает все возможное, чтобы начать работу с Габи.
- Sa taglamig. Напишите нам, что нужно сделать, чтобы настроить все средства для повседневного использования. Использование обогревателя может быть выполнено с использованием капитала или большого количества сил, которые могут быть эффективны и автоматизированы. Хинди это какой-то любой аппарат.
Анонсы страниц
Mayroong 3 дня теплиц:
- Natural. Natupad sa ilalim ng impluwensya sikat ng araw. Для этого, каналы появляются каждый день и в любое время суток. Gayunpaman, это означает, что каждый день происходит каждый день — в течение дня.
- Биологикал. Binubuo ito sa paggamit of bio-sangkap, kung saan, kapag nabulok, nglalabas ng and углекислый газ.Может какаяханг это анг патаба. Для этого, он является гало-халонгом с даями и слоем 25 см, который составляет 20 см в длину. Откройте для себя молитву, чтобы совершить прозвище агнусов. Это очень важно, чтобы задавать температуру тегов.
- Текникал. Для того, чтобы использовать различные технические устройства, которые не используются.
Кабель на различных технических устройствах, в которых есть все, что вам нужно:
- Запускайте калан. Иса в знакомства карапат на параан. Котлы и котлы используются для дизельного топлива, любого количества углерода. Создавайте увлекательные трубки из калана с помощью сил и других материалов. Наша инициализация создана на основе паттернов.
- Газ. Karaniwang isinasagawa gamit ang isang the gas silindro at горелка. Кавалерная система представляет собой хинди, помогающий инициализировать, в любом случае, получать кислород, естественный и висеть с большим удовольствием.Sa kasong ito, dapat alagaan ang bentilasyon. Газовые конвекторы очень много работают над этим и имеют много преимуществ, а также автоматическую защиту.
- Электрикал. Управление естественными действиями, связанными с использованием системы, позволяет контролировать действия, выполняемые инициализацией. Нгунит кумакаин силы много курения, он инициирует хинди пантай на ипинамамахаги, и может быть положен на солнце. Дизайн тепловентилятора (для небольших теплиц) и тепловых пушек (для промышленных предприятий) позволяет вам быстро и эффективно работать.Эти устройства любят нагреватель (воздухонагреватель), они могут быть очень полезны в больших количествах, которые используются в игре. Обеспечивает полную настройку устройств, позволяет использовать обогреватель теплицы с устройствами защиты и защиты, а также термостата, который работает так, чтобы начать работу.
- Кабель. Позволяет создать катаньяган по требованию. Это играет и делает работу с энергиями, надежными регуляторами.Marami itong kalamangan — это приложение, которое вы можете использовать, чтобы помочь вам сделать это.
- Инфракрасный обогреватель. Наблюдайте за технологией, которая накапливает энергию. Сила представляет собой простой и понятный способ работы с популярным мастером-мастером. Для теплиц, выращивания пеликан IR, страны Кореи (Leeil).Вы можете использовать каждый из них, чтобы использовать его в кисаме. Это самый эффективный способ использовать их в своих целях.
Электрический обогреватель, кабель и инфракрасная пленка накапливаются на электричестве, имеют самые последние рекомендации, которые нужно использовать, и вы можете использовать их в качестве калан на хинди, но это не так, как солнечная энергия. приготовление курения.
Алам мо ба? В любой Европе, использование солнечной энергии является популярным для пользователей. Лучшая и наиболее многообещающая для использования солнечных коллекторов, которые могут быть открыты. Эта система может быть makabuluhang kawalan — hindi ito gumagana sa maulap na araw and karaniwang nai-install bilang isang karagdagang.
Установите обогреватель теплицы с использованием ваших каменных
Для работы с теплицей, вы можете создать лучшую печь буржуйки — бубафон.Металлический стержень, металл толщиной 4–6 мм, изготовлен из листового металла толщиной 4-6 мм, который является одним из двух листов для любого пользователя. Самодельный калан это подходит для теплиц. Для хороших теплиц, лучше всего на 200 литров воды. Получите запасы магазинов в большом метро из труб естественного диаметра, которые можно купить в любой точке мира.
Как приготовить теплицы из поликарбоната.
Sunud-sunod na teknolohiya pagmamanupaktura ay the sumusunod:
- Gupitin the tuktok na takip ng bakal na bariles, with gilingan.
- Baluktot nang bahagya gilid of bariles с помощью кувалды, и это может быть сделано с помощью этого инструмента, в кабине. Сделайте так, чтобы сделать бариллы.
- Сделать бутыль с трубкой пресса.
- Используйте два листа из 4 мм, размер листа которого 4 см больше, чем диаметр брусков, и вы можете использовать его для труб большого диаметра.Из разных материалов, как сварка сваркой (10 см) сварочных швов (10 см) для вашего газолинии, для того, чтобы повесить сварку, можно получить доступ к газу. Сделать трубку сварен в буташ с гитной. Это работает, как мы понимаем, как насусуног на кахой это татахан. Эта пресса представляет собой такую информацию, как лучшая позиция, туманность представляет собой самые разные сентиметры в этой области.
- С помощью барилов, используйте малый уголь для золы.Сделайте поддон из ясеня из листа толщиной 4 мм, повесьте навес и сделайте это на стене.
- Сделать музыку на этих страницах и услышать пиратскую трубку, которая звучит в обычном режиме. Сделайте это лучше, если хотите, чтобы оно было сделано для того, чтобы отобразить главное в жизни.
Особенности установки DIY
Очень важно, чтобы кирпичи были изготовлены из бубафона и производились на заводе-изготовителе………………………………………………………………………..Для более высокого уровня загрузки, вы можете использовать его целиком и полностью, и воздуховод может быть открыт только через несколько минут метро в любой теплице. Это представляет собой полную систему страниц, и на хинди только пампинит.
Теперь вы можете найти много чипов на барахолке и синдицие этого, и вы можете попробовать их, используя трубку, которую вы хотите, чтобы сделать так, чтобы они были на ней.Самый лучший и лучший вариант для вашей системы — это чипсы, веточки, суп, гранулы. Лучшие из лучших. Если вы хотите услышать трос, переводить на хинди в любое удобное для вас место. Часы могут висеть на 6 часов. Поршень позволяет перемещать воду из буфера.
Видео: Bubafonya и настройки использования
Наше устройство может создавать основной режим для отдыха в теплицах.Элемент для более удобного использования на хинди, позволяет использовать более эффективный способ управления с каким-либо контролем. Есть одна резервная система, позволяющая избежать курения, вы можете сохранить ее в зимней теплице.
Махалага! Эта книга может быть использована только для людей на хинди. Mayroong peligro ng back draft capag gumagamit ng nakatayo na basang kahoy. Управление этим является разумным.
Наклонение к погоде
С низкой температурой и морозной погодой в межсезонье, вы можете использовать самые лучшие и простые домашние диски на 9113: Для защиты человека от подкованных харднеров, которые помогут организовать прекрасную баню в теплице.Реалистичная оранжерея, которая открывается на всю жизнь, позволяет создавать растения на странице. Благодаря такому глазурованному дизайну, вы можете создать теплицы или жесткие покрытия. Наша система работает только с заданным планом, который позволяет легко установить или установить систему инициализации. Алам мо ба? Уникальная система страниц, предназначенная для работы с людьми, которые уже были известны английскому инженеру Эвелин в 1675 году.Сделайте это для создания теплицы. Оранжерея помогает улучшить качество жизни, сделать ее основным блюдом для отдыха на открытом воздухе и защитить ее в межсезонье. Вы можете использовать множество различных обогревателей для теплиц и систем с исходной загрузкой. Bilang karagdagan, the aparato sa pag-init ay maaaring gawin ng your sarili. Адамовская печь (горелочная). Адамовская мебель
Красная альтернатива
Но, природа, где твой закон?
Из полуночных стран восходит заря!
Солнце восседает на своем престоле?
И льды пронзили огненное море?
Холодное пламя накрыло нас!
За ночь наступил день на землю!
Как такое может быть, что воздух такой замерзший
Среди зимы огонь породил? …
Есть споры с водой…
(Вечерняя медитация Михаила Ломоносова
о Божьем величии в случае
великое северное сияние »)
1. Идея.
2. Детонация воды. Масло-вода. Варианты приложений малоизвестного физического процесса.
3. Дизайн. Принцип операция. Заправка, топливо, брикеты.
4. Развитие идеи Генератор Адамова.
5. Пиролиз практический вариант.
6. Венчание идеи Адамова. детонационный генератор.
7. Вывод: 1 000 Британский фунт против Возрождение Родина Россия.
На основе на продвинутых знаниях (советская, русская школа) цель — улучшить горение топлива с возможностью обращения с гетерогенными твердыми отходами и создать простую духовку, позволяющую значительно сэкономить на нагреве. На наших просторах, красивая, но холодная Родина Россия снижение затрат на отопление имеет первостепенное значение, следовательно, для патриота-государственного деятеля Адамова, человека русского менталитета и духа, такое открытое представление накопленных знаний, в отличие от жителей Запада. делать, это так естественно.Однако конструкция устройств проста и доступна. для изготовления в любом цехе, есть возможность масштабной доработки и приходим к хорошему результату российская альтернатива
А как насчет девушек? (или деньги)? Все остальное — позже.
В заказывайте статью избегайте излишних творческих излишков и слезливых историй о трудностях и неблагодарной судьбе исследователей, тем более что Я не в строгом смысле слова, ни учёный, ни исследователь не буду отчет о проделанной работе в стяжательной военной манере.
1. Возгорание, взрыв, детонация это ядерные реакции, во время которых есть небольшой дефект в массе кислорода, топливо является катализатором реакции. Следовательно, нужно платить больше внимание к приготовлению смеси и способу взаимодействия.
2. Реакция тем эффективнее тем выше скорость процесса, которая в свою очередь зависит от концентрации и температура кислорода и углеводородных веществ.Это значит сжечь выгоднее, чем сжигать; а взорвать — лучше, чем сгореть. Плохие смеси взрываются.
3. Топливо следует нагревать до возможный; воздух максимально охлаждается и, желательно, предварительно сжат.
Вот три важных правила; я назовем их условно правилами Пи (Понуровский). Эти условия частично соответствуют следующим известным процессам:
1. Нагнетание холодного воздуха в горячее топливо — кузнечные печи, доменные печи.
2. Бубафоня печь — подача свежего воздуха самотеком на перегретую поверхность топлива с автоматико-механическое движение поршневой камеры по мере сгорания топлива.
3. Впрыск топлива в сжатый воздух (дизельное топливо) и следующий технический этап — форкамеру активация топлива.
4. Детонация распыленного топлива в дизельный двигатель (дизель Тоскин).
5. Детонация распыленного топлива в воздух (вакуумная бомба). Следует отметить, что российские ученые, как всегда, лучшее понимание этих процессов и поэтому наша Папа-бомба превосходит их мама-бомба временами.
Да здравствует Русская наука!
6. Детонация кислородного баллона от незначительное количество масла.
7. Поставка перегретой смеси масла и воды в потоке нагнетаемого воздуха (Turbo & heat генератор Аракеляна).
8. Разработка компании Elsbett.
9. Прогрессивный движок LIAP.
10. Работа импульсного жиклера с подогревом топлива.
11. Паула Реактор Pantone.
12.Адам Бёрнер.
Шаг за шагом исследователи и техники интуитивно подходят к основной формуле горения (Понуровский) холодный сжатый кислород плюс импульсный впрыск перегретого топлива или наоборот — принудительная подача холодного воздуха к нагретому маслу. Интуитивно понятная картинка от никакие средства — это наука; наука — числа и закономерности.
А с числами и законами мы видим просто чудеса.
Смесь Тоскина беднее ТРИ раза (при таком же приросте мощности?).
Dad-Bomb в ЧЕТЫРЕ раза эффективнее (по что значит?) чем мама-бомба.
Детонирует порция 10 г масла или 40 кг кислорода?
Аракелян утверждает, что тепловая энергия многократно превышает теплотворную способность топлива.
Веселее с парнями, имеющими дело с Реактор Pantone. Вода в бербуляторе (водопровод, муф) не уменьшается и не нагревается выше 80С (такое бывает в закрытой пластиковой посуде при соприкосновении с частью выхлопа), и двигатель, и на удивление нам и по тестеры, умеющие пыхтеть без доступа воздуха?
http: // www.youtube.com/watch?v=zL2woaYyhhc
http://www.youtube.com/watch?v=JGCXJ1AX4X4
Отличие товарища Адама в том, что во время впрыска холодной воды горелка детонирует и белеет, отчетливо указывая на увеличение емкости в разы.
Препродакшн Модель
Детонация вода (условный срок)
Это процесс — недостаточно изученное физическое явление, требующее особого внимание из-за уникального положения, чтобы значительно увеличить эффективность сгорания.При опрыскивании горячей водой перегретого масла (см. Выше 300C) происходит взрывное испарение с выделением избыточной энергии, превышающая в несколько раз энергию нагрева масла. Ссылка на оригинал — метод производства тепловой энергии (Ladislao). Но понимание происходящего процесса происходит после детального изучения изобретений Понуровского, в частности, метод регенерации топлива.
Таким образом, под руководством товарища Адама на деньги брата Артема Адамяна и при технической и инженерной поддержке великого советского специалиста технолог Костандян Климент, мой дядя, мы были проведение длительных вонючих и опасных экспериментов и измерений.
Результаты и выводы : Физический процесс взаимодействия определенно не теплообмен, а взрывная реакция огромной мощности на поток пара при 170-180С. Грубые измерения эффективности показывают: энергия пар превышает энергию нагрева в 2-3 раза без теплоизоляции камера. Согласно описанию изобретения он должен быть не менее до 10 раз. Между тем есть небольшая проблема: при нагреве выше 250С происходит выброс пиролизных и полуокисленных коррозионных газов.С участием закачка воды, в начале реакции наблюдается масляный туман (утечка масла из реактора). Без нагревания реакция быстро сходит на нет (в около 5 минут). При понижении температуры масла ниже 220 ° C он останавливается, и закачиваемая вода накапливается в реакторе. Для управления нагревом и впрыском трудно.
Соображения : Предельная температура нагрева 300-320С, указанная в описании изобретение Ладислао имеет две причины: более высокие температуры вызывают спонтанные самовозгорание масла, а если перекрыть доступ воздуха — деградация масла (пиролиз) начинается.При этом при такой реакции (обрызгивание холодной водой в среде перегретого газа для получения максимальных результатов — разрушение молекулы воды) товарищ Понуровский рекомендовал температура до 550С. В нашей попытке поднять температуру реакции получился фонтан смеси водяного пара, масляного тумана и коррозионного газ вместе с реактором загорелся. Вся территория становится покрывается масляной пленкой, и соседи вызывают пожарную охрану. Обычно после такого безобразия рождаются здоровые идеи — не надо хилых страдать, Европейская, зеленая идея — энергия без огня. ср красные (истинный цвет жизни и здоровья) , и нам незачем избегать страсть, огонь и борьба.
Следовательно, было решено обуздать и контролировать этот взрывной процесс в пожаре. Реакция сами продукты (пар, масляный туман и пиролизные газы) не горят, а попадание в сильный пожар вызывает быстрое (почти взрывное) усиление огонь, как по температуре, так и по мощности. Идея родилась, и это было красиво — гибрид печки с наддувом и большим энергетическим процессом взрывного взаимодействие холодной воды и перегретого масла.
1. Реактор Ladislao размещен внутри горелка в виде верхней крышки с распылительным устройством.
2. Pantone Реактор в форме трубопровода.
3. Плита наддувная горелка, работающая на угле, древесине или брикетах и оснащенная удобный канал для доливки топлива.
4. С умеренный наддув работает в режиме духовки.
5. С в режиме горелки работает средний наддув.
6. Сильный наддув позволит второй турбина для получения дополнительной энергии генератора Адамова.
Рис.1. Горелка Адамова.
Важно примечание : автономное электроснабжение, отличающееся доступностью а практическое устройство — нерешенная проблема.
1. Дизельные или бензиновые генераторы бывают шумно, топливо дорогое, требует обслуживания, а стоимость произведенной энергии намного выше, чем питание от сети.
2. Солнечная, ветер — не обладают необходимой мощностью, зависящей от погодных условий и очень дорогой.
3. У Turbocon есть интересные разработки. (нет коммерческого девелоперского проекта).
4. Индигирка печь — дорого, мало мощность.
5. Гидростанция Whirlpool — очень перспективно для горных ручьев, но не подходит для домовладения и города.
6. Мини-АЭС тоже экзотика.
7. Развитие технологий топливных элементов хорошие перспективы, но не быстро и не массово.
Выработка электроэнергии 10-20% тепла за счет сжигания топлива будет небольшой переворот — удобно, бесплатно электричество.
Главное условие — не усложнить оборудование и сохранить доступную стоимость получаемой энергии.
Рисунок 3 Генератор Адамова.
Наблюдается и проверено — водонефтяная смесь, если она попадает в среду с высоким температура, взрывается (щелчки), что эквивалентно описанному процессу в изобретении Ладислао.
Горение в топке Адамова как горение в топке Бубафоня: слоистое сгорание (сверху вниз) Поэтому для общедоступной версии рекавери печь лучше реализовать простое добавление смеси вместо сложная инъекция.
Рисунок 2.1 Печь Адамова.
Что касается фактических (применимых) остатков твердой массы моих трудов, я предложить для дальнейшего изучения и будущего применения упрощенную конструкцию печь и регенерационная печь.(рис. 2.2)
Разработано и реализован по-советски — дешево, надежно и практично. Три советских Над проектом работали инженеры, использовались советские станки и металл.
Заправка. Рекомендуемый состав топлива и последовательность заправки.
1. Смесь: смешанная древесина и отходы (бумага картонная упаковка, тряпки, резина, кожа, органические, сельскохозяйственные отходы).
2. Смесь: опилки, пластик (опилки желательно пропитанные отработанным маслом)
3. Смесь: масло-вода примерно 50/50. (не критично, можно экспериментировать с разными соотношениями)
4. Древесина или брикеты
Если духовка теряет мощность (обычно с низким содержанием калорий и через несколько часов эксплуатации) требуется дрова или брикеты.
Шаг вперед — производство мусорных брикетов следующими технология:
Цех по переработке ТБО будет производят пиролизное масло из пластмасс.Далее — ассорти из бумаги, картона, дерева, резину, ветошь, сельскохозяйственные отходы и т. д. измельченные и смешанные с горячими остатками тяжелые фракции (углеродный остаток в смеси с мазутом и парафином). После охлаждения мы получаем экологически чистые, калорийные брикеты, которые отлично горят в наших печь. Оставшаяся после обработки фракция — моторное топливо. Получать два сетевых бизнеса:
1. Переработка и переработка твердых отходов с производством твердых и жидкое топливо.
2. Производство и продажа печей, генераторов и топливных брикетов к ним.
Утилизация продуктов человеческой деятельности важнее раздуваемой проблемы неэкологическое производство углеводородной энергии. Тезис об окончательности и тупике для углеводородной энергетики в корне ошибочен. Абиогенное происхождение углеводородов является более полной и системной презумпцией, поэтому абсурдно тронутый ветряными мельницами и проектами солнечной энергии так же уродливо, как дать увеличить использование мяса и одежды из натуральных (животных) материалов.Что в этот случай следует считать более гармоничным, естественным (экологически чистым). дружелюбный) — дело вкуса, традиций и мировоззрения. Но это аккуратнее и эффективнее — сжечь — давно пора.
Пожалуйста обратите внимание на чистые выхлопные двигатели, работающие с реактором Pantone, Pulse форсунки с турбонаддувом с подогревом топлива и теплогенератором Аракеляна, и, наконец, серия изобретений нашего соотечественника Понуровского. Применим его изобретение способ переработки топлива в процесс пиролиза, но полностью упрощающий дизайн для удобства.
Рисунок 4 Практический пиролиз
1. Давай откажемся закрывать реактор с десятками орехов — это долгий и неудобный процесс. Мы сделаем легко снимаемый люк.
2. Давайте откажемся от разгрузки реактора через кран, чтобы дождаться охлаждения, и давайте прикрепим нижний люк для очистки реактор из угля и золы.
3. Давайте добавим впрыск газированной воды (растворенный углекислый газ).Метод работы Понуровского — все необходимое условия есть.
4. Применим двойной турбо наддув механизм активации горения (либо центр уравновешен, либо распространен в высота)
5. Сделаем дверь снаружи кожух топки для открытия нижнего люка и удобной очистки от золы.
С впрыском воды с углем диоксида в реакторе пиролиза, предварительно нагретого до 550 ° C, при котором выделяется пиролиз. газы (смесь углеводородов, водяного пара, углекислого газа и др.) мы будем получить даже тройной эффект.
1. Дополнительная тепловая энергия (Ladislao). Водород из диссоциированной воды (кислород немедленно реагирует с горячим углеводороды) проходит через конденсатор и сжигается в топке.
2. Образующийся пар (вода не диссоциирован в полном объеме) благотворно влияет на процесс пиролиза (известный факт).
3. На завершающей стадии пиролиза, когда в реакторе остаются преимущественно углерод и зола, этот же пар очищает реактор, превращающий диоксид углерода в синтез-газ.Это требует повысить температуру печи.
Улучшенная дегазация позволит использовать метод пиролиза для дизельного топлива. двигатели для работы в газодизельном режиме (разработка Владимира Кокарева), особенно привлекательное и конструктивно законченное решение для широкого применения в национальном экономия.
An Идеальное место для таких установок — дачные теплицы, где, по мнению автор, школьники и студенты должны работать, получая реальную переживания, знания о природе и круговороте всех процессов.Можно пойти вперед и сделать пилотный проект полностью автономной деревни с независимая от внешней мировой экономики его внутренняя энергия, тепло и вода снабжение, экологическое производство и отсутствие мусора как такового (полная утилизация) и уж точно безопасно — нам больше не нужны коммунистические постройки с бедными люди.
Это желательно совместить эту идею со срочным возрождением русского крестьянства. в союзе с казаками. В этом основа устойчивого развития России единственная и неповторимая Мать, Родина для всех говорящих и мыслящих по-русски те, кто чувствует родство с его культурой и традициями, многонациональный, но определенно русский сообщество.
Идея самая лучшая независимая генератор с возможностью производить тепло, электричество, пар и дистиллированный вода.
Максимальная мощность, чистый выхлоп, максимальная топливная эффективность при минимальных затратах на единицу мощности.
Конструкция имеет двойной турбо наддув (подготовка воздуха), регенерация топлива и масла, реактор воды. Топливо — синтез-газ
Это довольно технологичный дизайн, и я самостоятельно не справиться с этой задачей требуется техническая и материальная ресурсы, и, самое главное, единомышленников, поэтому описание идеи короткий и интригующий.
Наиболее эффективное сгорание, беззатратный пар, двойной турбо наддув (идея Адамова), рекуперация топлива — новый тип когенераторов и тригенераторов.
Рисунок 5 Генератор детонации
Взрывоопасное, частичное (или полное) разложение воды при соединении веществ разной температуры на его составляющие, водород и кислород — суть изобретений Понуровского — это либо игнорируемая, либо неправильно понимаемая энергетическая революция.Подтверждающие доказательства: Реактор Pantone, турбогенератор и теплогенератор Аракеляна, реактор Ладислао и наконец, веселая народная забава — горячая вода замерзает на морозе (холодная вода не замерзают так же быстро) — так называемый эффект Мпембы ».
Бубафон печь в теплице. Как правильно установить печь и дымоход. Сечение дымохода
Запеканка длительного горения Бубафоня
Стремление сэкономить топливо подталкивает жителей пригородов к поиску оптимальных способов обогрева жилья. Одно из них — печи длительного горения. Они появились на рынке достаточно давно и используются в основном для обогрева небольших помещений — гаражей, складов, мест зимовки пчел и так далее. Сделать их своими руками не так уж и сложно. Главное знать их конструкцию и схему работы.В качестве топлива в таких печах используются дрова, опилки, листва, шелуха и другие горючие органические материалы. Среди печей длительного горения есть модель «Бубафоня». Давайте разберемся, что это такое, и как сделать печь Бубафоня своими руками.
Среди подмосковных жителей почему-то бытует мнение, что Бубафоня — обыкновенная буржуйка. Но речь идет о печах длительного горения, и буржуйка не из таких. Поэтому мы будем считать это мнение ошибочным и на этом закроем вопрос.
Преимущества и недостатки
Начнем с этих вопросов, ведь перед тем, как приступить к постройке котла, необходимо определиться, стоит ли все это начинать.
Итак, положительные стороны Bubafoni:
- Простой дизайн, который легко сделать вручную
- . Возможность использовать разные виды топлива из разряда дешевых и общедоступных. А некоторые дадут вам бесплатно
- Для изготовления такого котла длительного горения понадобятся подручные материалы, которые всегда можно найти на дачном участке… Даже если их нет, они недорогие, поэтому их можно купить.
- . Небольшие габариты каменки и ее небольшой вес. Отсюда высокая мобильность устройства — вручную перенести Bubafon может даже один человек.
- .Простота и удобство использования. Положил, например, дрова, поджег их и радовался жизни. Одной закладки при правильном размещении хватит на полдня.
К сожалению, были недостатки.
Минусы «Бубафони»
- В первую очередь следует сказать о низком КПД.В самом котле и внутри трубок для отвода продуктов сгорания образуется конденсат, что снижает КПД нагревателя .
- Сам котел длительного горения Бубафоня в классическом исполнении не очень хорошо аккумулирует тепло. Поэтому специалисты советуют окружить его водяной рубашкой или кирпичной кладкой, что значительно увеличивает стоимость единицы .
- . Котел должен быть установлен на прочном негорючем основании. Чаще всего его кладут на бетонный или кирпичный фундамент.
- Очистить котел очень сложно, особенно его днище, где скапливается сажа и зола от сгоревшего топлива.
- Обязательное условие — исправная система вентиляции в помещении, где установлен котел Бубафоня.
Устройство печи и ее элементы
Печь для опилок длительного горения
Из чего состоит котел длительного горения «Бубафоня»?
- Топливный бак, в котором непосредственно сжигается топливо.
- Дымоход.
- Зажимной груз.
- Съемная крышка.
Принцип работы такого котла заключается в том, что дрова или другой вид топлива, помещенные в него, горит сверху. При этом на них давит груз, который постепенно перемещается к нижней части устройства. Как только загрузка топлива закончилась, груз достигает металлического дна. Остается только пепел.
Всем известно, что горение поддерживается кислородом. Итак, в напорной гири проделывается отверстие, и устанавливается труба, по которой свежий воздух будет поступать в то место, где горит пламя.Вся конструкция должна быть герметичной, и единственный выход — дымоход. Но тут возникает вопрос, как дым выходит из зоны горения? Между прижимным грузом и стенками топки остается небольшой зазор, который является самым выходом.
Как сделать котел своими руками
Сразу оговоримся, что котел длительного горения Бубафон изготавливается только из металлических деталей. Поэтому когда встает вопрос о его создании своими руками, необходимо иметь навыки работы болгаркой и сварочным аппаратом.Другого варианта соединения узлов и частей печи нет.
В качестве самого простого варианта топливного бака может использоваться обычная металлическая бочка объемом 200 литров. Чтобы сделать из него котел, необходимо по контурной линии отрезать верхнюю часть, для чего потребуется болгарка. Самое главное — правильно сделать разметку, по которой будет производиться разрез. Достаточно небольшого отклонения от верхней крышки.
Теперь в срезе кровли посередине проделывается сквозное отверстие диаметром 100 мм.В самом стволе точно такое же отверстие делается сбоку для дымохода. Крышка убирается в сторону, так как она вам понадобится чуть позже.
Духовки из бубафона производим сами
Теперь перейдем к изготовлению прижимной массы. Для этого понадобится листовое железо толщиной не менее 4 мм, труба диаметром 100 мм и длиной на 30-50 см выше металлической бочки, а также несколько швеллеров. Они будут приварены к грузу, чтобы создать вес и небольшой зазор между деревом и самим грузом.То есть будет создана зона горения топлива.
Из металлического листа вырезается круг, диаметр которого должен быть немного меньше диаметра ствола. В нем по середине проделывается отверстие диаметром 100 мм. Кусочки швеллеров сваривают крест-накрест.
Обратите внимание, что швеллер не должен закрывать сквозное отверстие и выступать за края разрезанного блина.
Обычно достаточно четырех каналов. Если вам кажется, что вес нагрузки маловат, то можно увеличить количество каналов.
Теперь переворачиваем металлический блин с закрепленными на нем швеллерами и с противоположной стороны свариваем трубу диаметром 100 мм. Прижимная масса готова. После этого к боковому отверстию ствола необходимо приварить небольшую трубу того же диаметра, что и само отверстие. Длина патрубка может быть в пределах 15–20 см.
Собираем котел Бубафоня
Котел в сборе
Чтобы собрать всю конструкцию топки в единое устройство, необходимо предварительно залить топливо.Если вы используете дрова, то складывать их нужно так, чтобы между ними оставалось как можно меньше места. Плотность упаковки — залог длительного горения. Но в случае с дровами место все же остается, так что это не лучший вид топлива в данном случае.
Но опилки идеальны. Единственное, на что нужно обратить внимание, так это на их утрамбовку. Опилки следует укладывать слоями и каждый слой плотно утрамбовывать. Затем их верхний слой поджигается, и нужно время, чтобы топливо немного выгорело.После этого сверху устанавливается нажимной груз, а поверх него — крышка. Последний элемент должен плотно прилегать к краям котла, чтобы дым не проходил через стык в комнату.
Конечно, прежде чем зажигать топливо, нужно установить дымоход и вывести его за пределы здания.
Разновидности котлов
Котел Бубафоня из бочки — не единственный вариант. К тому же круглое сечение топки хоть и является оптимальным, но не считается строгим требованием.Такой котел можно сделать и из металлических листов прямоугольной формы, сварив их между собой. Если нет ствола, можно использовать трубу большого диаметра. То есть вариаций на тему форм котла Бубафон очень много. Единственное условие — высота, которая должна быть больше ширины устройства. И чем выше плита, тем дольше будет тлеть отработанное топливо.
Готовая печь длительного горения
Другие конструктивные изменения включают трубу, приваренную к нажимному грузу.Он не обязательно должен быть круглым. Если от постройки дома у вас остались уголки, то из них можно сварить квадратную трубу. Вам просто нужно сделать для него квадратное отверстие в блинчике. Это первое.
Во-вторых, чтобы облегчить процесс очистки бубафони, можно сделать прямоугольное отверстие в его нижней части, установив на него дверцу. Здесь важно обеспечить качественную герметизацию. Иногда недостаточный опыт не позволяет этого, поэтому можно эксплуатировать котел без такого отверстия, тем самым снижая риск возгорания.Если вы все же решили это сделать, рекомендуем в качестве пломбы использовать асбестовый шнур.
Заключение по теме
Изготовить котел длительного горения Бубафон своими руками — не самая сложная задача. Но при изготовлении конструкции необходимо помнить о мерах безопасности при последующей эксплуатации устройства. Например, соединение крышки и корпуса котла. Это должен быть плотный стык без малейшего зазора, чтобы продукты горения не проникали в комнату.Здесь также можно добавить стык между крышкой и патрубком для подачи кислорода в зону горения.
На первый взгляд простой дизайн и простые материалы, но все должно быть выполнено на высоком качественном уровне. И если вы не очень хорошо умеете работать со сварочным аппаратом, то строить эту печь не стоит. Качество будет низким, и требования безопасности не будут соблюдаться.
Невозможно добиться комфортного микроклимата в доме зимой, если в нем не продумана грамотная система отопления.Хорошие обогреватели стоят недешево. Также стоит отметить, что из-за постоянно растущих тарифов на электроэнергию отопительные приборы, питаемые от сети, просто становятся экономически невыгодными. Хорошее решение проблемы отопления в частных домах — печь Бубафоня, которую просто необходимо сделать своими руками. Его особенность заключается в том, что при минимальном расходе топлива Бубафоня может обогреть очень большую площадь от газового баллона. Это очень привлекательно для тех, кто умеет и любит экономить.
Принцип работы духовки Бубафоня
Те, кто хоть немного знаком с физикой, знают: при нагревании теплый воздух поднимается вверх, а холодный остается внизу. Принцип действия устройства основан на этом физическом законе. Топливо нагревает воздух, который поднимается вверх и попадает в специальную выхлопную трубу. Холодный воздух через специальный входной патрубок попадает внутрь и, подогреваясь, попадает в выходной патрубок. Таким образом, осуществляется не только сжигание топлива, но и циркуляция воздуха.Интенсивность горения, а соответственно и температуру воздуха можно регулировать с помощью специальной заслонки, которая находится на подающей трубе.
Работа печки Бубафоня прекращается только после того, как дрова полностью сгорят, и поршень с грузом упадет на дно топливного бака. Если пожар нужно потушить принудительно, достаточно перекрыть доступ кислорода. Для этого закройте заслонку на выпускном патрубке. Также с помощью воды можно экстренно потушить пламя.
Достоинства и недостатки духовки
Эксплуатация печи Бубафоня имеет следующие преимущества:
- Дрова в печи Бубафоня горят долго.
- Для того, чтобы изготовить такую конструкцию, не потребуется специальных инструментов.
- Корпус агрегата достаточно легкий.
- Печь Бубафоня обладает уникальной способностью хорошо обогревать помещение с минимумом топлива.
- Бубафоня — очень мобильная конструкция, которую можно легко перемещать куда угодно.
Недостатки печи Бубафоня:
- Эксплуатация возможна только в хорошо проветриваемом помещении.
- После того, как пламя погаснет, корпус очень быстро остывает.
Подготовка к установке духовки
Перед тем, как приступить к изготовлению духового шкафа Бубафоня своими руками, необходимо обязательно оборудовать подходящее рабочее место. Самый лучший выход — проводить все мероприятия на свежем воздухе в теплое время года. Единственное, что нужно помнить, — доступ к электросети должен быть бесплатным и удобным. Если посидеть на улице невозможно, то хорошим местом для работы может стать подсобное помещение или гараж.Также нужно подготовить необходимые инструменты и материалы. Обязательно подготовьте чертежи печи бубафон с размерами.
Для того, чтобы без особых усилий сделать печь Бубафон, вам потребуются следующие материалы и инструменты:
- Ствол железный, цилиндрический, достаточно большой; Металлический швеллер
- ;
- фреза или болгарка по металлу;
- двухрезовая стальная труба;
- сварочный аппарат; Фольга
- ;
- молоток или кувалда;
- кирпич огнеупорный и раствор для его укладки;
- уровень;
- Чертеж печи Бубафоня.
Как собрать печь Бубафоня своими руками
После того, как рабочее место и материалы подготовлены, наступает момент, когда можно приступать непосредственно к сборке печи Бубафоня. Вне зависимости от того, поменяет ли утеплитель свое расположение или нет, обязательно наличие фундамента.
Внимание! Фундамент не только помогает установить обогреватель в нужное положение, но и является важной мерой пожарной безопасности.
Обустраиваем фундамент
Чтобы цоколь для печи Бубафоня был прочным и долговечным, при его строительстве следует использовать только огнеупорный кирпич.Форма в данном случае особого значения не имеет, главное, чтобы материал был целым.
Чтобы лучше понять, как правильно обустроить фундамент, рассмотрим наглядный пример постройки цоколя под печь Бубафоня объемом около 200 литров.
Перед тем, как приступить к выкладке стен фундамента, нужно сделать небольшое углубление, примерно 20 см. Периметр котлована 4 метра (по метру с каждой стороны). В результате у вас должен получиться квадрат с такими же сторонами.Затем на дно равномерно насыпается щебень, после чего заливается жидкий раствор. Цементная смесь должна доходить до края бороздки. После полного высыхания раствора основа под тональный крем полностью готова.
Для возведения стен фундамента применяют огнеупорный кирпич, который выкладывают по периметру подготовленного основания. Очень важно проверять качество работы по уровню. Как правило, кладут не более двух-трех рядов кирпича.Им тоже нужно время, чтобы осознать, после чего можно сказать, что строительство фундамента окончено.
Монтаж основной части печи
Плиту можно собрать из любой емкости, очень часто Бубафоны делают из газового баллона. Подготовьте газовый баллон, цилиндрическую бочку или трубу необходимого диаметра. Если в работе используется отрезок трубы, то один край его необходимо приварить с одной стороны крышкой из листового металла.
Если в работе используется бочка или газовый баллон, то в этом случае, наоборот, аккуратно вырезается дно.После этого из металлического листа вырезается круг диаметром чуть меньше диаметра бочки или газового баллона. В середине круга болгаркой вырезаем отверстие такого размера, чтобы к нему можно было приварить подводящую трубу. Он будет спроектирован так, чтобы кислород попадал в топливный бак.
Металлические швеллеры привариваются по краям врезной окружности. Это нужно сделать так, чтобы получился крест. Такая конструкция позволит равномерно распределить топливо по топке, а также обеспечить необходимое количество кислорода.
Завершающим этапом проектирования основной части печи Бубафоня является изготовление крышки. Для этого в вырезанном дне проделывается отверстие, диаметр которого совпадает с диаметром подающей трубы.
Подготовка ям для дров и золы
Также важно подготовить в печи Бубафон специальное место, куда будут попадать дрова или другой топливный материал. Для этого установите каменку в рабочее положение и на расстоянии чуть ниже середины на боковой стенке сделайте отметку, по которой будет вырезано отверстие.
Совет! Наиболее подходящие для него габариты — около тридцати сантиметров в ширину и в высоту. Как показывает практика, именно эти параметры позволяют закидывать в топку дрова практически любого размера.
Чуть ниже места для дров следует сделать специальное место, через которое печь Бубафоня можно будет очистить от продуктов горения: золы и золы. Этот принцип обустройства очень похож на буржуйку. Если есть возможность и желание, то оба отверстия на боковой стенке можно закрыть дверцами.Это придаст печи Бубафоня эстетичный вид и предотвратит выпадение горящих углей или стружки. Очень важно установить на двери специальные защелки, которые будут надежно закрывать их.
Дымоходное оборудование
Чтобы избежать деформации корпуса из-за избытка дыма, нужно смонтировать дымоход, предварительно подготовив для этого место. Примерно в 20 см от наивысшей точки печи Бубафоня разметьте вдоль нее отверстие для дымохода.Диаметр отверстия и выреза должны быть одинаковыми.
Очень важно, чтобы дымоход имел колено. Для того, чтобы его смонтировать, понадобится два разреза. Один более длинный ставится вертикально. К нему под углом приваривается меньший срез.
Важно! Самый маленький участок трубы должен быть длиной не более 45 см, иначе дым будет проходить с проблемами.
Трубы сварены под углом 45 °. Обязательно следите за тем, чтобы края обоих надрезов плотно соприкасались друг с другом.Только после проверки всех параметров трубы можно сваривать. Более длинная прямая труба должна выходить наружу через крышу дома. Если длины не хватает, ее всегда можно прибавить, приварив еще один пропил. Отверстие в потолке, через которое дымоход выходит на крышу, необходимо замазать огнеупорной глиной.
Если дымоход должен выходить наружу через окно, то дымоход устанавливают не вертикально, а в горизонтальном положении. В этом случае помните, что дым будет выходить намного медленнее.
Совет! Печь длительного горения Бубафоня имеет свойство очень сильно нагреваться, особенно если процесс горения происходит непрерывно. Поэтому очень желательно установить вокруг печи Бубафоня отражатели. Для этого используется фольга, которую раскладывают под дном духовки и по всему периметру.
Как топить бубафон
Для растопки печи Бубафоня можно использовать дрова различных пород или изделия деревообрабатывающей промышленности (опилки, пеллеты и т. Д.).) Главное следить за качеством материала. Древесина должна быть хорошо просушена, ведь от этого напрямую зависит производительность агрегата. Дрова нужно положить в емкость, хорошо утрамбовать и разжечь. Для того, чтобы процедура розжига произошла как можно скорее, можно добавить в бак ветошь или бумагу.
После того, как дрова начали гореть, плотно закройте крышку печи Бубафоня и дайте пламени загореться в полную силу. Только после этого можно регулировать интенсивность пламени с помощью заслонки.
На видео показаны результаты экспериментов по использованию разных видов топлива для печи
Секреты эксплуатации печи Бубафоня
Чтобы пользоваться печью Бубафоня было комфортно и эффективно, достаточно запомнить несколько простых советов:
- Дымоход лучше сделать разборным. Это упростит очистку;
- После установки каменки нагрейте ее древесиной разной влажности. Так вы сможете узнать оптимальное количество топлива для разной интенсивности сгорания;
- не забываем проверять состояние печки Бубафоня в процессе эксплуатации;
- из соображений пожарной безопасности поместите рядом с устройством огнетушитель или песочницу.
Заключение
Отопление печкой Бубафоня — простой и легкий способ быстро обогреть дом с минимальным расходом топлива. Смонтировать печь из бубафона длительного горения своими руками возможно, главное придерживаться рекомендаций специалистов и последовательности этапов сборки.
Как сделать печь Бубафоня своими руками для теплицы, мы узнаем в следующем видео
«Бубафоня» — или печь длительного горения.Впервые предложена в Интернете колымским мастером Афанасием Бубякиным. Он первым поделился со всеми чертежами испытанной печи. А поскольку ник Афонасий в сети «Бубафонжа» (бубафонжа), отсюда и пошло название этой печи. Принцип работы печи чем-то похож на литовские котлы «Стропува», только «Бубафоня» намного проще. На самом деле в Интернете я нашел десятки похожих духовок, разных форм и даже названий. Но принцип их действия всегда оставался примерно одинаковым.
На мой взгляд, главное достоинство этой печи — очень долгое время горения. Радует и простота изготовления духовки. В схеме «бубафони» отсутствуют дверцы, воздуходувки и зольник. Для его изготовления можно использовать любую металлическую емкость под рукой и пару, три металлических трубы … Многие делают печь из старых газовых баллонов, металлических бочек, старых широких труб и даже квадратных железных ящиков. Только время горения зависит от объема топки.
То есть чем больше топлива в него можно залить, тем дольше он будет гореть.Например, плита из газового баллона может гореть 5-6 часов, а из 200-литровой бочки — 20-24 часа. Некоторые владельцы печей утверждают, что при сжигании дров твердых сортов эта печь может гореть двое суток на одной закладке. Кстати о топливе. Печка «Бубафоня» хороша тем, что может работать на любых дровах, ветках, стружках, опилках, картоне и даже на старых книгах и ДСП.
У этой замечательной духовки есть и свои недостатки. Первый недостаток — эстетичный внешний вид. По внешнему виду и принципу действия такая печь не украсит ваш дом.Но на самом деле это преодолимо. Позже я покажу примеры, как его правильно использовать. Поэтому сразу оговоримся, что эта печь предназначена в первую очередь для обогрева технических помещений, гаражей, подвалов, теплиц, построек с животными и т. Д. Для использования в домашних условиях необходима небольшая пристройка, котельная или хотя бы подвал. .
Второй очень серьезный недостаток этой печи — низкая теплоотдача. Печь «бубафоня» горит медленно, и из-за ее принципа действия тепло выделяется не по всей площади, а только в определенных местах.По подобной схеме отвода тепла можно обогреть не очень большое помещение. Но если правильно подойти к вопросу отопления, то и это преодолимо. И так по порядку.
Печь Бубафоня, классический вариант.
Главное при создании этой печи — не брать слишком тонкие трубы для поршня и дымохода. Но это условие несложное. Ведь все размеры приблизительные. Например, если вы делаете печь из бочки на 200 литров. Тогда старайтесь, чтобы в дымоходе оставалась труба на 100-150 мм.а поршень 50-60мм. Если от цилиндра, то дымоход нельзя делать шире 100 мм, а поршень шире 50 мм. В этой духовке есть определенные нюансы. Горение происходит в двух камерах. Твердое топливо горит под поршнем, а газы, выходящие из нижней топки, горят над поршнем. По этой причине отверстие в крышке, через которое вставляется поршень, не должно плотно прилегать к поршню. Над поршнем должен быть зазор не менее полсантиметра для всасывания воздуха в топку.Если вы все же решили не оставлять зазора между крышкой и поршнем, то вам нужно сконструировать в крышке простейшую воздуходувку. В противном случае ваша плита будет дымить, задыхаться и дымить. Причина этого кроется в недостатке кислорода для сжигания газов, выбрасываемых нижней топкой. Вот классический пример такой ошибки.
Николай Воронин в своем видео рассказывает, что печь начинает дымить на полной тяге, и только когда он перекрывает тягу, переводя печь в режим медленного горения, ситуация нормализуется.Обратите внимание, что зазор на крышке Николая очень маленький, а юбка крышки очень тугая. А для этого при полной тяге через нагнетатель образовалось столько пиролизных газов, сколько они не успели сгореть в верхней камере. Зазор узкий, и кислорода не хватило, чтобы сжечь все газы. Поэтому, когда Николай убрал тягу, газов стало меньше, и они стали отлично выгорать в верхней камере. Но это не так критично. Ведь на полной тяге печка используется только для розжига и быстрого прогрева.Основная функция этой печи — медленное горение, для которого не нужен сильный обдув. Тем не менее, не следует делать зазор в крышке слишком узким.
Кстати, обратите внимание как светится крышка печки. Этого легко добиться, очистив крышку металлической щеткой при нагревании. Ржавчина быстро удаляется, а очищенный металл покрывается оксидной пленкой, становясь блестящей.
Вот видео, в котором производитель таких печей рассказывает, зачем нужен воздух во второй камере.
А теперь поговорим о теплоотдаче печки бубафоня.Как мы поняли из всех видео и схем, эта печка нагревается только по мере сгорания топлива. Единственные детали, которые постоянно нагреваются в этой печке, — это поршень, давящий на топливо, крышка и дымоход на выходе. Стены печи нагреваются только по мере того, как горит дрова. Но как получить от печи все тепло? Ведь нагрев нужен сразу, а не при выгорании топлива. Первым в этой схеме является поршень. Он подвижен и постоянно в печке. С него тепло не убрать.Кроме того, поршень выполняет важную функцию. Светящийся красным, он давит на топливо, образуя пиролизные газы, которые, в свою очередь, горят в верхней камере и нагревают печь. Снять тепло с крышки тоже проблематично. Его нужно открывать и закрывать для хранения дров. Остается только дымоход. Именно на него возлагается основная ответственность за теплообмен. Наши мастера давно это поняли и придумали много разных способов отвода тепла от дымохода. Это и пассивные радиаторы, и вентилируемые радиаторы, и водяные рубашки.На мой взгляд, самый эффективный способ обогрева дома — это водяная рубашка. Давайте подробнее рассмотрим этот метод.
Как видно на рисунке, к дымоходу приваривается кожух от небольшого баллона или другого металлического баллона. К этому цилиндру приварены трубы, по которым будет циркулировать вода. Водяной насос подает воду в рубашку, она нагревается от дымохода и поступает в батареи дома. Таким образом, мы получаем отопление дома 24 часа в сутки. Хочу отметить, что дымоход этой печи постоянно нагревается до приличной температуры, начиная с момента возгорания и заканчивая окончанием горения.Если куртка на дымоходе сделать длинной и достаточно узкой, это позволит обогреть достаточно большие площади.
Среди мастеров есть и те, кто сделал водяную рубашку вокруг всей печи. Но, на мой взгляд, это намного сложнее и не у всех есть такая возможность. Другие мастера пошли другим путем. Рубашку привязывали к дымоходу с закрытой тарой. Контейнер был утеплен и через него пропущены трубы с водой от отопления и водой на нужды дома.Таким образом, они получили теплоаккумулятор, в котором вода постоянно находится на максимальной температуре. И уже от этой батареи они могут обогревать отдельные системы отопления для дома и воду в кранах. В таких случаях утепляют саму печь, закапывая ее на метр в землю и засыпая кирпичом. Это позволяет сохранить большую часть тепла, выделяемого печью, и направить его в дымоход. Эта система более универсальна, так как позволяет регулировать нагрев воды в системе отопления и в системе водоснабжения до нужной температуры.
На этом видео его хозяин показывает именно такую систему отопления дома.
Конечно, у этой печи есть множество других применений. Мы рассмотрели самые простые из них. В любом случае, у этой духовки много преимуществ перед аналогами. Основные преимущества — простота изготовления, а также продолжительность работы от 20 часов и более без перерыва. Это позволяет использовать духовку в разных условиях и для разных нужд. К тому же у этой духовки невероятное количество вариантов модернизации.Посмотрев видео с этой духовкой, вы удивитесь, какие устройства модернизируют эту духовку.
Довольно часто с наступлением холодов требуется отапливать загородный дом, гараж, теплицы или какие-то подсобные помещения. Для решения этой проблемы можно приобрести дорогую электрическую каменку или сделать печь длительного горения своими руками. Благодаря своей экономичности, простоте конструкции, безопасности, экологичности и экономичности печь Бубафоня пользуется большой популярностью у экономных владельцев.Его конструкция такова, что одной закладки твердого топлива хватит на довольно долгое время.
Печь Бубафоня — описание, принцип работы
Конструктивно печь состоит из цилиндрической емкости с герметичным дном и крышкой. Внутри конструкции установлен поршень с грузом, подающий патрубок и диффузоры. К верхней части бака приваривается напорный патрубок, который с помощью хомута соединяется с трубопроводом. К наружным стенкам емкости и ее крышке приварены металлические ручки.
Принцип работы котла «Бубафоня»
В топке топливо не внизу, а вверху. Когда он горит, воздух нагревается, сушит древесину, которая находится наверху и ждет своей очереди, и опускается вниз. Благодаря тому, что вокруг емкости находится зазор, все топливо не сгорает одновременно.
Чтобы огонь не распространился по всей емкости, на очаге размещается защитный экран. Интенсивность горения дров можно регулировать с помощью установленной сверху заслонки.
Вы можете перестать сжигать топливо всего за несколько минут. Для этого достаточно перекрыть воздух заслонкой.
Преимущества духовки Бубафоня:
Помимо вышеперечисленных положительных характеристик, конструкция «Бубафоня» имеет еще одно неоспоримое преимущество — ее легко собрать своими руками.
Однако у него есть духовой шкаф и несколько недостатков :
- Обладая высокой теплоотдачей, конструкция имеет небольшой «радиус действия».Рядом с ней жарко, а от плиты холодно.
- Конденсат образуется на трубах котла.
- Духовка быстро остывает.
- Может возникнуть «возгорание», и тогда в комнату попадут газы.
- Удалять золу и золу со дна емкости не очень удобно. Поэтому со временем они спекаются в массу, похожую на асфальт, что требует замены бака.
- Возможно замерзание труб.
- Непривлекательный вид. Красить котел не рекомендуется, так как краска все равно пригорит.
Поставив такую печь на даче, вы сможете облагородить ее с помощью кирпича, который одновременно станет своеобразным аккумулятором тепла. Во время горения печи кирпич будет нагреваться, а когда потухнет, он будет постепенно остывать, отдавая накопленное тепло.
Изготовление печи Бубафоня своими руками
Размеры конструкции указывать нет смысла, так как каждый делает ее из того, что есть под рукой. Поэтому для изготовления печи длительного горения может подойти:
Самый простой способ сделать емкость для котла из газового баллона … Достаточно будет просто отрезать ее верхнюю часть и приварить к ней фиксаторы или упоры, которые будут удерживать крышку на корпусе.
Как сделать печь Бубафоня из бочки
Из бочки с приваренной, закатанной или приклепанной крышкой своими руками сделать долговечную конструкцию несложно.
Этапы работы:
После приваривания дымохода к подготовленному отверстию печь длительного горения Бубафоня готова. Теперь вам нужно проверить ее работу , для чего нужно загрузить в нее дрова и разжечь их.После того, как верхние поленья заняты, в котел устанавливают поршень и надевают крышку.
Печь Бубафоня может использоваться не только для отопления самых разных помещений, но и успешно использоваться вместе с системой водяного отопления.
Сделай сам «Бубафоня» с водяной рубашкой
Для увеличения возможностей печи она может быть выполнена с водяным контуром. Для этого необходимо соорудить вокруг котла водяную «рубашку» и подвести к нему трубы отопления.Тепло, выделяемое в печи, нагреет воду, которая будет перемещаться по трубам системы отопления.
Для изготовления водяной рубашки можно взять емкость диаметром больше диаметра печи или согнуть два куска листового металла в кольца. У вас должен получиться закрытый металлический кожух, оптимальная толщина которого должна составлять около трех миллиметров.
Внутри кожуха установлена печь, к которой подсоединены трубы, по которым подается вода и воздух.В верхней части конструкции должен быть выход для корма, а в нижней — возврат.
На последнем этапе работы изготавливается крышка подходящего размера и духовой шкаф Бубафоня с водяной рубашкой, сделанный вручную, готов к работе.
Как топить печь длительного горения «Бубафоня»
Такая конструкция хороша тем, что ее можно адаптировать под любое топливо:
Правила безопасной эксплуатации духовки Бубафоня
Для безопасного использования духового шкафа своими руками необходимо соблюдать несколько простых правил:
Печи длительного горения «Бубафоня» есть много вариантов … Каждый будет улучшать и переделывать его по-своему. У кого-то лучше работает рукотворная конструкция, у кого-то хуже. Однако каждый подстраивает эту прекрасную идею под свои нужды и на определенный вид топлива.
Для того, чтобы понять, что такое духовой шкаф Бубафоня, необходимо более подробно рассмотреть особенности этой конструкции. Состоит из нескольких частей:
- Сердце печи — цилиндрический корпус. Чаще всего печь изготавливают из газовых баллонов или бочек.В некоторых случаях основанием может служить труба или стальной лист, которому придают цилиндрическую форму (концы свариваются).
- В корпусе проделывается отверстие под металлический дымоход, диаметр которого обычно не превышает 250 мм.
- Поршень, благодаря которому обеспечивается плавное горение древесины. В его основе — каблук со специальными «ребрами жесткости». Его следует приварить к патрубку, по которому воздух подается в камеру сгорания. Ребра необходимы для создания воздушного зазора между пяткой и топливом, который способствует сгоранию топлива.
- Процесс горения контролируется специальным клапаном, который устанавливается в трубе сверху. Когда она полностью закрыта, воздух в камеру перестает поступать, что дает возможность тушить пожар.
- В крышке есть отверстие, в которое вставляется поршневая трубка. Чаще всего для изготовления этого элемента используется обычная крышка от бочки.
Принцип работы
Бубафоня относится к отопительным приборам длительного горения, что выгодно отличает его от обычных печей.Топливо здесь сгорает не сразу, а постепенно, по мере поступления воздуха в камеру. Такой эффект достигается за счет следующих особенностей:
- Топливо горит сверху вниз, как восковая свеча … Дрова укладываются вертикально. Поверх дров насыпают опилки, щепу и кладут бумагу для растопки.
Важно! В обычных конструкциях топок процесс горения естественный и происходит снизу вверх.Из-за этого огонь быстро распространяется на все топливо и контролировать такой процесс горения невозможно.
- Для розжига топлива снимается распределитель воздуха и процесс осуществляется сверху. Как только пламя разгорается, поршень ставится на место, а сверху надевается крышка.
Совет! Некоторые владельцы таких печей проводят розжиг, не снимая крышки. Для этого в воздуховод заливается небольшое количество керосина, после чего в него бросается зажженная спичка.
- Долговременное сгорание топлива обусловлено конструкцией поршня … Под своим весом он постепенно сжимает топливо, опускаясь вниз по мере его сгорания. Таким образом, топливо выгорает медленно и равномерно до самого дна.
- Во время работы печи выделяется горючий газ, который находится под поверхностью воздухораспределителя. Благодаря ему эффективность конструкции увеличивается на 30%.
Преимущества и недостатки духовки бубафон
Перед тем, как сделать печь из бубафона своими руками, необходимо определиться с достоинствами и недостатками данной конструкции.К положительным моментам можно отнести:
- Исключительная простота конструкции. Это, пожалуй, самый простой вариант котла длительного горения, который может изготовить любой домашний умелец, имеющий под рукой металлическую бочку, сварочный аппарат и несколько труб.
- Конструкция «всеядна» и может работать практически на любом виде топлива. Сюда входят дрова, уголь, стружка, опилки и другие изделия из дерева.
- Длительное горение. Чем больше будет конструкция по размерам, тем дольше она будет гореть.На процесс сгорания также влияет тип используемого топлива и количество кислорода (регулируется заслонкой). Таким образом, на сжигание одной загрузки топлива может уйти около суток, что является очень хорошим результатом для самодельной печи.
Эта конструкция также имеет свои недостатки, которые заключаются в следующем:
- Низкий КПД , что определяется спецификой конструкции. Дело в том, что в процессе эксплуатации нагревается не вся площадь конструкции.
- Неудобный процесс золоудаления … Отсутствие зольника требует удаления золы через крышку.
Совет! Усовершенствовать конструкцию можно, установив решетку и специальную дверцу, которая предназначена для очистки от золы и находится внизу корпуса.
- Сделана из бочки или бака, поэтому печь имеет не очень привлекательный внешний вид … Однако его можно улучшить, просто покрыв готовую конструкцию краской.
Что нужно для производства?
Сделать такую конструкцию своими руками несложно при грамотном подходе.В базовом исполнении печь лишена воздуходувки, решетки и дверок, поэтому процесс ее изготовления не должен вызывать затруднений у человека, умеющего пользоваться сварочным аппаратом.
На видео показан процесс изготовления печи Бубафоня из газового баллона
Для работы необходимы следующие материалы и инструменты:
- Металлическая бочка объемом 200 литров имеет оптимальные размеры для изготовления корпуса. Газовый баллон — тоже хороший вариант.Возможен также вариант с трубой большего диаметра.
Совет! Поскольку бочки имеют относительно тонкие стенки, они не подходят для духовок с высокой интенсивностью приготовления. При постоянном использовании стена такой конструкции выгорит за два-три сезона. Поэтому для дачных домов оптимальна бочковая печь, для частных домов лучше остановиться на трубах или газовом баллоне.
- Труба для оборудования дымохода.
- Трубка, по которой воздух будет подаваться в камеру сгорания.
- Листы металлические.
- Угловая шлифовальная машина.
- Сварочный аппарат.
Технологические особенности
А теперь разберемся, как сделать такую печь своими руками:
- Используя « болгарка », необходимо отрезать колпачок от ствола или цилиндра. Впоследствии верхняя часть топки будет сделана из крышки.
- По краю срезанной крышки необходимо приварить бортик шириной 20-30 мм.
Совет! Используя газовый баллон в качестве корпуса печи, можно увеличить ее объем, приварив часть другого баллона. Увеличивая камеру сгорания, можно добиться увеличения продолжительности горения котла.
- Воздуховод должен иметь диаметр примерно 90–100 мм. Такая конструкция должна быть длиной около 120 см.
- Делаем каблук «. Необходимо взять лист металла размером примерно 50 на 50 см.«Каблук» нужно делать диаметром на 40-50 мм меньше тела конструкции. Для правильного воздухообмена необходимо в центре листа сделать круглое отверстие чуть больше диаметра трубы. С нижней стороны приварены несколько ребер наподобие лопаток. Именно благодаря им будет образовываться воздушный зазор, необходимый для равномерного сгорания топлива.
- Поршень в сборе. К пятке приваривается патрубок подачи воздуха так, чтобы ребра были внизу. В верхней части трубы необходимо вырезать отверстие, куда впоследствии устанавливают дверцу для регулирования объема поступающего воздуха.Для крепления демпфера к трубе необходимо приварить болт, резьба которого будет использоваться как петля.
Важно! Для правильной работы печи необходимо учитывать следующие моменты: крышка не плотно прилегает к корпусу, труба не плотно касается отверстия, сделанного в крышке (оно должно быть на 5 мм шире своего диаметра. ). Такие прорези создадут дополнительную тягу. Если эти детали будут плотно прилегать друг к другу, печь может начать дымить.
Как обустроить дымоход?
Дымоход необходим для любой печи, установленной в помещении, так как через нее будут выводиться продукты горения. Также благодаря дымоходу создается необходимая тяга.
Для правильного функционирования конструкции необходимо подготовить два участка трубы диаметром 200-250 мм:
- Первый из них делают длиной около 400 мм, вставляют горизонтально в верхнюю часть корпуса, а затем заваривают.
- Вторая секция — главный дымоход, соединенный с предыдущим под углом 90 градусов.
Фонд
Для устройства такой печи желательно залить специальный фундамент. Делается это в несколько этапов:
- Выкапывается яма размером 150 на 150 см, глубиной около 30 см.
- В котлован насыпают щебень и заливают бетонный раствор.
- После застывания бетона основание облицовывают 2 рядами огнеупорного кирпича.
Важно! Обязательно используйте спиртовой уровень, чтобы выровнять базу! Следует избегать склонов.
Бубафоня с водяной рубашкой
Эту печь с успехом можно использовать для воздушного отопления помещения, но это еще не конец ее возможностей. Также существует версия с водяным контуром, которая имеет больше возможностей по сравнению с обычной версией.
Самый простой — взять бочку большего диаметра, в которую помещается конструкция печи.Именно в емкости большего размера будет нагреваться теплоноситель.
Важно! Если в комнате есть система отопления, то к ней можно подключить такую духовку. Затем теплоноситель будет перегоняться из водяного контура в контур отопления с помощью циркуляционного насоса. При этом в верхней части конструкции имеется выход для корма, а в нижней — возврат.
Заключение
Бубафоня — простая в изготовлении и надежная печь длительного горения.Его можно изготовить практически из подручных средств, а сам процесс изготовления без проблем освоит любой домашний мастер.
Бабатана: печь длительного горения
Невозможно добиться комфортного микроклимата в доме зимой, если не продумана грамотная система отопления. Хорошие обогреватели — удовольствие недешевое. Также стоит отметить, что из-за постоянно растущих тарифов на электроэнергию отопительные приборы питаться от сети просто неэкономично.Хорошее решение для отопления в частных домах — отличный рубатон, который довольно легко сделать своими руками. Его особенность заключается в том, что при минимальных затратах топлива Бабатана из газового баллона способна обогреть очень большую площадь. Он очень нравится тем, кто умеет и любит экономить.
Те, кто хоть немного знаком с физикой, знают: при нагревании теплый воздух поднимается вверх, а холод остается вниз. На этом физическом законе основан принцип работы устройства.Топливо нагревает воздух, который поднимается и опускается в специальной выпускной трубе. Холодный воздух через специальную впускную трубку, попадая внутрь и повторно нагретый, попадает в выводную трубу. Таким образом, не только сжигание топлива, но и циркуляция воздуха. Интенсивность горения и, следовательно, температуру можно регулировать с помощью специального клапана, который находится на впускном патрубке.
Работа печи Бабатана прекращается только после полного сжигания дров и опускания поршня с грузом на дно емкости с горючим.Если огонь нужно принудительно потушить, достаточно, чтобы перекрыть доступ кислорода. Для этого закройте вентиль на напорном патрубке. Также можно использовать воду для тушения пламени.
Рабочая печь Бабатана имеет следующие преимущества:
- Дрова в топке Бабатана горят долго.
- Для изготовления такой конструкции не требуется специальных инструментов.
- Корпус довольно легкий.
- Выпечка Бабатана обладает уникальной способностью при минимальном расходе топлива, хорошо обогревает помещение.
- Babatana высокомобильная конструкция, которую можно легко перемещать куда угодно
Недостатки печи Бабатана:
- Эксплуатация возможна только в помещении с хорошей вентиляцией.
- После того, как пламя погасло, корпус очень быстро остывает.
Перед тем, как приступить к изготовлению печи Перед своими руками, необходимо правильно оборудовать рабочее место. Оптимальный вариант — проводить все мероприятия на свежем воздухе в более теплое время года.Единственное, что нужно помнить, доступ к электричеству должен быть бесплатным и комфортным. Если вы не можете находиться на улице, хорошим местом для работы может стать подсобное помещение или гараж. Также нужно подготовить необходимые инструменты и материалы. Обязательно подготовьте чертежи печи бабатана размеров.
Для того, чтобы выпекать Бабатану без особых усилий потребуются следующие материалы и инструменты:
- Ствол железный, цилиндрической формы, достаточно большой;
- металлический швеллер;
- болторез или угловая шлифовальная машина;
- две отрезанные стальные трубы;
- сварочный аппарат; Фольга
- ;
- молоток или кувалда;
- огнеупорных кирпичей и немного цементного раствора для их установки;
- уровень;
- вытяжная печь Бабатана.
После подготовки рабочего места и материалов наступает момент, когда можно приступать непосредственно к сборке печи Бабатана. Независимо от того, менять утеплитель свое расположение или нет, требуется строительство фундамента.
Внимание! Фундамент не только помогает установить обогреватель в нужное положение, но и является важной мерой пожарной безопасности.
Развитие фундамента ↑
Чтобы основание под печь Бабатана было прочным и долговечным, в его конструкции следует использовать только огнеупорный кирпич.Форма в данном случае значения не имеет, главное, чтобы материал был целым.
Чтобы лучше понять, как сделать фундамент, рассмотрим наглядный пример сооружения фундамента под печь Бабатана объемом около 200 литров.
Перед тем, как приступить к выкладке стен подвала, нужно сделать небольшое углубление, около 20 см. Периметр котлована составляет 4 метра (по одному метру с каждой стороны). В итоге должен получиться квадрат с равными сторонами.
Духовка может быть изготовлена из любого контейнера, чаще всего из газового баллона Buburone.Приготовьте баллон с газом цилиндрической формы или трубку нужного диаметра. Если вы использовали кусок трубы, то один край нужно заварить одной рукой прикрыть из листового металла.
Если у бочки или газового баллона, то в данном случае, напротив, аккуратно вырезаем дно. Затем из листового металла вырезается круг диаметром чуть меньше диаметра ствола или газового баллона. В середине круга болгаркой вырежьте отверстие такого размера, чтобы в него можно было приварить подводящую трубу.Он предназначен для того, чтобы внутрь топливного бака попал кислород.
Края окружности приварены закладным металлическим швеллером. Делать это нужно так, чтобы в результате получился крест. Такая конструкция позволит равномерно распределить топливо по топке, а также обеспечить доступ к необходимому количеству кислорода.
Завершающим этапом строительства основной части печи Бабатана является изготовление крышки. Для этого обрежьте дно так, чтобы диаметр отверстия совпадал с диаметром ведущей трубы.
Подготовка ям для дров и золы ↑
Также важно подготовить специальное место в печи Бабатана, где можно будет достать дрова или другой топливный материал. Для этого установите обогреватель в рабочее положение и на расстоянии чуть ниже середины на боковой стенке сделайте отметку, по которой будет вырезано отверстие.
Совет! Наиболее подходящие размеры для этого должны быть порядка тридцати дюймов в ширину и в высоту. Как показывает практика, эти настройки позволяют закидывать дрова практически любого размера.
Чуть ниже дров должно быть специальное место, через которое печь Бабатана можно будет очистить от продуктов горения: золы и золы. Этот принцип устройства очень похож на печную печь. Если есть возможность и желание, оба отверстия на боковой стенке можно закрыть дверцами. Он придаст духовке Бабатана эстетичный вид и предотвратит потерю горящих углей или растопки. Очень важно установить на двери специальные зажимы, позволяющие надежно удерживать их в закрытом положении.
Оборудование дымохода ↑
Чтобы избежать деформации кожуха из-за избытка дыма, нужно смонтировать дымоход, заранее подготовленный для этого места. Примерно в 20 см от наивысшей точки печи Бабатана, следуя схеме под ней, вырежьте отверстие для дымохода. Диаметр отверстия и режущие работы должны быть одинаковыми.
Очень важно, чтобы дымоход имел колено. Для того, чтобы его смонтировать, потребуется два разреза. Один длиннее у прямостоячий.К нему под углом и приварили кусок поменьше.
Важно! Самая маленькая труба должна быть не длиннее 45 см, иначе с дымом будут проблемы.
Труба сварная под углом 45 °. Необходимо следить за тем, чтобы края обеих частей плотно соприкасались друг с другом. Только после того, как вы проверили все параметры, трубы можно сваривать. Более длинная вертикально расположенная труба должна выходить через крышу. Если длины не хватает, всегда есть возможность добавить метод сварки в один из пропилов.Отверстие в потолке, через которое дымоход выходит на крышу, обязательно покрывают огнеупорной глиной.
Если дымоход должен выходить через окно, труба должна располагаться не вертикально, а в горизонтальном положении. В этом случае нужно помнить, что дым будет выходить намного медленнее.
Совет! Печь длительного горения Бабатана стремится очень сильно нагреться, особенно если процесс горения происходит непрерывно. Поэтому очень желательно вокруг печи Бабатана расположить отражатели.Для этого фольга загибается под дном печи и по периметру.
Для растопки печи Перед тем, как использовать разные сорта древесины или продукцию деревообрабатывающей промышленности (опилки, пеллеты и т. Д.), Главное следить за качеством материала. Древесина должна быть хорошо просушена, так как это напрямую зависит от производительности агрегата. Дрова, которые вы кладете в резервуар, тщательно утрамбовывайте и растопите. Чтобы процедура розжига произошла как можно скорее, можно добавить в бак немного ткани или бумаги.
После того, как дрова начали гореть, следует плотно закрыть крышку топки Бабатана и дать пламени разгореться в полную силу. Только после этого интенсивность пламени можно регулировать с помощью заслонки.
На видео показаны результаты экспериментов по использованию различных видов топлива для печи.
Использовать духовку Бабатана было достаточно удобно и эффективно, чтобы запомнить несколько простых советов:
- Дымоход лучше сделать разборным.Так будет легче чистить;
- после установки каменки для обогрева древесиной разной влажности. Так вы сможете узнать оптимальное количество топлива при разной интенсивности горения;
- не забывайте проверять состояние печи Бабатана во время эксплуатации;
- в целях пожарной безопасности поместите устройство рядом с огнетушителем или ящиком с песком.
Отопительный духовой шкаф Rubatone — это простой и легкий способ быстро обогреть дом с минимальными затратами топлива.Установить печь бабатана длительного горения своими руками возможно, главное — соблюдать рекомендации специалистов и последовательность этапов сборки.
Как сделать печь перед своими руками для теплицы, узнайте в следующем видео.
Связанные с контентом
Печь для теплицы — как построить своими руками
Отличным вариантом будет изготовление тепличной отопительной печи, способной поддерживать оптимальную температуру для комфортного роста растений.Как построить парниковую печь своими руками, рассмотрим далее.
Состав:
- Общая концепция устройства и печи для теплицы
- Разновидности печи длительного горения для теплицы
- Изготовление печи для теплицы
- Кирпичная печь длительного горения для производственных теплиц
- Печь для теплиц из двух металлических бочек
- печь, работающая на отработанном масле своими руками
- конструкция типовой печи теплицы
общая концепция и агрегат печи теплицы
процесс обогрева теплицы достаточно сложен, так как растения требуют постоянного равномерного тепла.Возможны несколько вариантов установки тепличного отопления:
- биологический,
- электрический,
- воздушный,
- газовый,
- топочный.
рассмотрим последний вариант. Обогрев теплицы с помощью печи достаточно экономичен и позволяет использовать различные виды топлива. Печи
для обогрева теплицы способны работать на природном газе, дровах, угле, пеллетах и т. Д. Недостаток печного отопления — быстрый нагрев печи, что приводит к пересушиванию воздуха.Поэтому в процессе обогрева теплицы рекомендуется использовать печь бурелян, ее стены не подвергаются нагреву, она надежна и удобна в эксплуатации.Разновидности печи длительного горения для теплицы
1. Печь бурелян можно использовать как тепличное отопительное оборудование. Данный агрегат является конвектором, он практически не отапливается и работает на дровах. Принцип действия
:
- тепловое излучение,
- теплопередача,
- конвекция.
Внешний вид печи напоминает бочку, в которой размещена двухъярусная печь. Вокруг нее расположены трубы изогнутой формы, количество зависит от их теплопроизводительности. В состав печи
Буреляна также входят: дверца
- , через которую происходит загрузка топлива, заслонка дымовая
- , тяговое устройство
- регулирования.
В процессе загрузки топлива происходит его постепенное разложение, и газ, который образуется в процессе, циркулирует по трубам и нагревает помещение.
2. Еще одним устройством, которое также используется в процессе обогрева теплицы, является печь Бутакова, которая по принципу работы практически не отличается от печи Бурелян. Только здесь она имеет корпус в виде параллелепипеда. в котором находится система подачи топлива и патрубок, по которому циркулирует воздух. Печь Бутакова также включает наличие:
заслонки- , дымохода
- , золы
- , которой нет на топке Буреляна.
3.Другой вариант — печь-печь длительного горения Бубафоня. Это устройство довольно легко построить самостоятельно, в отличие от предыдущих версий. Духовка Буфафоня состоит из части корпуса, которая используется как газовый баллон или бочка. В корпусной части находится дверца, которая закладываем топливо. Нижняя часть снабжена зольником. Процесс гниения происходит из-за наличия постоянного давления, которое осуществляется за счет веса металлической конструкции.
4. Слобожанка печь или плита супер — лучший вариант обогрева теплицы.В его состав входят: камера сгорания
- , конвекционная рубашка
- , два канала подачи и распределения кислорода
- , дополнительные компоненты
- , их количество зависит от индивидуальных обстоятельств и характеристик тепла.
Топка «Слобожанка» отличается верхней камерой заправки топливом и подачей кислорода, которая осуществляется снизу.
Различают несколько видов горения:
Слобожанские печи различаются по принципу работы:
- устройство с наличием Г-образной трубы, подающей воздух в топку;
- прибор с центральной подачей воздуха;
- Аппарат с нижней боковой подачей воздуха.
Эта печь может работать как на обычной древесине, так и на других альтернативных видах топлива, таких как пеллеты, куски и т. Д.
Изготовление печей для теплиц длительного горения
Печи длительного горения, разработка в теплице для минимизации вмешательство человека в процесс нагрева. Принцип его действия основан на процессе разложения топлива, поэтому, однажды загрузив топливо в печь, вы можете оставить ее на нетокорое время. При тлеющем сгорании топливо постепенно выделяет гораздо больше тепла, чем при горении.
Обычные печи не дают возможности обеспечить продолжительность горения, так как имеют свободный доступ к системе отвода кислорода и газа. Активная тяга дымовой трубы способствует процессу горения. Следовательно, сила тяги зависит от скорости горения. Печь большой продолжительностью горения отличается горением и высоким тепловым КПД. Если ее конструкция полностью заправлена топливом, то она проработает без вмешательства человека более десяти часов.
Воздух поступает в топку длительными порциями горения, он управляет подающим механизмом регулирования мощности.При полном сгорании дров в топной топке перекрывается специальное отверстие, через которое поступает кислород. За счет того, что воздух в печи практически не ослабляет тягу, не происходит.
При разложении выделяется много дымовых газов, которые находятся над камерой сжигания печи. Этот газ способствует выделению тепла. Конструкция печи позволяет эффективно использовать топливо длительного горения.
Для обеспечения максимальной эффективности печь должна быть заправлена топливом почти полностью.
Для отопления можно использовать: древесный уголь
- , уголь
- , торфяные брикеты
- .
Использование антрацитового угля из-за возможного выгорания корпуса печи.
Основные преимущества печи непрерывного горения:
- долгий срок службы,
- отсутствие необходимости постоянного вмешательства в рабочий процесс,
- высокая температура нагрева, при небольшом расходе топлива.
Рассмотрим случай обогрева теплицы с использованием подпорок, сделанных в собственной дровяной печи.
для своего строительства требует наличия:
- металлических бочек на 200 литров,
- металлических порогов,
- стальных труб.
1. Верхняя часть ствола обламывается, а образовавшиеся острые кромки совмещаются.
2. Затем разрежьте трубку на место под крышкой барабана и прикрепите канал.
3. К верхней части ствола приваривается отрезок трубы, который будет служить дымоходом.
4. Центральная часть крышки должна быть соединена между собой трубкой меньшего диаметра, которая будет действовать как устройство, через которое поступает воздух.
5. Следующий шаг — изготовление крышки под стволом. В крышке должно быть отверстие для входа в трубу.
6. Подсоедините духовку и колпак дымохода.
7. Проверить работоспособность устройства. Для этого залить дровами треть топки, произвести монтаж труб для подачи воздуха и разжечь топку.
8. Стандартный цикл горения составляет около 8 часов. В случае, если ствол полностью заполнен древесиной, он может работать без вмешательства человека около трех дней.
Изготовление кирпичной печи для теплицы
Для обеспечения надежного обогрева теплицы дровами необходимо построить кирпичную печь с кабаном, которая за счет максимального подъема обеспечит отличную тягу.
материалы для изготовления кирпичной печи:
- несколько металлических труб,
- две стальные пластины могут быть использованы пластины от старой печи,
- около 450 кирпичей.
Строительство печи возведение начинается с фундамента, желательно сделать его монолитным.Для его изготовления используйте цементный раствор.
В конструкции топки в верхней части вмуруйте две стальные трубы, по которым будет осуществляться циркуляция воздуха.
Над топочной частью топки находится резервуар, в котором находится вода. Наличие резервуара поможет избежать пересушивания воздуха. Начните кладку кирпичей по периметру топки. Для этого используйте цементный или глиняный раствор.
Проделайте отверстие, через которое проделывают зольную очистку каналов.
духовка теплицы из двух металлических бочек
материалов для:
- двух металлических бочек по 200 литров;
- труба стальная с 1,6;
- небольшая часть клапана или стальные полосы.
Этот духовой шкаф выглядит как обычный контейнер, который закрывается крышкой. Внутри он разделен металлической перегородкой, нижней частью напольной дверцы, а также имеет ножку и верх, соединенные с камин.
Возможен вариантс использованием только одного ствола, но в этом случае работать придется дольше.
Инструкция по изготовлению печей для теплиц:
1. Вырежьте верхнюю часть первой бочки и вставьте ее в дымовую трубу.
2. Внизу вырезано отверстие диаметром равным 10 см.
3. Возьмите вторую бочку и разрежьте ее на две равные части, одна из которых будет равна 25 см.
4. Данную деталь нужно обработать, чтобы установить дверной проем и в которую нужно заливать топливо.
5. Используя арматуру или стальные полосы, изготовьте и приварите опоры.
6. С помощью сварочного аппарата подключить печь к дымоходу и топке. Следующие соединения должны быть качественными.
7. Сделайте крышку из материала, оставшегося от второй бочки.
8. Присоедините духовку и проверьте ее работоспособность.
Для загрузки печи необходимо изготовить специальный инструмент конической формы с верхней частью 15 см. Этот инструмент устанавливают в топку перед загрузкой топлива. Эта печь работает на опилках, поэтому их следует аккуратно поместить в топку.Не загружайте духовку полностью, достаточно заполнить третью часть.
После того, как топливо будет в печи, конус следует снять. В отверстие, которое образовалось в результате размещения в топке конуса, нужно залить стружку и поджечь ее. , закройте крышку топки. Данная печь способна обогревать теплицу более двух суток и не требует вмешательства человека в процесс обогрева.
Для защиты от пожара в теплице возможен вариант изготовления дополнительного элемента возле крышки топки, это так называемый затвор, который засыпается обычным песком.Таким образом, даже при сильном сгорании песок обеспечивает пожарную безопасность.
Если второй бочонок не вариант изготовления печи только один бочонок. В этом случае отдельный топочный агрегат и подающий дрова должны располагаться в одном бочонке. Это приведет к некоторым неудобствам, но не повлияет на качество работы. .
печь на отработанном масле своими руками
Если рядом есть станции, то отличным вариантом будет изготовление печи, которая утеплит теплицу на отработанном моторном масле.
Эта печь имеет:
- дымоход,
- отверстия для заливки масла,
- заслонку — контроль горения,
- масляный бак.
Эта печь также используется для нагрева воды или приготовления пищи, поскольку ее верхняя часть сильно нагревается.
для использования по схеме изготовления:
использовать как дымоходную трубу, которая должна располагаться вертикально.
Принцип работы такой печи:
- заливка отработанного масла, количество 2.Емкость 5-3 литра;
- фильтр поджога, который сделан из бумаги, и установлен печкой в яме;
- крышка для открывания створки так, чтобы отверстие было 1-2 см;
- после розжига топливного клапана регулируется уровень его сгорания;
- в течение пяти минут печь начнет стандартную работу и нагрев;
- Регулировка печи происходит через заливку масла и регулировку положения заслонки.
такую печь можно подключить к водяному отопительному контуру.Его мощность позволяет это.
Конструкция типовых топок для теплиц
Основными элементами такой конструкции выступает: топливный отсек
- , днище
- , зольник
- , дымоход
- , крышка
- , питатель топлива
В качестве топлива можно использовать щепу, мелкую древесину или опилки. Количество топлива должно быть в три раза меньше емкости печи.
Для изготовления такой печи необходимо выполнить следующие действия:
1.Возьмем отрезок стальной трубы диаметром 400 мм, он будет служить топливным баком. Другой отрезок диаметром 100 мм — это дымоход.
2. Затем приготовьте кусок жести толщиной не менее 0,5 см.
3. Производственный процесс включает вырезание отверстия топливного бака в верхней части трубы диаметром, равным диаметру дымохода. Достижение дна печи. Для этого с помощью болгарки врезается нижний диаметр отверстия печи, такой как топка.Этот процесс включает в себя маркировку продукта и предварительные измерения печи.
4. Разрезать по длине в трубу диаметром 1 см, количество линий около пятидесяти. Приварить трубу ко дну печи.
5. Из листового металла приступили к изготовлению крышки, она должна очень плотно надевать трубку. В крышке должно быть отверстие для подачи кислорода.
6. Для установки дымоход необходимо присоединить к трубе с помощью хомута, а затем приварить трубу к печи.
7. Надеть входной патрубок дымохода, проследить за герметизацией швов.
8. Установите духовку на опорный элемент из стального профиля. Обратите внимание, что плита очень горячая, поэтому не ставьте ее близко к растениям.
Устройство самодельной печи длительного горения, изготовления «Бубафони» своими руками и особенности отопительной печи теплицы на дровах
Урожай урожая зависит от погодных условий, особенно от температуры в теплице. В регионах с суровым климатом для своевременного сбора урожая строят специальные конструкции, теплицы с подогревом.Их размер и количество зависят от площади теплицы. Поскольку нагреватели будут эксплуатироваться долгое время, это требует значительных материальных затрат на оборудование. Следовательно, вырастет и стоимость урожая.
Виды отопления и типы печей
Теплицы отапливаются несколькими способами:
- биологический;
- электрический;
- воздух;
- газ;
- плита.
Печное отопление — наиболее экономичный вариант отопления, позволяющий использовать большинство видов топлива.Они могут работать с древесиной, углем, газом и даже с гранулами.
Печное отопление имеет один существенный недостаток — пересушивание воздуха из-за быстрого нагрева оборудования.
- Топка печная на опилках, являющихся отходами деревообрабатывающих предприятий. Поэтому покупка этого топлива не требует больших затрат. Для постройки печки на опилках потребуется приобрести бочку из жести, лучше пару бочек, газовые баллоны и отрезок трубы.
- Печь на отработанном масле — отопительный экономичный вариант длительного горения.При отработке любое масло переработано с автопарка, поэтому сотрудники автопарка с радостью поделятся своим маслом.
- Для обогрева теплиц в холодное время года используются топочные печи, обеспечивающие хороший обогрев.
- Кирпичная отопительная печь Кузнецова вызывает особый интерес у садоводов своим высоким КПД (80%). Однако кожух печи должен изолировать базальтовый кирпич.
- Чудо-печь Местная — идеальное решение для тепличного пространства, где нет подключения к системе центрального отопления.Печь используется как дополнительный и как основной источник тепла.
Существует множество типов печей для обогрева теплиц, которые отличаются друг от друга:
- принцип теплопередачи;
- конвекция;
- радиация;
- основные и дополнительные детали;
- камера сгорания;
- трубки для подачи воздуха.
Схема и установка конкретной печи разрешается проводить только после изучения всех деталей процесса нагрева.Вы должны знать, что печи для больших теплиц и маленьких различаются порядовкой.
варианты топлива
Тепличное отопление предполагает использование различных видов топлива. Доступное топливо — дрова. Конструировать дровяное оборудование не составляет большого труда. Печь на дровах возможна для обогрева и длительного горения. Для небольших теплиц будет достаточно загружать топливо каждый день.
Древесный уголь можно использовать для лучшего нагрева , его главное достоинство — высокая калорийность, а недостатки — много отходов: золы, пыли.А также при сжигании угля в атмосферу выделяются вредные и токсичные газы, а некоторые виды угля могут самовоспламеняться даже при несоблюдении условий хранения.
В последнее время в качестве топочного топлива используются опилки. Печь, в которой вырабатывают тепло, относится к конструкции длительного горения. Качественное отопление сопровождается небольшим дымом. Такой вариант печи несложно выполнить самостоятельно. Печь имеет довольно высокий КПД.
Тепличные конструкции также можно отапливать с помощью печей, которые используются в качестве топливных брикетов. Такое топливо по сравнению с углем или древесиной имеет лучшие характеристики, например, меньше дыма, быстрое накопление и отсутствие вредного воздействия на воздух. Использование топливных брикетов позволяет избежать искрообразования и длительного горения — поддерживать необходимую температуру. Печь такого типа отличается высокой топливной экономичностью, экологичностью и экономичностью.
Некоторые огородники использовали в качестве жидкого топлива. Но для обогрева он не подходит из-за токсичности и дороговизны.
Оптимальный выбор
Оптимальным вариантом обогрева теплицы является установка печи буржуйки, которая считается наиболее экономичной и простой в эксплуатации.Обогреватель состоит из бочки с дверцей для топки, дымовых труб для вывода тепла наружу вверху.
Нагревание осуществляется перемещением дыма:
- Перемещая трубу горячего дыма, труба монтируется либо по бокам теплицы, либо посередине.
- Поверхность печи излучает тепло.
- Сверху образуется перемычка и теплый воздух выходит через трубу.
В качестве топлива можно использовать древесные отходы, уголь или дрова.От качества горения зависит вид топлива и проникновение воздуха в топочное пространство топки. Этот способ нагрева подходит тем, кто часто может контролировать процесс горения. Это единственный недостаток печки.
У печей длительного горения этот недостаток выгоден: в них закладывать топливо гораздо реже. Они также потребляют меньше топлива и уменьшают нагрев стенок топки без снижения теплопередачи. По характеристикам они очень похожи на инфракрасные обогреватели.
Печь непрерывного горения имеет две камеры, одна из которых полностью сжигает остаточное топливо, а другая — только основную часть. доступ кислорода в камеру ограничен, в результате чего топливо расходуется не сразу, а долго тлеет с выделением большого количества тепла.
В качестве топлива для печи непрерывного горения можно использовать различные бытовые отходы, но без ущерба для установки. Постоянная температура в тепличном помещении обеспечивает необходимые условия для роста растений.
Однако перед установкой печи необходимо учесть множество факторов.
Дизайн под дерево в центре: плюсы и минусы
Центральная деревянная конструкция из металла или кирпичной кладки. Чем больше теплица, тем больше конструкция печи. Ее назвали центром потребности в помещении в середине теплицы, что позволяет оптимально распределять тепло по всей площади тепличного хозяйства.
Эта конструкция работает по дереву, поэтому для работы не требуются специальные инструменты.
Центральная дровяная печь имеет немалое количество недостатков.
- Частый полив и постоянное увлажнение воздуха в теплице. За счет быстрого высыхания воздуха, а значит и почвы. Некоторые культуры не переносят такой климат в теплице. Установка бочек с водой рядом с топкой позволит немного компенсировать этот недостаток.
- Еще один важный момент — неравномерное распределение горячего воздуха по всей площади тепличного пространства.Самая высокая температура будет поддерживаться у плиты, и чем дальше растения, тем холоднее будет воздух. В результате некоторые растения по периметру подмерзают. Это следует учитывать, если теплица большая и высокий потолок.
Выровняйте температуру с помощью длинных индукционных ламп. Устраивают в самых удаленных частях теплицы. А также нагревательный инфракрасный обогреватель сохранит культуру. Такой вариант для теплиц с низкими потолками не подходит: необходимо остановить свой выбор на дровяной печи или индукционных лампах.Если выбрана духовка, ее необходимо установить рядом с небольшим вентилятором для рассеивания тепла.
Бубафоня
Печи печиимеют небольшой КПД и частую необходимость дозаправки топлива. Мастер Бубафоня придумал самодельную конструкцию, отличающуюся принципом горения.
Характеристики и комплектация
Основное отличие печи Бубафони — верхняя забираемая воздушная масса, что дает такие положительные свойства как:
- более длительное сгорание топлива;
- нет необходимости в частой загрузке печи;
- лучше удерживает тепло;
- эффективность, потому что такая печь может быть изготовлена из легкодоступных материалов: железа или металлических бочек; В качестве топлива можно использовать не только древесину, но и доски, щепки, картон или стружку.Как и духовка Бубафоня работает автономно, то есть без использования электроэнергии.
Есть и недостатки этой конструкции:
- внешне выглядит непрезентабельно;
- средняя теплоотдача;
- образование нагара на стенках печи;
- конденсат, который зимой замерзает и перекрывает основную трубу;
- во время забора воздуха иногда происходит возгорание из воздуховода;
- При установке печки нужно позаботиться о вентиляции в теплице.
Для изготовления бубафоню своими руками необходимо знать устройство и принцип работы печи. Воздух поступает через верхнюю трубку, и топливо начинает гореть. Сгорая, зола накапливается на поверхности топлива и препятствует его возгоранию. Из-за этого нужно позаботиться об установке носителя в виде металлического блина с диаметром бочки чуть меньше. В среднем блинчике просверливаем отверстие под трубку с кислородом.
Топливо сгорает, пресс опускается, удаляя золу и перегородку между блинами.Такая зола остывает и уходит через дымоход вместе с другими продуктами сгорания.
изготовление
Изучив чертежи и схему печи, осознав принцип работы, можно сделать своими руками Бубафоню. Важный момент — выбор судна. В качестве трубы большого диаметра может использоваться баллон, пустой газовый баллон.
Как бы то ни было, нужно закончить строительство:
- избавиться от колпачка;
- для получения емкости с открытым верхом необходимо сделать дно;
- Подготовительный пресс: подходит для этого круга металлического листа;
- Центральный для просверливания отверстия под трубу и соединения трубы сваркой;
- для покрытия также приварной трубы большего диаметра, чтобы первая труба могла свободно скользить;
- для создания зазора, чтобы воздух проходил между поверхностью и топливопроводом, чтобы закрепить профиль металла;
- дверца печи для производства листового железа и приставки;
- верхняя емкость, чтобы проделать отверстие для дымохода и присоединенной трубы; Сделайте
- ножки для печки, если днище не «стоит».»
При изготовлении дымохода необходимо учитывать необходимость создания сопротивления, которое будет нагревать дольше задержки.
Перед установкой печи необходимо сделать фундаментный кирпич и подложку из стального оцинкованного листа. Это поможет избежать нагрева дна печи, что приведет к гибели близкорастущих культур. Фундамент также сохраняет и распределяет тепло.
После установки печи необходимо обложить кирпич для увеличения теплоотдачи.
Булерьян: отличительные особенности
Булерьян — печь длительного горения очень похожа на буржуйку. Также воздух нагревается трубами горячего дыма по периметру теплицы, тоже нагреваясь. В отличие от буржуйки, воздух булерьян все равно нагревается: прохладный воздух попадает в нижнее отверстие корпуса трубы и начинает прогревать камеру сгорания, где находятся соседние трубы. В результате прохладный воздух нагревается до 60 градусов и выходит через верхнее отверстие.Топливо для топки: дрова, уголь, пеллеты, отходы пиломатериалов.
Булерьян, в отличие от буржуйки, имеет ряд преимуществ.
- Повышенный КПД дымовых газов дожигания. В результате расходуется меньше топлива и больше тепла.
- Полное сгорание топлива.
- Залив Булерьян, он может работать три дня, что значительно облегчает работу садовника. Для людей, которые не могут каждый день закладывать топливо, это отличный вариант. №
Булерьян часто называют конструкцией без изъянов, но все же есть один недостаток, не связанный с конструкцией печи, характеристиками и эффективностью: подбор коррозионных компонентов, не подвергающихся вторичной переработке.
Первоначально использовали булерьянских канадских лесорубов, которым часто приходилось вести кочевой образ жизни. Поэтому печь должна была обеспечить сохранность и быстро обогревать помещение.
Для быстрого обогрева теплиц, необходимого для поддержания непрерывного процесса горения Однако Булерьян работает в основном в режиме гниения. При постоянном интенсивном горении металлические поверхности печи вскоре загорелись.
сухих стружек, картона, бумаги для обжиговой печи. Главное — чтобы они сохли и быстро пригорали.За процессом горения следят через стеклянную дверцу или заслонку. Когда топливо превращается в древесный уголь, снова подкидывают топливо. Нельзя использовать уголь в качестве топлива, так как Булерьян — дровяная печь. Для еще большего обогрева теплицы потребуется много времени.
Категорически запрещается доводить топку до сверхвысокой температуры. Во-первых, обгорает поверхность металла, во-вторых, наружу будет выделяться излишнее тепло, так как теплопроводность труб ограничена, в результате чего лишнее тепло не передается воздуху.Также в качестве топлива не рекомендуется кокс — это приведет к выходу устройства из строя.
При установке Булерьяна нужно придерживаться правил противопожарной защиты. Устанавливается на негорючую поверхность печи, например, на кирпич, кладется ровно или на металлическую подставку.
При изготовлении духового шкафа своими руками важный элемент дымохода соответствует требованиям:
- Материал дымохода: кирпич, бетон, металл;
- Параметры дымохода.
К установке печи Бурелян не составит труда подготовить достаточно места, сделано хорошо, и в дымоходе можно начать нагревание.
О типах и характеристиках печей для теплицы смотрите в следующем видео.
Запрещается использование любого контента без нашего предварительного письменного согласия.
Уфимка своими руками из газового баллона. Как сделать буржуйку из газового баллона? Двери буржуйки
Если вы обратите внимание, сколько стоит чугунная или стальная печь на дровах, то быстро поймете, что покупка ее для обогрева гаража или дачи с теплицей не всегда оправдана.Более доступный вариант — буржуйка из газового баллона длительного горения, сделанная своими руками или сваренная мастером на заказ по вашим чертежам. Наша цель — помочь с выбором дизайна, описать технологию изготовления буржуйки и ее монтажа, вплоть до устройства дымохода.
Подбираем конструкцию дровяной печи
Устаревшее и неэффективное отопительное оборудование постепенно уходит в прошлое, что сказывается на самодельных плитах.В наше время никому не нужны примитивные железные ящики с трубой и дверцами, пожирающие дрова без хорошего теплоотвода. Современная буржуйка должна быть экономной и хорошо обогревать помещение. Поэтому передовые мастера постоянно работают над улучшением сталеплавильных печей.
Для наиболее эффективной работы дровяного обогревателя необходимо решить 2 вопроса: как увеличить КПД печи, печи и время горения от одной загрузки, не увеличивая количество и стоимость используемых материалов.Представляем 3 варианта самоделок, в которых данные задачи успешно решены и реализованы:
- топка трехходовая из двух пропановых баллонов;
- буржуйка пиролизная с воздушно-топочным теплообменником и вторичной камерой;
- очень популярной конструкцией является «Бубафоня» с верхним сжиганием дров из газового баллона.
Для справки. Первые 2 единицы были разработаны, изготовлены и протестированы нашим специалистом, любезно предоставившим свои фото и видео.
Если вы дружите со сварочным аппаратом и имеете необходимый инструмент, то технических проблем с изготовлением не возникнет. Ниже мы представим чертежи и объясним технологию, как сделать буржуйку из газового баллона по всем трем вариантам. Но для начала сделайте свой выбор, прочитав обзор этих печей.
Чтобы сделать печь, понадобится сварочный аппарат, болгарка, слесарный и измерительный инструмент. Хомутов понадобится несколько, минимум 2 штуки
Буржуйка трехходовая — принцип работы и плюсы с минусами
За необычный внешний вид и хорошую теплоотдачу мастер присвоил этой самодельной печи игривое название «Коллайдер».Эта дровяная печь состоит из двух стандартных пропановых баллонов емкостью 50 литров, приваренных друг к другу под углом 90 °, как показано на рисунке. Принцип работы следующий:
- Первый резервуар, уложенный горизонтально, играет роль топки, соответственно оборудован дверцами и решетками. В него кладут внушительную порцию дров и поджигают.
- Вторая емкость представляет собой воздушный теплообменник с внутренними перегородками, которые замедляют поток дымовых газов и заставляют их трижды менять направление и отдавать больше тепла.В конечном итоге продукты сгорания покидают обогреватель по дымоходной трубе.
- Для увеличения поверхности нагрева обе части корпуса снабжены дополнительными ребрами жесткости.
- Внизу к топке приварен зольник из листового металла, дверца которого регулирует подачу воздуха для горения.
Примечание. С таким же успехом вместо баллонов можно использовать стальную трубу для буржуйки диаметром 300 мм и тонкими стенками (4-5 мм).
Расчетная мощность «Коллайдера» 10 кВт при КПД около 55%, что позволяет отапливать помещение площадью до 100 м² — коттедж, теплицу или большой гараж (бокс ). Практические испытания показали, что в режиме поддержания тепла в отапливаемом помещении одной загрузки дров хватает на 1,5-2 часа. Если использовать ТЭН в доме меньшей площади (25-50 м²), то продолжительность горения увеличится до 3-4 часов. Кто разбирается в теме, тот поймет, что для самодельной буржуйки это хорошая экономичность.
Фото готовой печи «Коллайдер» с теплообменными ребрамиОборотная сторона этой печи длительного горения одна — странный внешний вид. Но это компенсируется многочисленными преимуществами:
- простота изготовления;
- быстрый прогрев и достойное время работы с 1 закладкой твердого топлива;
- дешевая конструкция, достаточно только купить удобные ручки и даже трубу для буржуйки, если нет баллонов с пропаном; №
- из-за размеров топки в печь кладут длинные (80 см) и массивные поленья, что способствует продолжительности горения;
- возможно изготовление агрегата с варочной панелью, как показано на фото.
«Коллайдер», как и любой самосварной газовый баллон из газового баллона, может быть дополнен установкой водяного контура, регулирующего воздушную заслонку в дверце зольника и внешнего нагнетательного вентилятора. Размеры печи меняют в любую сторону, выбирая резервуары меньшей емкости или трубы другого диаметра.
О работе буржуйки, используемой для обогрева помещения кафе 100 м², рассказывается в видео:
Обзор двухкамерной печи пиролиза
Эта небольшая дровяная печь из газового баллона объемом 24 литра получила название Пятерочка по количеству трубок воздушного теплообменника.Он действует по такому принципу:
- Как и в предыдущем случае, уложенный на бок цилиндр служит камерой сгорания, а к нему снизу крепится зольник. Роль решетки выполняют прорези в стенке сосуда.
- В верхней части бака сделано отверстие, к которому примыкают 5 вертикальных трубок теплообменника. Горячие дымовые газы движутся по ним и тем самым передают часть тепла помещению.
- Из теплообменника продукты сгорания попадают во вторичную камеру, где нагретый воздух отдельно подается через отдельную трубку.Благодаря этому горючие газы, образующиеся в топке, сжигаются и выделяют дополнительное тепло, а затем отправляются в дымоход.
Чертеж пиролизной буржуйки длительного горения с дожигателем газа
Результаты практических испытаний каменки следующие: помещение площадью 30 м² отапливается при 20 ° С в течение 1 часа, после Одна кладка дерева длится 1,5-2 часа, в зависимости от режима работы. Расчетная мощность — 5 кВт. Как видите, в такой конструкции время горения сокращено за счет уменьшения топки, но печь очень компактна и поместится в любом помещении.Да и греет неплохо.
Похоже на двухкамерную самодельную духовку. Сверху приварены 2 планки — можно поставить кастрюлю или чайник с водойНаконечник. Хотите увеличить продолжительность горения в среднем до 4 часов? Затем изучите чертеж еще одного варианта, на котором изображена такая же пиролизная буржуйка, сделанная своими руками из газового баллона на 50 литров. Устройство отопительных агрегатов идентично, разница только в объеме баков, используемых в качестве топки.
Благодаря эффективному сжиганию дров печка Пятерочка экономичнее Коллайдера, хотя и сложнее в сборке.По стоимости материалов разница между ними небольшая — в первых 2 баллона, во втором — 5 труб диаметром 57 мм и длиной 40 см. Отдельным достоинством печи является возможность сжигать мокрые дрова и любой мусор после нагрева без потери интенсивности нагрева. Остальные преимущества такие же — невысокая стоимость, простота использования и возможность модернизации.
Еще один хороший совет. Естественно, если после замены небольшого баллона на стандартный (50 л) вы захотите увеличить мощность ТЭНа и добавить еще 2-3 трубы к теплообменнику.Помните, что проходное сечение и тяга в дымоходе должны соответственно увеличиваться. В противном случае вы потратите впустую материалы и время, потому что из-за недостаточной тяги внешние секции останутся холодными, а мощность печи не увеличится.
Увеличенный вариант Пятерочки из большого баллона на 50 л.
Печь верхнего горения «Бубафоня»
По большому счету «Бубафоны» нельзя отнести к буржуазным, так как они принципиально другие по принципу работы. Но игнорировать эту печь невозможно из-за ее широкой популярности, из-за продолжительности горения от 1 загрузки дров от 6 до 10 часов.В то же время обогреватель славится множеством недостатков, о которых мы поговорим дальше.
Алгоритм работы печи длительного горения «Бубафоня», представленной на чертеже, следующий:
- Топка представляет собой стоячий вертикальный пропановый баллон на 50 литров. Через отверстие в верхней крышке входит патрубок подачи воздуха, заканчивающийся толстым металлическим диском. Снизу к нему крепятся стальные полосы, распределяющие воздух во все стороны.
- Когда топка доверху заполнена дровами, тяжелый диск прижимает их вниз и заставляет прогибаться при горении.Розжиг также производится сверху, и только потом спускается труба с грузом.
- Подача воздуха для горения регулируется заслонкой, установленной на верхнем конце трубы. Дымоход врезается в боковую стенку емкости под саму заглушку.
Примечание. Место, где труба проходит через крышку, не загерметизировано, и вторичный воздух засасывается, помогая сжигать горючие газы над диском при правильном прогреве печи.
Сильные стороны Bubafoni — это приличное время работы, простота и возможность переоборудования в котел верхнего горения (печь с водяной рубашкой изготавливается, как описано в). Но слабые места заставили многих владельцев гаражей отказаться от такой буржуазии:
- печь нельзя загрузить, пока не сгорит все топливо;
- от блокировки заслонки топка не погаснет и будет долго тлеть, так как в нее попадает вторичный воздух;
- без хорошей тяги, обогреватель дымит в комнату;
- в режиме медленного горения печка немного греется, а дымоход интенсивно забивается сажей;
- для возврата в нормальный режим агрегат должен хорошо прогреться, что потребляет ¼ топлива.
Слева на фото — крупный план воздушной заслонки, справа — самодельные ребра теплообменника из профилей для монтажа гипсокартона
Для справки. Чтобы сжечь сажу в дымоходе, необходимо при каждой растопке прогонять «Бубафон» на максимальном режиме.
Наконец, немного подсластите пилюлю. Несмотря на все недостатки, печь длительного горения из газового баллона не теряет популярности, к тому же успешно работает на опилках и различных горючих отходах.
Инструкции по приготовлению плиты своими руками
Перед тем, как приготовить дровяную печь длительного горения, необходимо подготовить все необходимые электроинструменты:
- инвертор сварочный; Болгарка
- , она же болгарка угловая; Сверло
- с набором сверл.
Примечание. Не будем здесь перечислять молотки с плоскогубцами, так как в доме хорошего хозяина всегда есть полный набор инструментов.
Конечно, вам понадобится старый пропановый баллон, из которого нужно выкрутить вентиль и обязательно перед резкой залить водой. Дело в том, что пропан тяжелее воздуха и его остатки не уйдут из баллона самостоятельно. Чтобы вытолкнуть их оттуда, просто используйте воду. Порядок дальнейшей работы зависит от выбранной конструкции.
Собираем печь трехходовую
Помимо баллонов, для изготовления буржуйки необходимо подготовить следующие материалы:
- Листовой металл толщиной 2 мм уйдет в зольную камеру и нервюры, 3 мм на двери;
- кусок круглой трубы диаметром 100 мм — на трубу дымохода;
- уголки или профильные трубы для ног;
- асбест, а лучше — шнур асбестографитовый на уплотнитель двери; Профиль стальной
- 20 х 20 мм или арматура того же сечения — для усиления решетки.
Стыковка двух цилиндров (слева) и приварка дверной коробки (справа)
Наконечник. Ручки — замки с красивыми подушечками из эбонита купить проще, чем тратить время на самодельные. Чтобы придать печи современный вид, приобретите термостойкую краску (продается в аэрозольных баллончиках).
Чтобы стержни не гнулись от высокой температуры, их нужно укрепить сварными профилями
В первую очередь распилить металл на заготовки по размерам, указанным на чертеже печи длительного горения, представленном в предыдущем. раздел.Технология изготовления печи следующая:
- В конце первого цилиндра прорежьте отверстие под дверцу и отверстие в стене для выхода газов. У второй емкости отпилить дно, а в конце проделать отверстие под 100 мм трубу. Сделайте на стенках полукруглые вырезы, чтобы один цилиндр плотно прилегал к другому.
- Прорезать пазы решетки. С внешней стороны приварите к нему усилители из профиля 20 мм.
- Изготовить зольник и дверные коробки, приварить их к кузову.Заодно установите ножки.
- Приварите двери и заделайте стыки с рамой. Установите створки и ручки.
- Используйте стенки отрезного цилиндра в качестве перегородок, приварив их внутри вертикального резервуара.
- Соедините две емкости друг с другом сваркой. Установить дымоходную трубу и ошпарить.
- Присоедините ребра теплообмена к обоим корпусам. На этом плита готова.
Несколько слов о том, как сделать плотные дверцы для печи длительного горения.Технология проста: из узких стальных полос, приваренных к внутренней поверхности полотна, формируется канал, куда впоследствии набивается графитно-асбестовый шнур. Главное, четко определить расположение паза. По окончании весь металл необходимо обезжирить и покрасить в 3 слоя с перерывами на просушку.
Наконечник. Перед покраской желательно расплавить сварную печь, чтобы выгорела вся старая краска.
Изготовление печи пиролизной двухкамерной
Схема сборки этой высокоэффективной буржуйки во многом схожа с «Коллайдером», используется всего 1 баллон с газом, а трубы диаметром 57 и 20 мм добавлены из материалов (в теплообменник и подача вторичного воздуха соответственно).Порядок действий следующий:
- В баке прорезать отверстия для загрузочной дверцы и под установку теплообменника. Размеры платформы для него — 260 х 200 мм.
- Сделайте зольник и установите двери, как описано выше. Привариваем ножки.
- Сделайте теплообменник, разрезав трубы в шахматном порядке между двумя листами металла. Соблюдайте межосевые расстояния, указанные на рисунке.
- Согните трубу диаметром 20 мм под углом 90 ° и приварите ее к теплообменнику.Присоедините последний к отверстию, вырезанному в цилиндре.
- Приварить вторичную камеру к дымоходу. Используйте полукруглую заготовку в качестве крышки, которая раньше была стенкой цилиндра. Обогреватель готов.
Этапы сборки дверцы топки — по центру укладывается негорючий утеплитель, по краям графитовый шнур
Примечание. При использовании стандартного баллона алгоритм работы не меняется, нужно только зольник сделать больше (размер указан на чертеже).
Немного о том, как правильно подать воздух во вторичную камеру печи длительного горения. Перед установкой конец трубки необходимо заглушить, а по бокам сделать 5-6 надрезов в виде буквы V. Затем труба вставляется в отверстие в верхней части теплообменника и ошпаривается. Если вы сделаете буржуйку своими руками из трубы, взятой вместо баллона, вам потребуется сварить заднюю стенку и переднюю панель из металла толщиной не менее 4 мм.
Такие прорези нужно сделать по бокам трубки — через них воздух проходит во вторичную камеру
Фото процесса сборки буржуйки
Устанавливаем обрамление дверок печи
Привариваем зольник из листового металла
Режем решетки и укрепляем их профилем для сварки
Привариваем зольную камеру к цилиндру
Ставим ручки и замки на двери
Вырезаем отверстия под трубы во фланцах теплообменника
Делаем буржуйку на видео
Утеплитель в сборе «Бубафоня»
Технология изготовления печи одна из самых простых.Возьмите газовый баллон на 50 литров, отрежьте верхнюю часть по заводскому шву, а затем выполните следующие действия:
- Сварите решетку из арматуры периодического профиля диаметром 20-24 мм и установите ее согласно чертежу. Вырежьте отверстие внизу и установите дверцу зольной камеры.
- В отрезном колпачке проделайте отверстие для воздуховода и приварите снаружи стальную полосу для уплотнения цилиндра.
- Прикрепите дисковый груз с приваренными диффузорами к одному концу 57-миллиметровой трубы с помощью сварки и установите воздушную заслонку на другой.
- Установить дымоходную трубу.
- Вставить воздуховод в топку и надеть крышку.
Фактически 3 части — это вся печь Бубафоны
Для справки. Многие домашние мастера в печь типа «Бубафоня» не ставят решетку и дверцу зольника. Это упрощает работу, но усложняет операцию: после сжигания дров необходимо переворачивать корпус, чтобы вытряхнуть золу.
Монтаж решетки из арматурных стержней
Как установить буржуйку и дымоход
При размещении дровяных обогревателей важно соблюдать правила пожарной безопасности. Особенно это касается печей нашего специалиста, у которых верхняя часть может раскалиться докрасна при максимальных условиях эксплуатации. Вот требования:
- В гараже или в загородном доме, построенном из кирпича или других негорючих материалов, минимальное расстояние до стен помещения не нормируется. Но любые горючие предметы или конструкции должны находиться не ближе 50 см от корпуса печи.
- В теплице буржуйку нельзя ставить близко к растениям и стеклянным наружным стенам.
- В деревянном доме полы под печью покрыты металлическим листом, выступающим из печи на 700 мм. Ближайшие стены также покрыты металлом для предотвращения возгорания.
Отдельный вопрос, из чего сделать дымоход для печки. Алюминиевая гофра точно не подходит, так как температура газов на выходе достигает 200-400 ° С в зависимости от режима работы. Какие варианты действительны:
- труба стальная обыкновенная с тонкими стенками;
- дымоход из кровли или нержавеющей стали;
- Изолированный дымоход сэндвич.
Дымоходный канал лучше проложить под углом (слева), чем просто вертикально (справа).
Наконечник. Лучше брать последний вариант дымохода — двустенную трубу с утеплителем из базальтового волокна посередине.
Для обеспечения хорошего сцепления верх трубы размещают на высоте 4 м или более, если измерять от решетки. Буржуйка Bubafony особенно требовательна к сквозняку; для него следует сделать отвод газов повыше, чтобы потом не возникало вопросов, почему печь дымит в комнату.В идеале вертикальный участок дымохода должен заканчиваться сборником конденсата, хотя многие домашние мастера этого правила не придерживаются.
Кстати, правильный дымоход позволяет повысить КПД печки-буржуйки. Это достигается двумя способами:
- В гараже или теплице дымоход удлиняют и укладывают под углом, а другим концом помещения выходит на крышу, как показано выше на фото. Таким образом, горящие продукты сгорания передадут больше тепла внутреннему воздуху.
- На вертикальном участке дымохода устанавливается теплообменник, подключаемый к системе водяного отопления дома или коттеджа. Минус: из дымоходного канала печки длительного горения надо будет почаще удалять сажу.
Схема подключения водяного теплообменника, стоящего на дымоходе
Теплообменник самоварного типа, установленный на дымоходе, нельзя подключать напрямую к водопроводной сети. Существует опасность закипания охлаждающей жидкости и поломки трубопровода.Лучше использовать схему подключения через емкость с водой — теплоаккумулятор, который также можно сделать своими руками из газового баллона. С описанием и чертежами его конструкции вы можете ознакомиться.
Буржуйка — небольшая самодельная металлическая печь, получившая распространение в первой половине 20 века. Позже, с появлением централизованного теплоснабжения, его популярность упала. Вторая волна его массового использования пришлась на годы Великой Отечественной войны, а третья — в 90-е годы того же века для отопления загородных домов.Сегодня буржуйки чаще используют в гаражах или подсобных помещениях. В чистом виде, без переделок, они неэкономичны: горючее «поедают» как буржуйские, но если перестать «кормить», быстро остывают. Самый простой вариант сделать — это газовая плита из газового баллона. Обшивка уже готова, нужно просто вырезать отверстия для заливки горючего и зольника, прикрепить к ним дверцы, приварить ножки и дымоход (диаметром 150 мм и не меньше).
Цилиндр в такой духовке можно ставить вертикально или горизонтально.Он быстро нагревается, но также остывает сразу после того, как топливо перестает гореть. Тем не менее, для того, чтобы быстро убрать гараж или дачу от минусовых температур или растопить в осенне-весеннюю погоду — отличный вариант.
Какой баллон взять для печки?
Понятно, что за кузов пойдет баллон с газом. Но они бывают разных размеров. Самый маленький из 5 литров не стоит использовать для изготовления печей: слишком малы объемы и он не может ничего нагреть.Также есть баллоны на 12 и 27 литров. Из них получится маломощный агрегат для совсем небольшого помещения: больше 3 и 7 Киловатт тепла из них получить нельзя. В принципе, это может быть пеший вариант, но вес будет солидным.
Оптимальный вариант стационарной буржуйки в гараже или на даче — газовый баллон на 50 литров. Высота 850 мм, диаметр — 300 мм. Объем и толщина стенок достаточно велики, чтобы сжечь любое топливо. При этом он не очень тяжелый, с ним можно работать в одиночку.Буржуйка из пропанового баллона на 50 литров — лучший вариант.
Промышленные газовые баллоны объемом 40 литров имеют примерно такой же объем, диаметр менее 250 мм, высоту больше, стенки толще. Фреоновую баллонную плиту, с той же мощностью, которую можно получить из нее, будет сложнее сделать: масса большая, а она длинная. Укорочив высоту примерно до 700 мм, можно сделать небольшую толстостенную буржуйку, которая будет немного дольше греться, но немного лучше «удержит» тепло.
Важно! При работе с газовыми баллонами соблюдайте технику безопасности!
Как безопасно разобрать газовый баллон: безопасность смотрите в этом видео.
Из чего и как сделать двери
Двери для буржуйки можно купить литые. На воздуходувке потребуется небольшая высота и побольше — для укладки топлива. Есть уже готовые блоки — проточная дверца с воздуходувкой в одной конструкции. В этом случае в вырезанное по размеру отверстие вваривается сваренная по размерам рама из углов, и к ней уже прикручивается отливка.Чтобы не выдувать трещины, по периметру выреза под дверцу приваривается небольшой бортик — 1-2 см полоска металла.
Двери нельзя покупать, а использовать вырезанный кусок стены из воздушного шара. Тогда вам понадобятся какие-то петли или детали от замены. С петлями все понятно: размечаем места, привариваем. Есть такой интересный вариант самодельных петель: несколько звеньев толстой цепочки.
К такой двери нужно будет приварить защелку.
С решеткой или без?
В самом простом варианте решетки нет. Если цилиндр маленький или расположен горизонтально, то изолировать часть внутри проблематично. В этом случае конструкция буржуйки из баллона довольно проста: корпус, поставленный на ножки, имеет одну дверцу, в верхней части приварена труба для подключения дымохода. Все. Вся печка.
На фото выше представлены примеры таких простых духовых шкафов. В них для улучшения теплопередачи к корпусу снаружи приваривают полосы металла.В верхней части, помимо дымовой трубы, есть еще один выход — на него устанавливается крышка, и этот выход используется как плитка для приготовления, подогрева чая.
Если вы все же хотите сделать решетку в буржуйке из горизонтально установленной емкости, придется сварить нижний поддон для сбора золы. Ниже представлен рисунок и фото практической реализации.
В вертикальном исполнении печи чаще всего устанавливают от баллона. В этом случае место выделить проще.Обычно внутрь приваривают прутки толстой арматуры: чугунную решетку подходящего размера найти сложно. Но этот вариант плох, потому что фурнитура быстро выгорает, а ремонт усложняется: старую фурнитуру снимают, новую приваривают. Можно внутри приварить куски толстого уголка или арматуры (как на фото), отдельно сварить решетки из арматуры и по углам уложить их отдельно.
В этом видео рассказывается, как своими руками сделать печь из газового баллона — решетки делают из арматуры.
Лучшее рассеивание тепла
Самая большая проблема буржуазии — неэффективное использование тепла. Большая его часть буквально летит в дымоход. С этим недостатком эффективно борются в топках топочного сжигания с дожиганием дымовых газов типа (также, кстати, может изготавливаться из газового баллона) и.
Вариант буржуйки из пропановых баллонов с вторичным дожиганием по КПД выше, чем у «обычных» моделей.
Еще один способ улучшить теплопередачу — удлинить дымоход, тем самым увеличивая количество тепла, которое остается в помещении.При проектировании такого ломаного дымохода лучше избегать горизонтальных участков, а особенно участков с отрицательным уклоном.
Эта газовая баллонная печь работает на дровах. Повышенное тепловыделение за счет длинного сломанного дымохода
Другой вариант использования тепла дымовых газов — это приварить вертикальную дымовую трубу к горизонтально расположенному корпусу цилиндра. За счет большей площади теплоотдача будет выше. Только нужно будет создать хорошую тягу, чтобы дым не уходил в комнату.
Вы можете сделать это так же, как в банных печах: натянуть сетку на металлическую трубу, в которую можно засыпать камни. Они будут отбирать тепло от трубы, а затем передавать его в комнату. Но. Во-первых, пока камни не нагреются, воздух будет медленно прогреваться. Во-вторых, подходят не все камни, а только круглые, которые лежат вдоль рек. Причем равномерно окрашен без включений. Других нельзя заснуть: они могут взорваться от высоких температур не хуже, чем осколочный снаряд, или испустить радон, который в значительных концентрациях очень вреден.
Но у этого решения есть свои преимущества: во-первых, труба не горит. Камни излучают даже тепло. Во-вторых, после того, как плита погаснет, они будут поддерживать температуру в помещении.
Часто нужно быстро утеплить комнату. Для этого можно использовать обычный вентилятор, который будет обдувать корпус и / или трубу печи. Но эту же идею можно реализовать и в стационарном варианте: в буржуйку в верхней части вварены сквозные трубы.С одной стороны, к ним прикреплен вентилятор (термостойкий, лучше — с несколькими скоростями, чтобы можно было регулировать температуру).
Еще один вариант, позволяющий добиться активного движения воздуха по стенкам корпуса и не использовать вентилятор: сделать кожух вокруг корпуса на расстоянии 2-3 см, но не сплошным, а с отверстиями снизу и сверху. . По такому принципу работают или металлические печи для бани.
Один из вариантов такого кожуха вокруг горизонтально расположенного цилиндра виден на фото ниже.Через щели, которые находятся внизу, всасывается холодный воздух, находящийся у пола. Проходя по раскаленному корпусу, он нагревается и выходит сверху.
Принцип не нов, но не менее эффективен. Как выглядит готовая печь с таким кожухом, смотрите фото ниже.
Вот еще один кожух, сделанный вокруг буржуйки из горизонтально расположенного цилиндра. Обратите внимание на нестандартное крепление двери.
Самодельный котел из газового баллона для нагрева воды можно сделать по такому же принципу: вокруг баллона приварить водяную рубашку, и подсоединить ее к радиаторам.Только не забывайте, что в системе должен быть расширительный бачок объемом 10% от общего рабочего объема.
Как сделать буржуйку из газового баллона и как ее улучшить вы теперь знаете. Посмотрите еще одно видео об интересном варианте комбинированной печи для дачи или гаража из кирпича и газового баллона.
С наступлением холодов актуальным становится вопрос утепления. Это особенно важно для комнат, которые вы посещаете время от времени. Сюда входят гаражи, мастерские и подсобные помещения, где было бы нецелесообразно устанавливать стационарную систему.В некоторых случаях это совершенно невозможно, но если вам не удается обойтись без отопления, можно своими руками сделать плиту из газового баллона.
Рекомендуется использовать один из двух вариантов, первый предполагает создание системы на электричестве, а второй на твердом топливе. К числу последних можно отнести буржуйку, создать которую сможет даже неопытный домашний мастер. Основным элементом этой конструкции будет выступать корпус, в нем необходимо будет проделать два отверстия, через которые внутрь будет проходить топливо.В системе должен быть вентилятор и дымоход. Последний элемент часто подключается к отсеку, в котором собирается зола. Для облегчения чистки духовку придется оборудовать в этом месте еще одну дверцу.
Если делать печь из газового баллона своими руками, то дымоход не следует укладывать коротким путем, при этом большая часть тепла будет улетучиваться наружу. Такой подход нельзя назвать рациональным, поэтому специалисты советуют оборудовать трубу ломанной формы. Так вы сможете повысить эффективность обогревателя.В качестве топлива можно использовать уголь, дрова, старую одежду и даже бытовой мусор. Буржуйка также привлекает мастеров своей простотой, а также универсальностью, ведь с ее помощью можно не только обогревать комнаты, но и готовить еду.
Подготовка к работе
Если вы собираетесь делать печь из газового баллона своими руками, то сначала необходимо подготовить баллон к работе. Эту процедуру нужно проводить обязательно, иначе газ может взорваться от искры, возникающей в процессе резки.Мастер должен открутить вентиль и дать уйти оставшемуся газу. После этого емкость следует перевернуть и слить конденсат. Его запах нельзя назвать приятным, поэтому стоит собрать остатки в сосуд.
Баллон устанавливается вертикально и заполняется водой, это удалит оставшийся газ внутри, после того, как баллон перевернут на бок, что позволит жидкости стекать, теперь баллон можно начинать резать. Перед началом работ важно определиться, как будет располагаться буржуйка: горизонтально или вертикально.
Первый вариант печи
Духовка из газового баллона своими руками на дереве может быть изготовлена на основе горизонтальной конструкции. Первоначально необходимо будет отрезать верхнюю часть цилиндра, а затем установить ее внутрь. Его следует сделать из арматуры, разместив элементы змейкой. Монтаж колосниковой решетки сопровождается сваркой, после которой можно делать лицевую часть топки. На стальном листе нужно очертить контур круга, диаметр которого будет равен внешнему контуру цилиндра.Затем деталь вырезается, а внутри круга намечаются два прямоугольных отверстия. Первый нужен для подачи топлива, а второй будет выступать в роли нагнетателя.
Основная сцена
Если вы сделаете печь из газового баллона своими руками, то можете рассмотреть фото в статье. С помощью болгарки или стамески необходимо будет вырезать намеченные отверстия, о которых шла речь выше. Готовый чехол следует укрепить сваркой штор и установить на них двери.Последние следует заделать асбоцементным шнуром. На этом можно предположить, что лицевая часть печи готова, можно приступать к работе с тыльной стороной. На этом этапе предусматривается обустройство дымохода, для чего нужно проделать отверстие размером, равным диаметру трубы. В нем устанавливается дымоход нужной формы, который должен быть выполнен из толстостенной трубы.
Изготовление вертикальной печи
Если вы сделаете печь из газового баллона своими руками, вам пригодится пошаговая инструкция.Если нужно выполнить вертикальное строение, можно использовать один из двух способов. Первые предусматривают внушительный объем работ, они связаны с резкой, однако этап монтажа будет сопровождаться меньшими трудностями. Если вы решили выбрать именно такой способ, то с помощью болгарки нужно избавить емкость от верха. Второй способ сэкономит время, электроды и силы, но его нельзя назвать удобным. В этом случае верх должен стоять на своем месте.
Какой бы метод вы ни выбрали, спереди вам нужно будет вырезать большое отверстие для горения.Ниже находится отверстие меньшего размера для очистки и продувки. При изготовлении плиты из газового баллона своими руками на длительное горение применяется та же технология. Отверстия могут иметь произвольные размеры. На следующем этапе подготавливаются решетки к монтажным работам, в первом случае эти элементы опускаются через верх, но вторая технология не дает возможности установить решетки таким образом, необходимо будет вводить их снизу. , что крайне неудобно.
Герметичность и установка дымохода
Если он будет из газового баллона, то на следующем этапе нужно установить завесы, а затем приварить их к отверстиям.Двери проклеены асбоцементным шнуром, что гарантирует отличную герметичность. Не забывайте, что для дымохода еще нужно проделать дыры. Через отверстие, которое находится в верхней крышке, будут выходить выхлопные газы и подаваться кислород. Его размеры должны соответствовать диаметру трубы. Можно предусмотреть боковой отвод дыма. В этом случае нужно поработать сбоку корпуса. Специалисты в некоторых случаях советуют оснастить колено, но можно сделать совершенно прямой вывод.Если цилиндр лишился верхней части, то дымоход можно установить сверху.
Производственная печь
Печку своими руками из газового баллона на тренировке легко сделать. Его конструкция несложная. Можно использовать листовой металл, для этого нужно сделать две камеры сгорания, к одной из которых прикреплены ножки. Два отсека соединены трубкой с отверстиями, и установка этого элемента осуществляется на верхней камере. Все эти работы предполагают использование сварочного аппарата и наличие определенных навыков мастера.Если вы хотите сократить время, воспользуйтесь газовым баллоном. Он имеет толстые стены и обеспечит пожарную безопасность. Подачу воздуха в одну из камер необходимо сделать регулируемой; для этого устанавливается заслонка, которую при необходимости можно открыть. Камера, куда будет подавать отработанное масло, должна получиться разборной, чтобы ее можно было очистить. Дымоход располагается вертикально, наклонных и горизонтальных участков быть не должно. Для хорошей тяги дымоход нужно выбирать такой, чтобы его длина составляла четыре метра и более.
Технология работы
При изготовлении печи из газового баллона в конце прогона необходимо отрезать нижнюю и верхнюю части от бака, получившиеся половинки составят основу разборной камеры сгорания. Нижняя часть должна быть оборудована металлическими ножками, а в верхней проделывается отверстие, в которое устанавливается труба с регулировочной пластиной. В центральной части должно быть отверстие, к которому приваривается труба, соединяющая два отсека. В соединительном элементе необходимо проделать отверстия для воздуха.Средняя часть бака пойдет на изготовление вторичной камеры сгорания, к которой крепится соединительный патрубок. Завершающим этапом станет изготовление и установка дымохода, что может оказаться проблематичным из-за внушительной длины детали.
Если вы будете делать печь из газового баллона своими руками, то размеры следует выбирать самостоятельно, эти параметры не так важны по той причине, что конструкцию можно легко отрегулировать. В гаражах и мастерских, а также в подсобных помещениях в редких случаях бывают идеально ровные полы.Чтобы правильно установить духовку и обеспечить ее пожарную безопасность, необходимо сделать ножки регулируемыми по высоте.
Если вы заметили, что масло брызгает из камеры сгорания, необходимо остановить устройство, дождаться полного остывания поверхностей и слить топливо. В отсеке должно быть не более 2/3. Если добыча закипает, необходимо уменьшить подачу воздуха с помощью регулировочной заслонки. Для достаточно интенсивной тяги нужно периодически чистить бак и дымоход.Избавиться от копоти на верхней части изделия получится постукиванием.
Вывод
Изготовление и эксплуатация такого нагревательного прибора очень дешевы. Это также связано с тем, что отработанное масло можно легко купить или практически бесплатно взять на СТО. Если вы автолюбитель, то для масла у вас может быть специальный бак, в который вы будете собирать добычу, добытую в теплое время года.
Частный дом отапливается, как правило, автономной системой отопления.Но хозпостройки и гаражи не нужно отапливать круглосуточно, и в то же время без тепла обойтись совершенно невозможно, особенно зимой в гараже при работе с автомобилем. По временному варианту можно обогреть подсобное помещение или гараж электронагревателем, но такое решение приводит к затратам, так как электричество сегодня является дорогостоящим ресурсом.
А вот вариант маленькой твердотопливной печки будет не только экономичнее, но и удобнее, так как небольшая печка своими руками или печь-ракета совершенно энергонезависимая, компактная и мобильная.Самая простая печь в изготовлении из газового баллона на пропане емкостью 50 литров, так как почти не требует шовной сварки.
Пропановые баллоны сделаны из толстой стали, и печь, в основе которой лежит газовый баллон, очень скоро перегорит. Для успеха вам понадобится сварочный аппарат и мастерство сварщика, так как вам потребуются качественные характеристики и хорошая сварка швов. Сварные швы бывают сплошными, а не прерывистыми, так как конструкция должна быть полностью герметичной, это главное требование к печке-буржуйке.
Работа и строительство
Про дизайн — радует своей простотой. Количество дверей — две: зольник, он же нагнетательная камера, и топка. Дымоход можно прорезать в задней или верхней части корпуса цилиндра.
По принципу действия сложностей тоже немного: кладут топливо на решетку, поджигают и наблюдают стремительный нагрев металлического баллона. Свойство металлов быстро нагреваться и так же быстро отдавать тепло, и охлаждаться хорошо известно, поэтому вам придется наблюдать за печью и периодически закладывать дрова в топку.По КПД данного агрегата — он низкий, а дров нужно много. А вот печь на твердом топливе и дровах кушать любая — здесь нет капризов, это одно из достоинств данной конструкции. всеядная буржуазия — общеизвестный факт, подходят не только бревна, торф и уголь, но и много видов бытового мусора, бумаги и тряпки, столярных отходов и т. д.
Два важных момента: первое — металлические печи много работают эффективнее, если они облицованы кирпичом, а можно использовать обычный керамический кирпич (не огнеупорный), а кладку выполнить с добавлением глины в раствор.Обязательным условием является наличие воздушного зазора 50 — 100 мм между горячим металлом и кирпичной кладкой.
Второй момент — для увеличения теплоотдачи буржуйки монтаж дымохода следует производить не вертикально, а под углом, длину дымохода увеличивать, проводя его по стенам и потолку. Такой сломанный дымоход поспособствует более полному сгоранию топлива, в том числе и небольшого остатка. Для получения экономайзера выход дымоходной трубы из корпуса печи делают вертикальным, как и положено по правилам теплотехники, но тогда труба идет под углом или в виде ломаных отрезков.В этом случае раскаленные дымовые газы не смогут сразу улететь на улицу, но почти все тепло отдадут помещению. Конечно, такая печь с дымоходом будет стационарной.
Работы по изготовлению печки из баллона
Прежде всего, бывший пропановый баллон освобождается от постоянно присутствующих остатков газа. Осторожно открутите клапан и направьте струю в обратном направлении. Газовая струя видна глазу, а когда она высыхает, необходимо слить из баллона конденсат — крайне неприятное вещество с резким неприятным запахом.Переворачивая емкость и сливая конденсат в ненужную емкость, а затем утилизируя ее, можно избавиться от ненужного запаха. Следует следить за тем, чтобы конденсат не попадал на пол или мебель в доме, так как избавиться от этого запаха будет сложно. Лучше всего готовить емкость не в помещении, а подальше от всех построек.
После освобождения баллона его снова переворачивают и в вертикальном положении заполняют водой под горлышком.Вода вытеснит последние остатки газовой смеси. Затем баллон кладут на бок и сливают воду. После этого баллон полностью безопасен и к нему можно применять электрическую или газовую сварку, а также резку болгаркой.
Буржуйка из баллона, как и все другие модели буржуйок, бывает вертикальной и горизонтальной. Второй считается наиболее простым, традиционным и «технологичным» в исполнении.
Краткая технологическая последовательность горизонтальной буржуйки:
- Срезать крышку баллона.Инструмент — Болгарка
- Сделайте отверстие для установки дымохода в задней или верхней части корпуса. Диаметр сопла может быть в пределах 80 — 120 мм.
- Для передней стенки печи потребуется металлический лист определенной толщины. Не менее 4 мм и достаточно большого размера, чтобы вырезать круг диаметром, равным диаметру цилиндра. Для воздуходувки он — зольник, а для камеры сгорания по кругу болгаркой или стамеской вырезают два прямоугольных отверстия. Аккуратно вырежьте, чтобы получилась основа для дверей.Окно печи можно заделать, уложив асбошноровый шнур изнутри по контуру отверстия. После приваривания петель к вырезанным прямоугольникам получаются двери.
- Арматурные стержни, изогнутые змейкой, могут служить решеткой. Прикрепите получившуюся решетку к внутренней поверхности цилиндра на сварку — это упрощенный метод. Немного сложнее, но практичнее для дальнейшей эксплуатации будет поставить решетку на приваренные к боковым частям цилиндра уголки.
- Ножки для печки — очень важный элемент. Ножки можно сделать из стальной трубы, достаточного диаметра 32 — 50 мм. Ножки также можно приварить снаружи емкости.
- В последнюю очередь выполняется стыковая сварка, соединяющая цилиндр и переднюю часть печи с отверстиями для топки и нагнетателя.
- Печь будет готова после подключения дымохода из стальной трубы. Первая печь покажет герметичность конструкции. Как правило, при аккуратном исполнении и хорошем проплавлении шва печь работает исправно.
Вертикальную буржуйку из баллона сделать можно двумя способами. Принципиальных отличий от горизонтальной конструкции нет, разве что ножки не требуются для вертикальной установки.
- Способ первый: труднее резать и сваривать, но удобнее в монтажных работах. Начало работы — как при изготовлении горизонтальных буржуй. Крышка цилиндра срезается и внутрь устанавливается решетка из стальной арматуры. Сбоку прорезаны отверстия под нагнетательную и топочную камеры.
- Второй способ: резать металл практически не нужно, а вот печь собрать сложнее. Крышка не прорезается, а решетка фурнитуры устанавливается через щелевое отверстие топочной камеры. Работать в таких стесненных условиях очень неудобно, а вот плита почти прочная.
Изготовление баллонной ракетной печи
Отличия буржуйских и струйных печей:
- Ракетная печь имеет более высокий КПД. Причина в особой организации движения раскаленных дымовых газов, в том числе угарного газа CO, внутри топки, в данном случае цилиндра.Траектория этого движения особенно длинная и сложная, а теплоотдача соответственно выше. Ракетная печь из того же баллона на 50 литров сможет обогреть помещение большей площади по сравнению с буржуйским вариантом.
- Конструкция ракетной печи дополнена внутренней частью — квадратной трубой, снятой снизу со стального бака. На концах патрубок не закрывается, а его внешняя часть служит камерой сгорания, а внутри образуется открытый дымоходный канал, по которому нагретый воздух поступает в цилиндр.
- Дымоход подключается не на верхнем, а на нижнем уровне конструкции, так как потоки горячих дымовых газов, дыма и нагретого воздуха также пойдут сверху вниз и полностью заполнят баллон.
Ракетная печь намного сложнее буржуйки; Для этого потребуются дополнительные узлы и детали. Снять дымоход снизу сложнее, а установка квадратной трубы внутри цилиндра и обеспечение потока воздуха на двух уровнях, первичном и вторичном потоках, усложняют изготовление.Ракетные печи из газовых баллонов сделать проще, так как есть готовый герметичный корпус из толстой стали заводского изготовления. Резка требуется только для устройства отверстий для подключения дымохода и под дверцу камеры сгорания.
Топка ракетной топки выполняется как для топок длительного горения, методом нагрева до «теплой трубы». Первым делом необходимо заложить легкое горючее топливо (бумага, солома, ветки и листья). Когда дымоход прогреется, сделайте закладку на топливо из угля или дров.Ракетные печи получили свое название отчасти благодаря своим характеристикам — при неправильной эксплуатации (очень сильная тяга с открытым нагнетателем) можно получить поток огня сверху и звук, напоминающий турбинный или, как говорится, взлет ракеты.
Ракетная печь требует особого подхода, так как на каждый вид топлива нужна экспериментальная настойка. Чтобы определить режим печи, в начале процесса полностью откройте дверцу воздуходувки и наблюдайте. Как только печка переходит в штатный режим — начинает «гудеть», дверца поддувала постепенно закрывается, уменьшая подачу воздуха и тягу.Когда печка перестает гудеть и «шуршит», зазор между дверцей нагнетателя и корпусом оставляют в определенном положении.
Можно было комфортно работать круглый год, должна быть система отопления. Чаще всего в гаражах можно встретить так называемые буржуйки. Такие печи изготавливаются быстро и просто из минимального количества материалов. Некоторые буржуйки служат не только для обогрева, но и для приготовления пищи.
В статье будет рассмотрен пример создания буржуйки для гаража из обычного газового баллона.
Материалы и инструмент для изготовления:
— газовый баллон;
— болгарка;
— ножовка по металлу;
— молоток;
— сварка;
— лист бумаги, маркер;
— трубы для дымохода;
— петли для подвесных дверей.
Шаг первый. Подготовка к воздушному шару
Опасно!
Перед тем, как приступить к созданию буржуйки из газового баллона, нужно ее обезвредить, так как при резке она может взорваться.Чтобы обезвредить воздушный шар, автор рекомендует сжечь его на костре в безлюдном месте.
Чтобы сжечь баллон, сначала нужно открутить вентиль и спустить весь газ. Также баллон можно перевернуть и слить из него оставшийся газ. Далее нужно снять вентиль. Для этого берется ножовка и с ее помощью делается надрез в основании клапана глубиной около 2 мм. Затем клапан сбивается точным ударом молотка.
При стрельбе баллон ставится горизонтально и засыпается дровами, которые затем поджигаются.По словам автора, такой способ розжига безопасен, так как баллон постепенно нагревается и пламя не проникает. Но все же после того, как дрова будут подожжены, желательно отойти на безопасное расстояние.
Step Two Hood
После того, как цилиндр остынет, можно смело приступать к работе, теперь он уж точно не взорвется. Для начала вам понадобится мел и болгарка. В верхней части емкости нужно мелом прорисовать дырочку под будущую вытяжку. Диаметр отверстия должен быть таким, чтобы потом к этому месту можно было приварить трубу для вытяжки.Отверстие и труба должны быть такими, чтобы обеспечивать хорошую тягу печи, иначе дым уйдет в гараж.
Шаг третий Изготовление топки и зольника
Теперь нужно снова вооружиться мелом и определить место под топкой и зольником. Оба эти отсека будут расположены на дне контейнера. Затем с помощью болгарки можно вырезать два отверстия. В результате останутся два куска металла, их нужно законсервировать, так как из них будут сделаны дверцы для печки.
В то же время зольник будет работать как воздуходувка для лучшего горения.
Шаг четвертый Изготовление решетки
Эта решетка устанавливается в цилиндре между топкой и зольником. На него будут уложены дрова. Такой мангал можно купить или сделать своими руками. Для его изготовления подойдет стальной уголок или металлические пластины. Еще можно проделать отверстия в стальной пластине подходящего размера. Далее внутри емкости приваривается решетка, как на фото.
Чтобы точно рассчитать размер при самостоятельном изготовлении решетки, дно емкости нужно положить на лист бумаги и затем обвести маркером или краской. Получившийся круг нужно вырезать, в результате получится выкройка.
Шаг пятый Завершающий этап сборки
На заключительном этапе буржуйка уже полностью собрана. Здесь уже нужно поработать над сваркой.Двери навешиваются сваркой. Как вариант, вы также можете использовать дрель и болты с гайками, но это более длительный процесс.
Также нужно помнить о сборке и сварке дымохода, он собирается из труб подходящего диаметра. Чтобы получить как можно больше тепла, дымоход нужно сделать максимально длинным. Будет здорово, если вы пропустите его по всей длине гаража. К верхней части баллона приваривается дымоход.
Вот и все, буржуйка почти готова.В принципе, его уже можно попробовать растопить. Если тяга слабая, можно попробовать удлинить трубу вверх. Также к буржуйке можно приварить металлические ножки, если это необходимо, в крайнем случае можно поставить еще и на кирпичи.
Еще автор решил усовершенствовать буржуйку, чтобы она могла нагревать чайник или готовить что-нибудь поесть. Для этих целей в верхней части была встроена горелка. Он сделан из задних тормозных барабанов от автомобиля.
В качестве дров для такой печи годится все, что горит. Автор чаще всего использует старые деревянные оконные рамы, которые выбрасываются в большом количестве. Их древесина часто бывает сухой, и такое топливо дает много тепла. Буржуйка прогревается за 20 минут. Чтобы буржуйка была красивее, ее можно покрыть термостойкой краской или грунтовкой.
НАГРЕВАТЕЛЬ PARA SA MGA ТЕПЛИЦА: АЛИН АНГ МАС МАХУСАЙ, КУНГ ПААНО ГУМАВА, ПУМИЛИ НА PAG-INSTALL ОБОГРЕВАТЕЛЬ NG ISANG — PAGSASAKA
Для создания теплиц, создания оптимальной температуры и температуры.Создавайте обогреватель теплицы, используя кахалили и запускайте калан. Ang kanilang pa
Нилаламан:
Для прекрасных теплиц, когда вы начинаете работать с высокой температурой, она наугад. Создание обогревателя теплицы просто потрясающе в калане. Этот язык предназначен для всех видов деятельности. Isaalang-alang natin ang isyung ito nang mas detalyado.
Сделать открытие в теплице
Память для детей, которые помогут вам создать карту, будет открыта, чтобы сделать ее лучше. Вы можете набраться опыта, чтобы получить доступ к своим мыслям по всему миру и получить много результатов. Благодаря этому, лучший способ сделать теплицу столицы и добавить ее. В этом случае, вы можете использовать автоматическое управление для управления на субайбая и прослеживание.Наша система создает удивительные экзотические предметы, которые подходят для всех желающих.
Махалага, который устанавливается в теплицу с очень хорошим климатом, может быть установлен с помощью специальной метки, которая может быть использована с холодными лучами и заморозками. ВНИМАНИЕ !!!!!!!!!!!!!!!!!!!!!!!!!!!!!!!!!!!!!!!!!!!!!!!!!!!!!!!!!!!
Махалага! Как сделать уборку для зимней теплицы, добавить параметры теплицы и климатические условия, а также различные устройства, и все.Узнайте, как получить доступ к каналам на хинди, чтобы получить больше информации, чем это сделать.
Кайлан и его использование
Используйте обогреватели в любое время:
- С обогревателями. Сделать это для любого режима работы или изменения температуры тела для каждого человека, который будет использоваться для всех катангов пананим на lumago.Halimbawa, с минимальной температурой в любом диапазоне значений + 10 ° С, ngunit sa + 16 ° ° mas mabilis silang babangon.Для нормального отображения текста, температура висящего на Габи хинди выше, чем на + 15 ° С, а температура на ибабе + 12 ° — на хинди, как на хинди. Теплолюбивые, теплые, накатанные, могут быть увеличены на + 10 … + 12 ° °. При работе и ногах действует максимум на + 3 … + 5 °. В зависимости от температуры, температура в любой точке имеет отличную степень, которая может быть лучше всего в буках на каме.
Как сделать пампинит, открыть все страницы или ученики могут быть лучше всего.У него есть температура, и он может быть лучше. Этот хинди ка дапат делает это для того, чтобы работать с температурой, которая работает для всех, кто хочет.
- Sa tag-init. Минсан, каждый раз, когда выбирает режим, работает с температурой на критическом уровне. Это кадаласан хинди для того, чтобы работать с часами, которые он защищает.
- Таглагас. Капаг увеличивает температуру и делает его лучше всего на Габи, и делает все возможное, чтобы начать работу с Габи.
- Sa taglamig. Напишите нам, что нужно сделать, чтобы настроить все средства для повседневного использования. Использование обогревателя может быть выполнено с использованием капитала или большого количества сил, которые могут быть эффективны и автоматизированы. Хинди это какой-то любой аппарат.
Анонсы страниц
Mayroong 3 дня теплиц:
- Natural. Natupad sa ilalim ng impluwensya sikat ng araw. Для этого, каналы появляются каждый день и в любое время суток. Gayunpaman, это означает, что каждый день происходит каждый день — в течение дня.
- Биологикал. Binubuo ito sa paggamit of bio-sangkap, kung saan, kapag nabulok, nglalabas ng and углекислый газ.Может какаяханг это анг патаба. Для этого, он является гало-халонгом с даями и слоем 25 см, который составляет 20 см в длину. Откройте для себя молитву, чтобы совершить прозвище агнусов. Это очень важно, чтобы задавать температуру тегов.
- Текникал. Для того, чтобы использовать различные технические устройства, которые не используются.
Кабель на различных технических устройствах, в которых есть все, что вам нужно:
- Запускайте калан. Иса в знакомства карапат на параан. Котлы и котлы используются для дизельного топлива, любого количества углерода. Создавайте увлекательные трубки из калана с помощью сил и других материалов. Наша инициализация создана на основе паттернов.
- Газ. Karaniwang isinasagawa gamit ang isang the gas silindro at горелка. Кавалерная система представляет собой хинди, помогающий инициализировать, в любом случае, получать кислород, естественный и висеть с большим удовольствием.Sa kasong ito, dapat alagaan ang bentilasyon. Газовые конвекторы очень много работают над этим и имеют много преимуществ, а также автоматическую защиту.
- Электрикал. Управление естественными действиями, связанными с использованием системы, позволяет контролировать действия, выполняемые инициализацией. Нгунит кумакаин силы много курения, он инициирует хинди пантай на ипинамамахаги, и может быть положен на солнце. Дизайн тепловентилятора (для небольших теплиц) и тепловых пушек (для промышленных предприятий) позволяет вам быстро и эффективно работать.Эти устройства любят нагреватель (воздухонагреватель), они могут быть очень полезны в больших количествах, которые используются в игре. Обеспечивает полную настройку устройств, позволяет использовать обогреватель теплицы с устройствами защиты и защиты, а также термостата, который работает так, чтобы начать работу.
- Кабель. Позволяет создать катаньяган по требованию. Это играет и делает работу с энергиями, надежными регуляторами.Marami itong kalamangan — это приложение, которое вы можете использовать, чтобы помочь вам сделать это.
- Инфракрасный обогреватель. Наблюдайте за технологией, которая накапливает энергию. Сила представляет собой простой и понятный способ работы с популярным мастером-мастером. Для теплиц, выращивания пеликан IR, страны Кореи (Leeil).Вы можете использовать каждый из них, чтобы использовать его в кисаме. Это самый эффективный способ использовать их в своих целях.
Электрический обогреватель, кабель и инфракрасная пленка накапливаются на электричестве, имеют самые последние рекомендации, которые нужно использовать, и вы можете использовать их в качестве калан на хинди, но это не так, как солнечная энергия. приготовление курения.
Алам мо ба? В любой Европе, использование солнечной энергии является популярным для пользователей. Лучшая и наиболее многообещающая для использования солнечных коллекторов, которые могут быть открыты. Эта система может быть makabuluhang kawalan — hindi ito gumagana sa maulap na araw and karaniwang nai-install bilang isang karagdagang.
Установите обогреватель теплицы с использованием ваших каменных
Для работы с теплицей, вы можете создать лучшую печь буржуйки — бубафон.Металлический стержень, металл толщиной 4–6 мм, изготовлен из листового металла толщиной 4-6 мм, который является одним из двух листов для любого пользователя. Самодельный калан это подходит для теплиц. Для хороших теплиц, лучше всего на 200 литров воды. Получите запасы магазинов в большом метро из труб естественного диаметра, которые можно купить в любой точке мира.
Как приготовить теплицы из поликарбоната.
Sunud-sunod na teknolohiya pagmamanupaktura ay the sumusunod:
- Gupitin the tuktok na takip ng bakal na bariles, with gilingan.
- Baluktot nang bahagya gilid of bariles с помощью кувалды, и это может быть сделано с помощью этого инструмента, в кабине. Сделайте так, чтобы сделать бариллы.
- Сделать бутыль с трубкой пресса.
- Используйте два листа из 4 мм, размер листа которого 4 см больше, чем диаметр брусков, и вы можете использовать его для труб большого диаметра.Из разных материалов, как сварка сваркой (10 см) сварочных швов (10 см) для вашего газолинии, для того, чтобы повесить сварку, можно получить доступ к газу. Сделать трубку сварен в буташ с гитной. Это работает, как мы понимаем, как насусуног на кахой это татахан. Эта пресса представляет собой такую информацию, как лучшая позиция, туманность представляет собой самые разные сентиметры в этой области.
- С помощью барилов, используйте малый уголь для золы.Сделайте поддон из ясеня из листа толщиной 4 мм, повесьте навес и сделайте это на стене.
- Сделать музыку на этих страницах и услышать пиратскую трубку, которая звучит в обычном режиме. Сделайте это лучше, если хотите, чтобы оно было сделано для того, чтобы отобразить главное в жизни.
Особенности установки DIY
Очень важно, чтобы кирпичи были изготовлены из бубафона и производились на заводе-изготовителе………………………………………………………………………..Для более высокого уровня загрузки, вы можете использовать его целиком и полностью, и воздуховод может быть открыт только через несколько минут метро в любой теплице. Это представляет собой полную систему страниц, и на хинди только пампинит.
Теперь вы можете найти много чипов на барахолке и синдицие этого, и вы можете попробовать их, используя трубку, которую вы хотите, чтобы сделать так, чтобы они были на ней.Самый лучший и лучший вариант для вашей системы — это чипсы, веточки, суп, гранулы. Лучшие из лучших. Если вы хотите услышать трос, переводить на хинди в любое удобное для вас место. Часы могут висеть на 6 часов. Поршень позволяет перемещать воду из буфера.
Видео: Bubafonya и настройки использования
Наше устройство может создавать основной режим для отдыха в теплицах.Элемент для более удобного использования на хинди, позволяет использовать более эффективный способ управления с каким-либо контролем. Есть одна резервная система, позволяющая избежать курения, вы можете сохранить ее в зимней теплице.
Махалага! Эта книга может быть использована только для людей на хинди. Mayroong peligro ng back draft capag gumagamit ng nakatayo na basang kahoy. Управление этим является разумным.
Наклонение к погоде
С низкой температурой и морозной погодой в межсезонье, вы можете использовать самые лучшие и простые домашние диски на 9113: Для защиты человека от подкованных харднеров, которые помогут организовать прекрасную баню в теплице.Реалистичная оранжерея, которая открывается на всю жизнь, позволяет создавать растения на странице. Благодаря такому глазурованному дизайну, вы можете создать теплицы или жесткие покрытия. Наша система работает только с заданным планом, который позволяет легко установить или установить систему инициализации. Алам мо ба? Уникальная система страниц, предназначенная для работы с людьми, которые уже были известны английскому инженеру Эвелин в 1675 году.Сделайте это для создания теплицы. Оранжерея помогает улучшить качество жизни, сделать ее основным блюдом для отдыха на открытом воздухе и защитить ее в межсезонье. Вы можете использовать множество различных обогревателей для теплиц и систем с исходной загрузкой. Bilang karagdagan, the aparato sa pag-init ay maaaring gawin ng your sarili. Адамовская печь (горелочная). Адамовская мебель
Красная альтернатива
Но, природа, где твой закон?
Из полуночных стран восходит заря!
Солнце восседает на своем престоле?
И льды пронзили огненное море?
Холодное пламя накрыло нас!
За ночь наступил день на землю!
Как такое может быть, что воздух такой замерзший
Среди зимы огонь породил? …
Есть споры с водой…
(Вечерняя медитация Михаила Ломоносова
о Божьем величии в случае
великое северное сияние »)
1. Идея.
2. Детонация воды. Масло-вода. Варианты приложений малоизвестного физического процесса.
3. Дизайн. Принцип операция. Заправка, топливо, брикеты.
4. Развитие идеи Генератор Адамова.
5. Пиролиз практический вариант.
6. Венчание идеи Адамова. детонационный генератор.
7. Вывод: 1 000 Британский фунт против Возрождение Родина Россия.
На основе на продвинутых знаниях (советская, русская школа) цель — улучшить горение топлива с возможностью обращения с гетерогенными твердыми отходами и создать простую духовку, позволяющую значительно сэкономить на нагреве. На наших просторах, красивая, но холодная Родина Россия снижение затрат на отопление имеет первостепенное значение, следовательно, для патриота-государственного деятеля Адамова, человека русского менталитета и духа, такое открытое представление накопленных знаний, в отличие от жителей Запада. делать, это так естественно.Однако конструкция устройств проста и доступна. для изготовления в любом цехе, есть возможность масштабной доработки и приходим к хорошему результату российская альтернатива
А как насчет девушек? (или деньги)? Все остальное — позже.
В заказывайте статью избегайте излишних творческих излишков и слезливых историй о трудностях и неблагодарной судьбе исследователей, тем более что Я не в строгом смысле слова, ни учёный, ни исследователь не буду отчет о проделанной работе в стяжательной военной манере.
1. Возгорание, взрыв, детонация это ядерные реакции, во время которых есть небольшой дефект в массе кислорода, топливо является катализатором реакции. Следовательно, нужно платить больше внимание к приготовлению смеси и способу взаимодействия.
2. Реакция тем эффективнее тем выше скорость процесса, которая в свою очередь зависит от концентрации и температура кислорода и углеводородных веществ.Это значит сжечь выгоднее, чем сжигать; а взорвать — лучше, чем сгореть. Плохие смеси взрываются.
3. Топливо следует нагревать до возможный; воздух максимально охлаждается и, желательно, предварительно сжат.
Вот три важных правила; я назовем их условно правилами Пи (Понуровский). Эти условия частично соответствуют следующим известным процессам:
1. Нагнетание холодного воздуха в горячее топливо — кузнечные печи, доменные печи.
2. Бубафоня печь — подача свежего воздуха самотеком на перегретую поверхность топлива с автоматико-механическое движение поршневой камеры по мере сгорания топлива.
3. Впрыск топлива в сжатый воздух (дизельное топливо) и следующий технический этап — форкамеру активация топлива.
4. Детонация распыленного топлива в дизельный двигатель (дизель Тоскин).
5. Детонация распыленного топлива в воздух (вакуумная бомба). Следует отметить, что российские ученые, как всегда, лучшее понимание этих процессов и поэтому наша Папа-бомба превосходит их мама-бомба временами.
Да здравствует Русская наука!
6. Детонация кислородного баллона от незначительное количество масла.
7. Поставка перегретой смеси масла и воды в потоке нагнетаемого воздуха (Turbo & heat генератор Аракеляна).
8. Разработка компании Elsbett.
9. Прогрессивный движок LIAP.
10. Работа импульсного жиклера с подогревом топлива.
11. Паула Реактор Pantone.
12.Адам Бёрнер.
Шаг за шагом исследователи и техники интуитивно подходят к основной формуле горения (Понуровский) холодный сжатый кислород плюс импульсный впрыск перегретого топлива или наоборот — принудительная подача холодного воздуха к нагретому маслу. Интуитивно понятная картинка от никакие средства — это наука; наука — числа и закономерности.
А с числами и законами мы видим просто чудеса.
Смесь Тоскина беднее ТРИ раза (при таком же приросте мощности?).
Dad-Bomb в ЧЕТЫРЕ раза эффективнее (по что значит?) чем мама-бомба.
Детонирует порция 10 г масла или 40 кг кислорода?
Аракелян утверждает, что тепловая энергия многократно превышает теплотворную способность топлива.
Веселее с парнями, имеющими дело с Реактор Pantone. Вода в бербуляторе (водопровод, муф) не уменьшается и не нагревается выше 80С (такое бывает в закрытой пластиковой посуде при соприкосновении с частью выхлопа), и двигатель, и на удивление нам и по тестеры, умеющие пыхтеть без доступа воздуха?
http: // www.youtube.com/watch?v=zL2woaYyhhc
http://www.youtube.com/watch?v=JGCXJ1AX4X4
Отличие товарища Адама в том, что во время впрыска холодной воды горелка детонирует и белеет, отчетливо указывая на увеличение емкости в разы.
Препродакшн Модель
Детонация вода (условный срок)
Это процесс — недостаточно изученное физическое явление, требующее особого внимание из-за уникального положения, чтобы значительно увеличить эффективность сгорания.При опрыскивании горячей водой перегретого масла (см. Выше 300C) происходит взрывное испарение с выделением избыточной энергии, превышающая в несколько раз энергию нагрева масла. Ссылка на оригинал — метод производства тепловой энергии (Ladislao). Но понимание происходящего процесса происходит после детального изучения изобретений Понуровского, в частности, метод регенерации топлива.
Таким образом, под руководством товарища Адама на деньги брата Артема Адамяна и при технической и инженерной поддержке великого советского специалиста технолог Костандян Климент, мой дядя, мы были проведение длительных вонючих и опасных экспериментов и измерений.
Результаты и выводы : Физический процесс взаимодействия определенно не теплообмен, а взрывная реакция огромной мощности на поток пара при 170-180С. Грубые измерения эффективности показывают: энергия пар превышает энергию нагрева в 2-3 раза без теплоизоляции камера. Согласно описанию изобретения он должен быть не менее до 10 раз. Между тем есть небольшая проблема: при нагреве выше 250С происходит выброс пиролизных и полуокисленных коррозионных газов.С участием закачка воды, в начале реакции наблюдается масляный туман (утечка масла из реактора). Без нагревания реакция быстро сходит на нет (в около 5 минут). При понижении температуры масла ниже 220 ° C он останавливается, и закачиваемая вода накапливается в реакторе. Для управления нагревом и впрыском трудно.
Соображения : Предельная температура нагрева 300-320С, указанная в описании изобретение Ладислао имеет две причины: более высокие температуры вызывают спонтанные самовозгорание масла, а если перекрыть доступ воздуха — деградация масла (пиролиз) начинается.При этом при такой реакции (обрызгивание холодной водой в среде перегретого газа для получения максимальных результатов — разрушение молекулы воды) товарищ Понуровский рекомендовал температура до 550С. В нашей попытке поднять температуру реакции получился фонтан смеси водяного пара, масляного тумана и коррозионного газ вместе с реактором загорелся. Вся территория становится покрывается масляной пленкой, и соседи вызывают пожарную охрану. Обычно после такого безобразия рождаются здоровые идеи — не надо хилых страдать, Европейская, зеленая идея — энергия без огня. ср красные (истинный цвет жизни и здоровья) , и нам незачем избегать страсть, огонь и борьба.
Следовательно, было решено обуздать и контролировать этот взрывной процесс в пожаре. Реакция сами продукты (пар, масляный туман и пиролизные газы) не горят, а попадание в сильный пожар вызывает быстрое (почти взрывное) усиление огонь, как по температуре, так и по мощности. Идея родилась, и это было красиво — гибрид печки с наддувом и большим энергетическим процессом взрывного взаимодействие холодной воды и перегретого масла.
1. Реактор Ladislao размещен внутри горелка в виде верхней крышки с распылительным устройством.
2. Pantone Реактор в форме трубопровода.
3. Плита наддувная горелка, работающая на угле, древесине или брикетах и оснащенная удобный канал для доливки топлива.
4. С умеренный наддув работает в режиме духовки.
5. С в режиме горелки работает средний наддув.
6. Сильный наддув позволит второй турбина для получения дополнительной энергии генератора Адамова.
Рис.1. Горелка Адамова.
Важно примечание : автономное электроснабжение, отличающееся доступностью а практическое устройство — нерешенная проблема.
1. Дизельные или бензиновые генераторы бывают шумно, топливо дорогое, требует обслуживания, а стоимость произведенной энергии намного выше, чем питание от сети.
2. Солнечная, ветер — не обладают необходимой мощностью, зависящей от погодных условий и очень дорогой.
3. У Turbocon есть интересные разработки. (нет коммерческого девелоперского проекта).
4. Индигирка печь — дорого, мало мощность.
5. Гидростанция Whirlpool — очень перспективно для горных ручьев, но не подходит для домовладения и города.
6. Мини-АЭС тоже экзотика.
7. Развитие технологий топливных элементов хорошие перспективы, но не быстро и не массово.
Выработка электроэнергии 10-20% тепла за счет сжигания топлива будет небольшой переворот — удобно, бесплатно электричество.
Главное условие — не усложнить оборудование и сохранить доступную стоимость получаемой энергии.
Рисунок 3 Генератор Адамова.
Наблюдается и проверено — водонефтяная смесь, если она попадает в среду с высоким температура, взрывается (щелчки), что эквивалентно описанному процессу в изобретении Ладислао.
Горение в топке Адамова как горение в топке Бубафоня: слоистое сгорание (сверху вниз) Поэтому для общедоступной версии рекавери печь лучше реализовать простое добавление смеси вместо сложная инъекция.
Рисунок 2.1 Печь Адамова.
Что касается фактических (применимых) остатков твердой массы моих трудов, я предложить для дальнейшего изучения и будущего применения упрощенную конструкцию печь и регенерационная печь.(рис. 2.2)
Разработано и реализован по-советски — дешево, надежно и практично. Три советских Над проектом работали инженеры, использовались советские станки и металл.
Заправка. Рекомендуемый состав топлива и последовательность заправки.
1. Смесь: смешанная древесина и отходы (бумага картонная упаковка, тряпки, резина, кожа, органические, сельскохозяйственные отходы).
2. Смесь: опилки, пластик (опилки желательно пропитанные отработанным маслом)
3. Смесь: масло-вода примерно 50/50. (не критично, можно экспериментировать с разными соотношениями)
4. Древесина или брикеты
Если духовка теряет мощность (обычно с низким содержанием калорий и через несколько часов эксплуатации) требуется дрова или брикеты.
Шаг вперед — производство мусорных брикетов следующими технология:
Цех по переработке ТБО будет производят пиролизное масло из пластмасс.Далее — ассорти из бумаги, картона, дерева, резину, ветошь, сельскохозяйственные отходы и т. д. измельченные и смешанные с горячими остатками тяжелые фракции (углеродный остаток в смеси с мазутом и парафином). После охлаждения мы получаем экологически чистые, калорийные брикеты, которые отлично горят в наших печь. Оставшаяся после обработки фракция — моторное топливо. Получать два сетевых бизнеса:
1. Переработка и переработка твердых отходов с производством твердых и жидкое топливо.
2. Производство и продажа печей, генераторов и топливных брикетов к ним.
Утилизация продуктов человеческой деятельности важнее раздуваемой проблемы неэкологическое производство углеводородной энергии. Тезис об окончательности и тупике для углеводородной энергетики в корне ошибочен. Абиогенное происхождение углеводородов является более полной и системной презумпцией, поэтому абсурдно тронутый ветряными мельницами и проектами солнечной энергии так же уродливо, как дать увеличить использование мяса и одежды из натуральных (животных) материалов.Что в этот случай следует считать более гармоничным, естественным (экологически чистым). дружелюбный) — дело вкуса, традиций и мировоззрения. Но это аккуратнее и эффективнее — сжечь — давно пора.
Пожалуйста обратите внимание на чистые выхлопные двигатели, работающие с реактором Pantone, Pulse форсунки с турбонаддувом с подогревом топлива и теплогенератором Аракеляна, и, наконец, серия изобретений нашего соотечественника Понуровского. Применим его изобретение способ переработки топлива в процесс пиролиза, но полностью упрощающий дизайн для удобства.
Рисунок 4 Практический пиролиз
1. Давай откажемся закрывать реактор с десятками орехов — это долгий и неудобный процесс. Мы сделаем легко снимаемый люк.
2. Давайте откажемся от разгрузки реактора через кран, чтобы дождаться охлаждения, и давайте прикрепим нижний люк для очистки реактор из угля и золы.
3. Давайте добавим впрыск газированной воды (растворенный углекислый газ).Метод работы Понуровского — все необходимое условия есть.
4. Применим двойной турбо наддув механизм активации горения (либо центр уравновешен, либо распространен в высота)
5. Сделаем дверь снаружи кожух топки для открытия нижнего люка и удобной очистки от золы.
С впрыском воды с углем диоксида в реакторе пиролиза, предварительно нагретого до 550 ° C, при котором выделяется пиролиз. газы (смесь углеводородов, водяного пара, углекислого газа и др.) мы будем получить даже тройной эффект.
1. Дополнительная тепловая энергия (Ladislao). Водород из диссоциированной воды (кислород немедленно реагирует с горячим углеводороды) проходит через конденсатор и сжигается в топке.
2. Образующийся пар (вода не диссоциирован в полном объеме) благотворно влияет на процесс пиролиза (известный факт).
3. На завершающей стадии пиролиза, когда в реакторе остаются преимущественно углерод и зола, этот же пар очищает реактор, превращающий диоксид углерода в синтез-газ.Это требует повысить температуру печи.
Улучшенная дегазация позволит использовать метод пиролиза для дизельного топлива. двигатели для работы в газодизельном режиме (разработка Владимира Кокарева), особенно привлекательное и конструктивно законченное решение для широкого применения в национальном экономия.
An Идеальное место для таких установок — дачные теплицы, где, по мнению автор, школьники и студенты должны работать, получая реальную переживания, знания о природе и круговороте всех процессов.Можно пойти вперед и сделать пилотный проект полностью автономной деревни с независимая от внешней мировой экономики его внутренняя энергия, тепло и вода снабжение, экологическое производство и отсутствие мусора как такового (полная утилизация) и уж точно безопасно — нам больше не нужны коммунистические постройки с бедными люди.
Это желательно совместить эту идею со срочным возрождением русского крестьянства. в союзе с казаками. В этом основа устойчивого развития России единственная и неповторимая Мать, Родина для всех говорящих и мыслящих по-русски те, кто чувствует родство с его культурой и традициями, многонациональный, но определенно русский сообщество.
Идея самая лучшая независимая генератор с возможностью производить тепло, электричество, пар и дистиллированный вода.
Максимальная мощность, чистый выхлоп, максимальная топливная эффективность при минимальных затратах на единицу мощности.
Конструкция имеет двойной турбо наддув (подготовка воздуха), регенерация топлива и масла, реактор воды. Топливо — синтез-газ
Это довольно технологичный дизайн, и я самостоятельно не справиться с этой задачей требуется техническая и материальная ресурсы, и, самое главное, единомышленников, поэтому описание идеи короткий и интригующий.
Наиболее эффективное сгорание, беззатратный пар, двойной турбо наддув (идея Адамова), рекуперация топлива — новый тип когенераторов и тригенераторов.
Рисунок 5 Генератор детонации
Взрывоопасное, частичное (или полное) разложение воды при соединении веществ разной температуры на его составляющие, водород и кислород — суть изобретений Понуровского — это либо игнорируемая, либо неправильно понимаемая энергетическая революция.Подтверждающие доказательства: Реактор Pantone, турбогенератор и теплогенератор Аракеляна, реактор Ладислао и наконец, веселая народная забава — горячая вода замерзает на морозе (холодная вода не замерзают так же быстро) — так называемый эффект Мпембы ».
Парадокс (необъяснимая) сущность этого явления беспокоит умы просветили человечество до такой степени, что Королевское химическое общество учредил приз в размере 1000 фунтов стерлингов за объяснение этого явления.Этот унизительная сумма для обнаруженного парадокса тысячелетия показывает нам диаметрально разница между двумя мирами: Миром Духа, Воли и Знания и суетный мир денег, свободы и веселья. Да, весь Мир и Всеобщее природа дуалистична, противоречива и поэтому динамична. Любой процесс заключает в себе войну (взаимодействие) противоположностей. И это так естественно, что горячий и холод находятся в состоянии войны, вызывая в то же время взрыв (разобщение) вещества. Так что, естественно, без нас — полных лесорубов — не было бы мир цифровых идиотов.И так же естественно искать ответы на парадоксов в русском языке Понятия в русском языке, а затем разделить детали и подать заявку на английском и немецком языках.
Ответ на парадокс тысячелетия на русском лаконичен и понятен на всех языках. Взаимодействие горячая вода и холодный воздух приводят к тому, что вода (частично) диссоциирует на водород и кислород с выделением холода, что является причиной мгновенного замерзание остальной воды.
После В результате экспериментов мы пришли к следующим цифрам: вес воды до и после взаимодействия измеряли с помощью шприца с кипящей водой. в жидком азоте (наш хайтек). Собрав кусочки льда с термос, в котором произошла реакция, и меньшая часть из марли, которая препятствовал отлету сосулек от водоема, наблюдалось несоответствие масс было около 7-10%. Низкая точность измерений (насчет верха особо не заморачивался) точность) не влияет на доказательство — вода не может исчезнуть в азоте ни в коем случае. кроме газообразной формы его компонентов водород и кислород.Исходящий из холод также очевиден, холодный резервуар (тарелки), который обычно накрывается легкий морозец, долго застывает после процесса и не снимается.
Охлаждение емкость азота (около 3 л) ниже, чем у полученного холода (500 г лед при минус 80-100С) Азот испаряется (и испаряется) при температура -196С. То есть фазовый переход от жидкого азота к газообразный азот должен обеспечивать замерзание кипящей воды до льда при температуре минус 80 ° C.
Многочисленные также были предприняты попытки зафиксировать повышение давления после закачки перегретая (250С) вода в закрытом резервуаре с давлением 5 атм.на температура внутри контейнера в пределах минус 50-70С (Понуровский — А способ производства энергии с выделением холода). Результат минимальный (отсутствие оборудования), увеличение давления немного выше точности измерения — 0,3 атм. У меня есть твердое убеждение, что все эти изобретения существуют . Практическая реализация будет привести к большим и благотворным изменениям в энергии и жизни. А именно мы можем создать:
Новая печь с экономией топлива увеличился в несколько раз.
Новый гибрид суперэкономичный и экологически чистые двигатели
Новая автономная чистая энергия, поэтому необходимо на бескрайних просторах нашей страны, и не только нашей.
Решение глобальной проблемы воды, продуктов питания и доступный транспорт по всему миру.
А как насчет нефтяной халявы, бюджетов и нашего относительного благополучия? Отвечая на вопрос — что происходит с нефтью и продуктами из нее, продаются так дорого (что-то вроде в четыре раза дороже их стоимости)? В ответ прост — мировая экономика (отдача от человеческой деятельности) не 10, а 100, а то и 1000% (посеешь одно семя и получишь дюжину, изобрести трактор — заменить сотни лошадей, летающий самолет в тысячу раз быстрее, чем лошадь).Поэтому те, кто стал богаче (а главное — развиваются) не те, кто продает сырье, а те, кто покупает, перерабатывает и идет вперед благодаря знаниям и передовым технологиям и используют нефть и деньги в качестве средство для прогресса и развития. (Лучший опыт — немецкий, в котором ближайшие родственники на Востоке — в Японии и Корее). С этими товарищами нам нужно интегрируйтесь радостно и бесстрашно. Также можно ожидать, что сокращение в расходах на топливо благотворно скажется на развитии удаленных территорий. и мировая экономика в целом.Цена и потребление, как ни парадоксально, может увеличиться.
Во время первого (переходного) период, чтобы избежать деструктивных процессов, нам необходимо иметь активные мозги, деньги и воля. Об этом я постараюсь объяснить в статье Газовый прорыв . На втором шаг нам надо возродить дух русской и благородной империи русов русов, вперед!
В третьем состоянии — создать мировую систему из русских Мир — Русский (трехъязычный) город во всех частях света (образование, военная служба, наука, культура) — Золотая Орда .
Завершить свою технопатриотическую оду хочу восклицанием: полемика:
Основной перечень изобретений и разработок для постижение идей и дизайна.
1. Понуровский. Метод и устройство для выработки энергии в двигателе внутреннего сгорания с выделением холода. http://www.ntpo.com/techno/techno1_7/25.shtml
a) Способ работы двигатель внутреннего сгорания. http://ru-patent.info/20/30-34/2030604.html
б) Способ регенерации отходов газы и устройство реализации. http://www.findpatent.ru/patent/203/2034995.html
2. Ladislao. Метод для производство тепловой энергии. http://www.freepatent.ru/patents/2142094
3.Турбогенератор и теплогенератор от Аракелян. http://www.meanders.ru/turb Generator.shtml
4. Реактор Пола Пантоне. http://www.meanders.ru/geetreaktor.shtml
5. Бубафоня печь. http://www.youtube.com/watch?v=Ar6octjUTLk
6. Французский экспериментатор. Горящее масло в сильном водовороте. (http://www.youtube.com/watch?v=P-oCgxGj8g8) ( http://www.youtube.com/watch?v=HLp8zZHhsp4 )
7. Импульсный жиклер с подогревом топлива.http://www.youtube.com/watch?v=XnvbiDX_RDc
Список научных трудов, полезных для ума и прорывные технологии:
1 .. … .
2 ….. .
3 …. .
4 …..
5 …..
6 .. .. .
7…. .
П.С.
http://www.youtube.com/watch?v=Tvf3lmcEFJs
Москва, Ереван 27.12.2013
контакты:
автор: Армен Адам [email protected]
Страница YouTube: Армен Адам
.
Котел работает скачкообразно, достигая максимальных температур до +97°, что чревато большими неприятностями.
Он просто вылетит в дымоход, унося за собой и позиции КПД. При этом в камере дожига не будет образовываться горючая смесь, которая должна сгореть.
Для чего откручивается вентиль и в отверстие заливается вода.

Однако корпус печки из кирпича необходимо утеплять базальтовым материалом.
Необходимо знать, что печи для больших теплиц и маленьких отличаются порядовкой.
Однако это не совсем подходит для обогрева ввиду токсичности и высокой стоимости.
А также печь Бубафоня работает автономно, то есть без использования электрической энергии.
Топливо тлеет и выделяет большое количество газа, которое дожигается в камере полного сгорания.
Простая печь из бочки также имеет преимущества связанные с большим объемом топочной камеры влияющей на длительность работы от одной закладки.
Растопка печи выполняется просто. Единственным требованием, предъявляемым к дровам, является низкое содержание влаги в его составе.